Bildegalleri

Strøken endeleilighet. Velkommen til Brattåsen 36!
Inaktiv
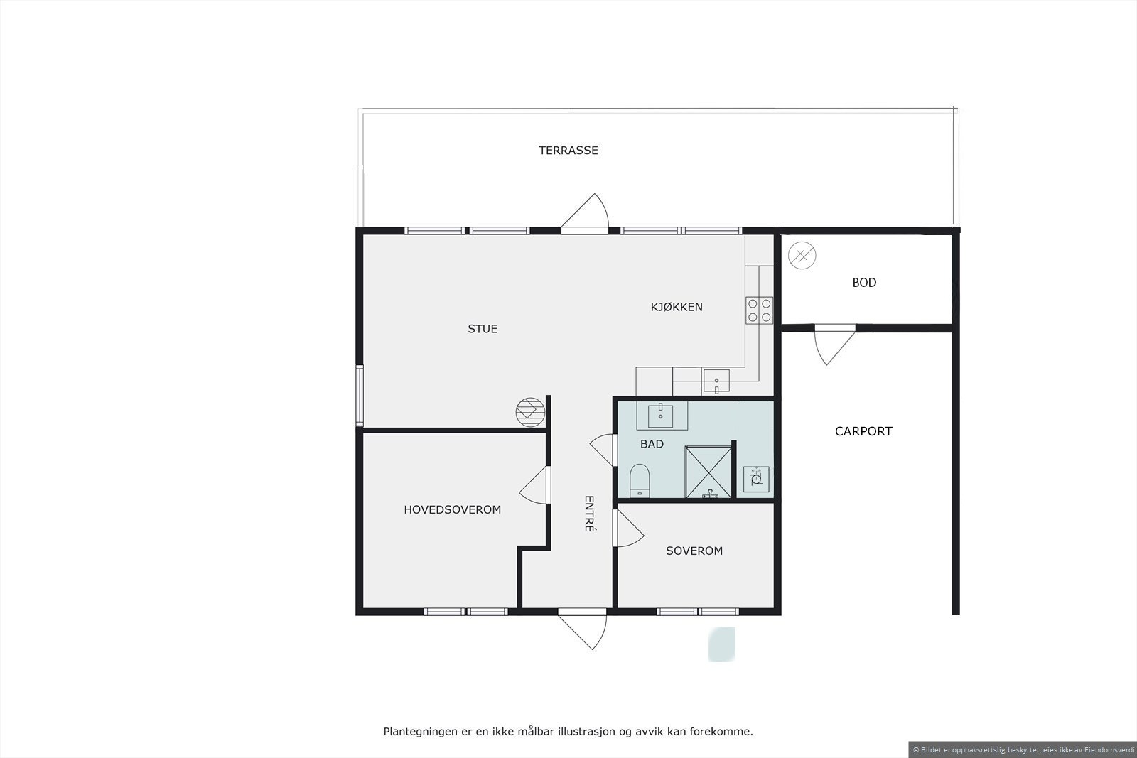
Energiøkonomisk og praktisk rekkehusleilighet med alt på ett plan. Oppført i 2020. Carport
Prisantydning1 390 000 kr
Nøkkelinfo
- Boligtype
- Rekkehus
- Eieform
- Andel
- Soverom
- 2
- Internt bruksareal
- 66 m² (BRA-i)
- Bruksareal
- 71 m²
- Eksternt bruksareal
- 5 m² (BRA-e)
- Balkong/Terrasse
- 20 m² (TBA)
- Etasje
- 1
- Byggeår
- 2020
- Energimerking
- B - Gul
- Rom
- 3
- Tomteareal
- 3 678 m² (eiet)
Fasiliteter
Balkong/Terrasse
Barnevennlig
Bredbåndstilknytning
Garasje/P-plass
Kabel-TV
Offentlig vann/kloakk
Peis/Ildsted
Rolig
Vaktmester-/vektertjeneste
Turterreng
Lademulighet
Balansert ventilasjon
Visning
Ved annonsert visning er det viktig at du melder deg på visningen ved å bruke visningspåmeldingsknappen eller kontakter megler. Annonserte visninger hvor det ikke er noen påmeldte innen kl. 16.00 dagen før visningsdagen vil ikke bli avholdt.
For visninger utover dette, ta direkte kontakt med megler.
Ta kontakt for å avtale visning utover oppsatt fellesvisning.
VisningspåmeldingOm boligen
Velkommen til en meget pen endeleilighet på nye Brattåsfeltet. Sol hele dagen og omgitt av herlig natur!
Leiligheten holder en gjennomgående meget pen og tiltalende overflatestandard. Det er enstavs eikelaminat på gulv. Slette, malte vegger. Hvit takhøy kjøkkeninnredning med integrerte hvitevarer. Stue med peisovn og varmepumpe, samt utgang til solrik terrasse. Screens med fjernstyring. Flislagt bad/vaskerom med varmekabler.
Endeleilighet med alt på ett plan. Entre/gang med inngang til bad/vaskerom, og 2 soverom. Videre inn til stue med vedovn, varmepumpe og utgang til terrasse. Åpen løsning til kjøkken med integrerte hvitevarer som mikro, stekeovn, koketopp med vifte, oppvaskmaskin og kjøleskap.
Carport med elbillader.
Leiligheten holder en gjennomgående meget pen og tiltalende overflatestandard. Det er enstavs eikelaminat på gulv. Slette, malte vegger. Hvit takhøy kjøkkeninnredning med integrerte hvitevarer. Stue med peisovn og varmepumpe, samt utgang til solrik terrasse. Screens med fjernstyring. Flislagt bad/vaskerom med varmekabler.
Endeleilighet med alt på ett plan. Entre/gang med inngang til bad/vaskerom, og 2 soverom. Videre inn til stue med vedovn, varmepumpe og utgang til terrasse. Åpen løsning til kjøkken med integrerte hvitevarer som mikro, stekeovn, koketopp med vifte, oppvaskmaskin og kjøleskap.
Carport med elbillader.
NB: Knappen for å vise hele beskrivelsen har kun en visuell effekt.
NB: Knappen for å vise hele beskrivelsen har kun en visuell effekt.
Salgsoppgaven beskriver vesentlig og lovpålagt informasjon om eiendommen
Se komplett salgsoppgaveNærområdet
Aktiv Halden
Annonseinformasjon
| FINN-kode | 378273986 |
|---|---|
| Sist endret | 20. feb. 2026 08:07 |
| Referanse | 1101240134 |
Annonsene kan være mangelfulle i forhold til lovpålagt opplysningsplikt. Før bindende avtale inngås oppfordres interessenter til å innhente komplett informasjon fra meglerforetaket, selger eller utleier.





























