Bildegalleri

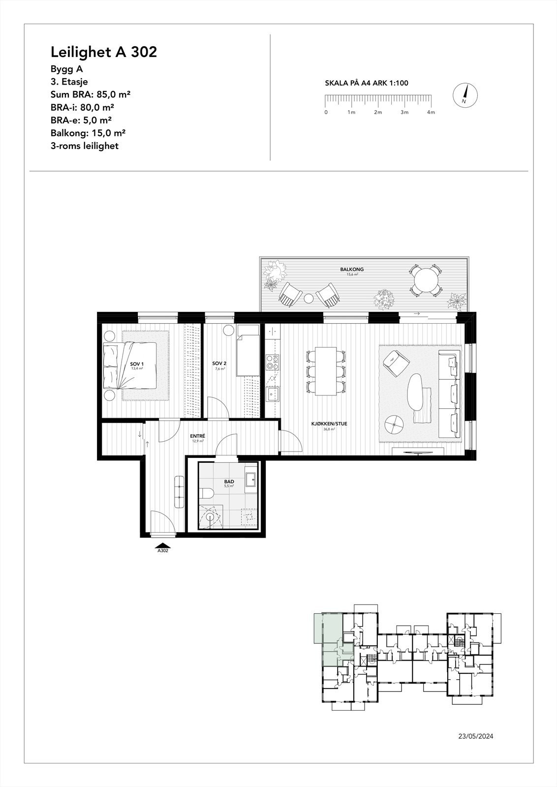
Velkommen til Ekebergveien 239C - En 3-roms hjørneleilighet med stor balkong på hele 16 kvm i populære Poppelhagen
Inaktiv
Idylliske Poppelhagen
Lekker 3-roms hjørneleilighet|Balkong på 16 m²|Utsikt|V.vann & fyring ink.|Innflyttingsklar|Lave omkostninger|Parkering*
Prisantydning9 590 000 kr
Nøkkelinfo
- Boligtype
- Leilighet
- Eieform
- Eier (Selveier)
- Soverom
- 2
- Internt bruksareal
- 81 m² (BRA-i)
- Bruksareal
- 86 m²
- Eksternt bruksareal
- 5 m² (BRA-e)
- Balkong/Terrasse
- 16 m² (TBA)
- Etasje
- 3
- Byggeår
- 2024
- Energimerking
- A - Gul
- Rom
- 3
- Tomteareal
- 7 280 m² (eiet)
Fasiliteter
Balkong/Terrasse
Barnevennlig
Bredbåndstilknytning
Garasje/P-plass
Heis
Kjæledyr tillatt
Kabel-TV
Offentlig vann/kloakk
Parkett
Sentralt
Vaktmester-/vektertjeneste
Turterreng
Balansert ventilasjon
Visning
Alle visninger i Poppelhagen krever påmelding. Dette for å kunne gi deg best mulig hjelp. I juli vil visninger kun bli gjennomført dersom det er påmelding til visning 24 timer før visningen.
VisningspåmeldingOm boligen
Velkommen til leilighet A302 i idylliske Poppelhagen på Sæter. Dette er en lekker 3-roms hjørneleilighet med stor balkong på ca.16 m² og utsikt. Store vinduer sikrer rikelig med lysinnslipp.
- Flott 3-roms hjørneleilighet på hele 81 m²
- Gjennomgående ny og moderne standard
- God planløsning med lysinnslipp fra flere vinkler
- Stor balkong på 16 m² med plass til både loungesett og spisebord
- Stilren kjøkkeninnredning fra HTH med hvitevarer fra Siemens
- Mulighet for kjøp av garasjeplass
- Vannbåren gulvvarme og balansert ventilasjon
- Store, pent opparbeidede fellesarealer med beplantning, internstier og sitteplasser
- Attraktiv beliggenhet på Sæter med et rikelig utvalg fasiliteter i umiddelbar nærhet
- Se prosjektets hjemmeside: poppelhagen.no
NB: Knappen for å vise hele beskrivelsen har kun en visuell effekt.
NB: Knappen for å vise hele beskrivelsen har kun en visuell effekt.
Salgsoppgaven beskriver vesentlig og lovpålagt informasjon om eiendommen
Se komplett salgsoppgaveNyttige lenker
Nærområdet
Nordvik Frogner
Annonseinformasjon
| FINN-kode | 378171740 |
|---|---|
| Sist endret | 26. juni 2025 09:47 |
| Referanse | 14-0758/24 |
Annonsene kan være mangelfulle i forhold til lovpålagt opplysningsplikt. Før bindende avtale inngås oppfordres interessenter til å innhente komplett informasjon fra meglerforetaket, selger eller utleier.













































