Bildegalleri

Velkommen til Storevigbakken 2 i Skjersvika på Jøssang!
Solgt
Attraktiv og innholdsrik del av tomannsbolig i 1.boligrekke til sjø i Skjersvika. *3 sov, 2 bad, carport og fin utsikt!*
Prisantydning3 750 000 kr
Nøkkelinfo
- Boligtype
- Tomannsbolig
- Eieform
- Eier (Selveier)
- Soverom
- 3
- Internt bruksareal
- 117 m² (BRA-i)
- Bruksareal
- 117 m²
- Balkong/Terrasse
- 68 m² (TBA)
- Etasje
- 2
- Byggeår
- 2013
- Energimerking
- B - Oransje
- Rom
- 4
- Tomteareal
- 655 m² (eiet)
Fasiliteter
Balkong/Terrasse
Barnevennlig
Garasje/P-plass
Hage
Offentlig vann/kloakk
Parkett
Rolig
Utsikt
Bademulighet
Fiskemulighet
Turterreng
Lademulighet
Balansert ventilasjon
Om boligen
Vi i Aktiv Eiendomsmegling Ryfylke v/Helene Byberg, ønsker denne velkommen til denne innbydende boligen, som er en del av vertikaldelt tomannsbolig.
Boligen ligger i første boligrekke til sjøen i populære Skjersvika, med fantastisk utsikt og gode solforhold. Her finner man familier i alle aldre og et godt bomiljø. Boligen er meget godt holdt, så her kan en flytte rett inn!
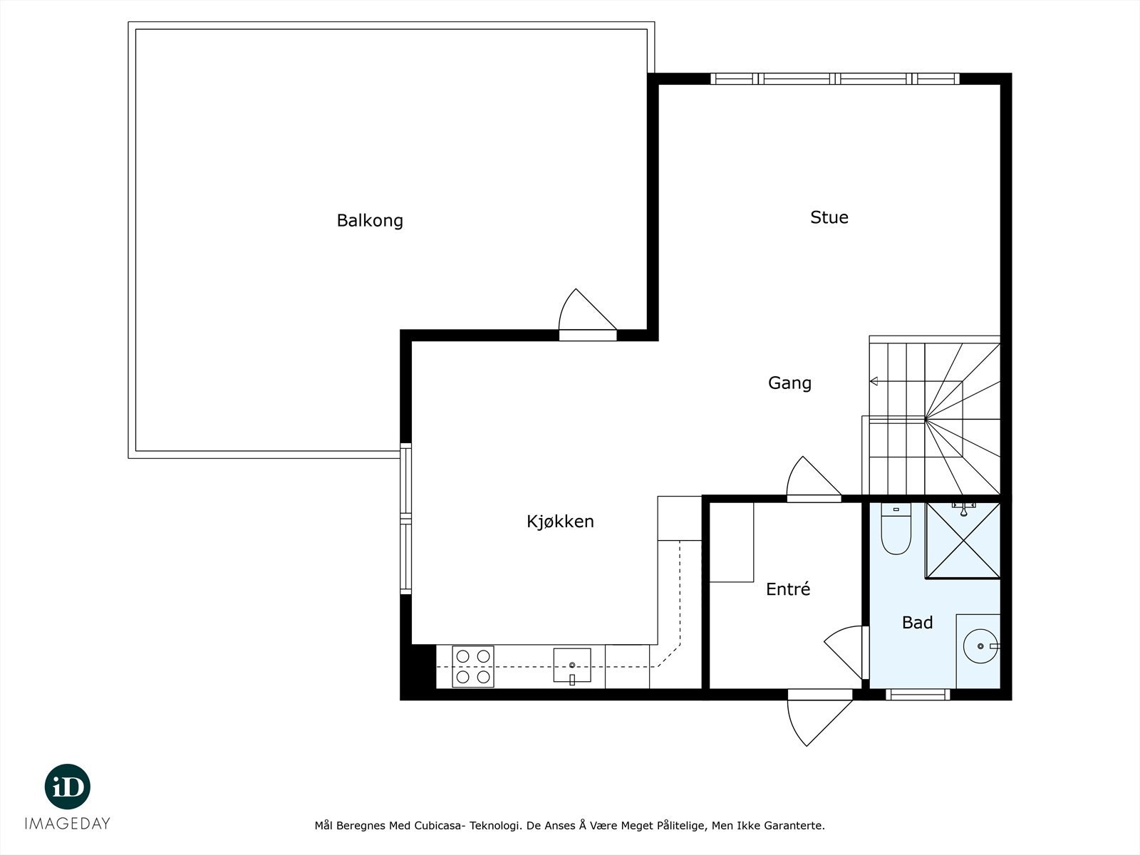
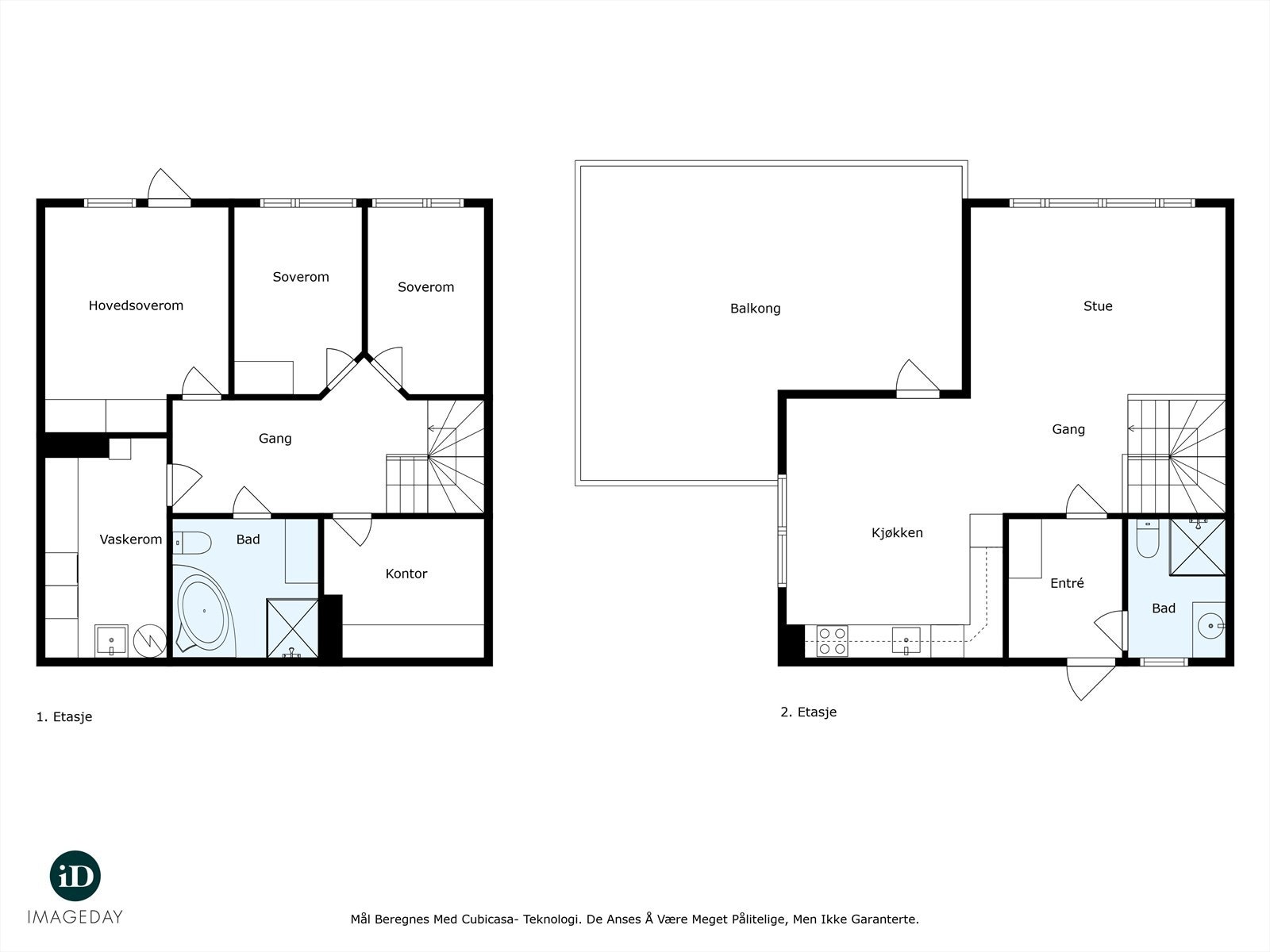
Boligen har en arealeffektiv og innholdsrik planløsning med store vindusflater, god takhøyde, 3 sov, 2 bad, vaskerom, stue/kjøkken, bod/garderobe, utvendig bod, carport og solrik terrasse. Så her får du mye for pengene.
Oppstillingsplass til flere biler i tillegg til carport. Opplegg til El-bil og smarthus løsning på lys.
Merk at påbygg terrasse og bod/rom under terrasse ikke er byggesøkt.
Velkommen!
Boligen ligger i første boligrekke til sjøen i populære Skjersvika, med fantastisk utsikt og gode solforhold. Her finner man familier i alle aldre og et godt bomiljø. Boligen er meget godt holdt, så her kan en flytte rett inn!
Boligen har en arealeffektiv og innholdsrik planløsning med store vindusflater, god takhøyde, 3 sov, 2 bad, vaskerom, stue/kjøkken, bod/garderobe, utvendig bod, carport og solrik terrasse. Så her får du mye for pengene.
Oppstillingsplass til flere biler i tillegg til carport. Opplegg til El-bil og smarthus løsning på lys.
Merk at påbygg terrasse og bod/rom under terrasse ikke er byggesøkt.
Velkommen!
NB: Knappen for å vise hele beskrivelsen har kun en visuell effekt.
NB: Knappen for å vise hele beskrivelsen har kun en visuell effekt.
Salgsoppgaven beskriver vesentlig og lovpålagt informasjon om eiendommen
Se komplett salgsoppgaveNærområdet
Aktiv Ryfylke
Prisstatistikk
Storevigbakken 2
2 363 klikk
på annonsen
32 051 kr
prisantydning per kvadratmeter
Prisfordeling
Pris per m² ligger 1 051 kr over snittet for tomannsboliger i Strand.
Grafen viser antall tomannsboliger solgt i Strand siste året fordelt på pris per m² - totalt 15 tomannsboliger
Antall boliger
Kvadratmeterpris tilsvarer prisantydning pluss fellesgjeld per kvadratmeter (p-rom eller BRA-i). Prisene i grafen er avrundet til nærmeste 1000 kr.
Annonseinformasjon
| FINN-kode | 378082582 |
|---|---|
| Sist endret | 10. nov. 2024 13:44 |
| Referanse | 1401240166 |
Annonsene kan være mangelfulle i forhold til lovpålagt opplysningsplikt. Før bindende avtale inngås oppfordres interessenter til å innhente komplett informasjon fra meglerforetaket, selger eller utleier.












































