Bildegalleri

EiendomsMegler 1 ved Fredrik Nygård Flønes har gleden av å presentere Anne Ekrens Veg 10!
Inaktiv
Heimdal Sentrum
FLOTT 3-ROMS LEILIGHET FRA 2023| Fast parkering m/el-billader | Fjernvarme | "ALT" inkl. i felleskost | Nybyggaranti
Prisantydning3 990 000 kr
Nøkkelinfo
- Boligtype
- Leilighet
- Eieform
- Eier (Selveier)
- Soverom
- 2
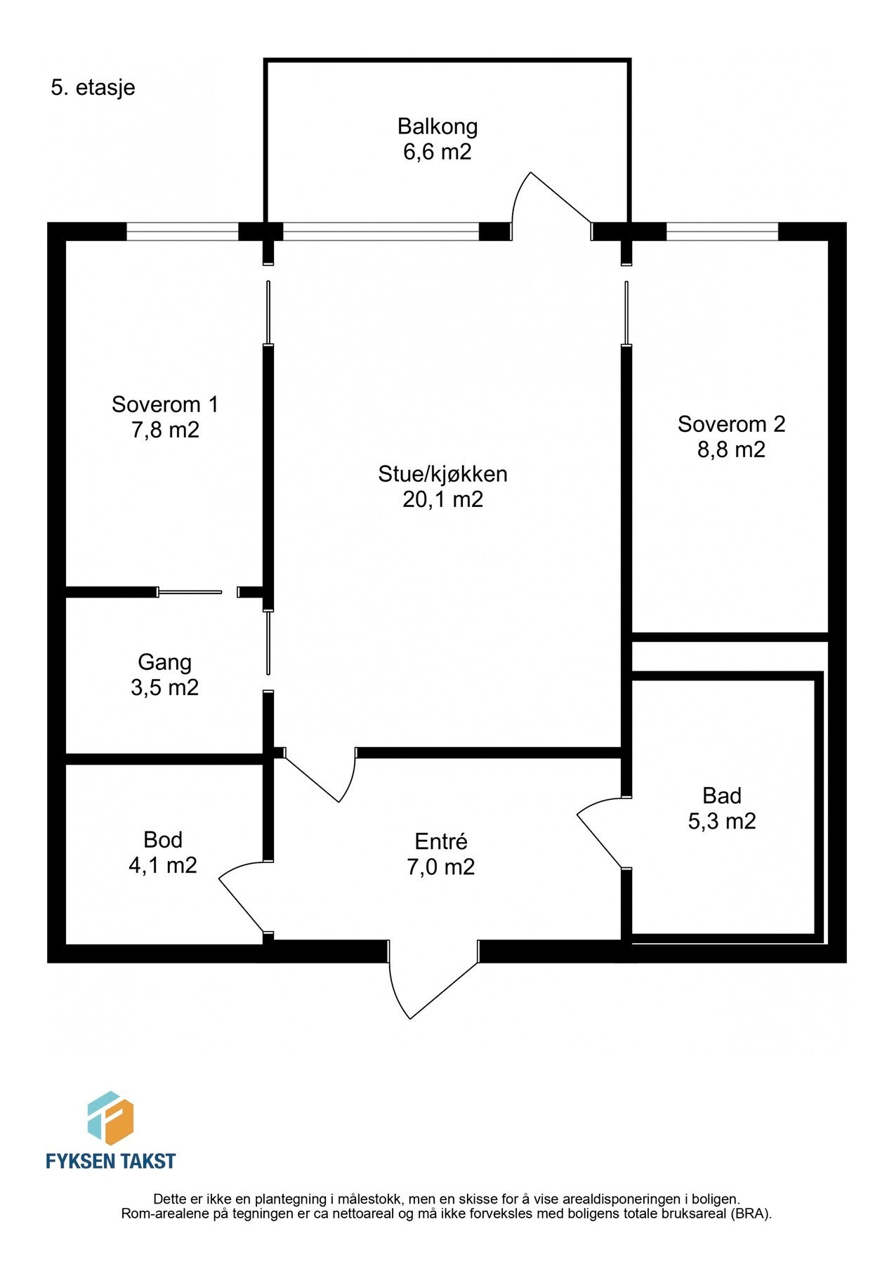
- Internt bruksareal
- 61 m² (BRA-i)
- Bruksareal
- 66 m²
- Eksternt bruksareal
- 5 m² (BRA-e)
- Balkong/Terrasse
- 7 m² (TBA)
- Etasje
- 5
- Byggeår
- 2023
- Energimerking
- B - Mørkegrønn
- Rom
- 3
- Tomt
- Eiet
Fasiliteter
Barnevennlig
Balkong/Terrasse
Garasje/P-plass
Kabel-TV
Heis
Offentlig vann/kloakk
Turterreng
Utsikt
Sentralt
Bredbåndstilknytning
Moderne
Rolig
Lademulighet
Balansert ventilasjon
Om boligen
EiendomsMegler 1 ved Fredrik Nygård Flønes har gleden av å presentere en strøken 3-roms leilighet fra 2023 med flott beliggenhet i hjertet av Heimdal sentrum. Leiligheten nyter en praktisk planløsning med utgang til en vestvendt balkong med fin utsikt.
Kvaliteter verdt å nevne:
Kvaliteter verdt å nevne:
- Nybyggsgaranti.
- Åpen stue- og kjøkkenløsning på 20m² .
- Lyst og pent hjørnekjøkken med integrerte hvitevarer.
- Delikat, flislagt bad med gulvvarme og downlights i himling.
- Praktisk planløsning som gjør det enkelt å møblere.
- Store vindusflater som sørger for godt med naturlig lysinnslipp.
- Praktisk innvendig bod i forbindelse med entré, samt sportsbod i fellesareal.
- Listefri utførelse mellom vegg og tak.
- Vestvendt balkong med flott utsikt og god plass til utemøblement.
- Vannbåren varme.
- To soverom av god størrelse, det ene med egen inngang til et omkledningsrom.
- Parkeringsplass i p-kjeller klargjort for el-billader.
- Felles takterrasse for beboere i sameiet.
- Svært sentral beliggenhet i Heimdal sentrum og umiddelbar nærhet til alle servicefunksjoner.
NB: Knappen for å vise hele beskrivelsen har kun en visuell effekt.
NB: Knappen for å vise hele beskrivelsen har kun en visuell effekt.
Salgsoppgaven beskriver vesentlig og lovpålagt informasjon om eiendommen
Se komplett salgsoppgaveNærområdet
EiendomsMegler 1 Heimdal
Vi loser deg trygt gjennom hele boligsalget
Annonseinformasjon
| FINN-kode | 377168695 |
|---|---|
| Sist endret | 23. sep. 2025 12:12 |
| Referanse | 31240737 |
Annonsene kan være mangelfulle i forhold til lovpålagt opplysningsplikt. Før bindende avtale inngås oppfordres interessenter til å innhente komplett informasjon fra meglerforetaket, selger eller utleier.
















