Bildegalleri

Velkommen til selveierleilighet i toppetasjen i Storgata 71 med en helt rå sjøutsikt.
Solgt
Horten/Sentrumsnært
NY PRIS - Selveierleilighet i sentrum m/fantastisk sjøutsikt - 2 takterrasser - heis - garasje.
Prisantydning3 950 000 kr
Nøkkelinfo
- Boligtype
- Leilighet
- Eieform
- Eier (Selveier)
- Soverom
- 2
- Internt bruksareal
- 65 m² (BRA-i)
- Bruksareal
- 69 m²
- Eksternt bruksareal
- 4 m² (BRA-e)
- Balkong/Terrasse
- 18 m² (TBA)
- Etasje
- 4
- Byggeår
- 1994
- Energimerking
- F - Rød
- Rom
- 3
- Tomteareal
- 738 m² (eiet)
Fasiliteter
Takterrasse
Balkong/Terrasse
Bredbåndstilknytning
Garasje/P-plass
Golfbane
Heis
Offentlig vann/kloakk
Sentralt
Utsikt
Vaktmester-/vektertjeneste
Bademulighet
Fiskemulighet
Turterreng
Lademulighet
Om boligen
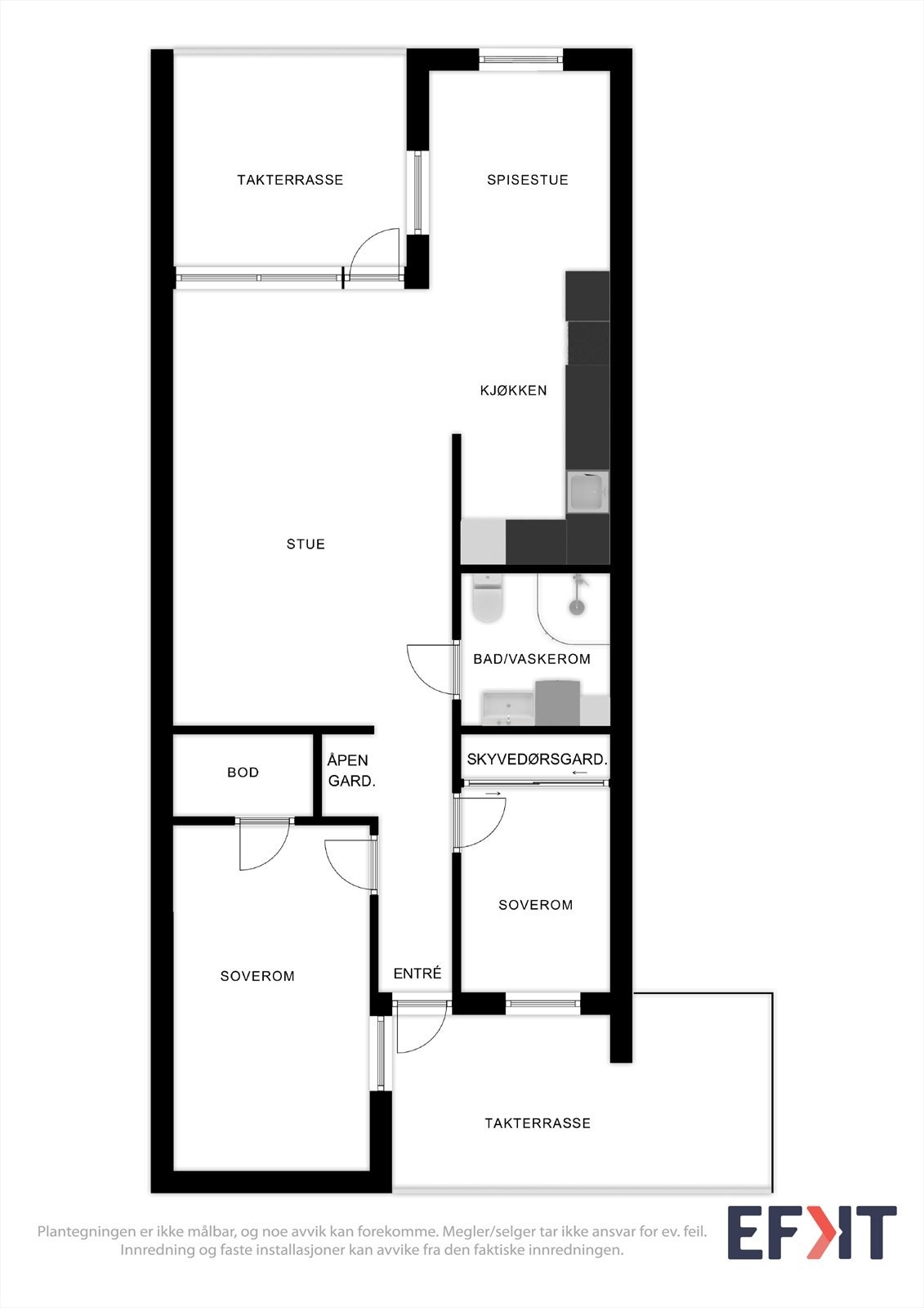
Bo helt usjenert og solrikt med to takterrasser i selveierleilighet i toppetasjen i Storgata 71. Her kan du nyte en helt rå sjøutsikt. Et meget attraktiv sted for de som ønsker å bo midt i sentrum med nærhet til handel, spisesteder, og samtidig ha tilgang til sjøen og flotte turområder.
En lettstelt og pen 3-roms leilighet i et trivelig og veldrevet sameie. Oppgradert m/nytt Keo kjøkken og hvitevarer, laminatgulv i alle rom og malt i 2020.
Innh.: Arealet er større pga. skråtak. Inngang m/porttlf., heis fra p-kjeller til 4. etg., svalgang, gang, 2 soverom, bad, bod, kjøkken m/lekkert Keo innred. m/spisestue, stue som er lett å møblere, 2 takterrasser, hvor av en mot vest og en mot øst m/panorama sjøutsikt. Sportsbod. P-plass i garasjekjeller med elbillader. Nydelig felles hage.
En lettstelt og pen 3-roms leilighet i et trivelig og veldrevet sameie. Oppgradert m/nytt Keo kjøkken og hvitevarer, laminatgulv i alle rom og malt i 2020.
Innh.: Arealet er større pga. skråtak. Inngang m/porttlf., heis fra p-kjeller til 4. etg., svalgang, gang, 2 soverom, bad, bod, kjøkken m/lekkert Keo innred. m/spisestue, stue som er lett å møblere, 2 takterrasser, hvor av en mot vest og en mot øst m/panorama sjøutsikt. Sportsbod. P-plass i garasjekjeller med elbillader. Nydelig felles hage.
NB: Knappen for å vise hele beskrivelsen har kun en visuell effekt.
NB: Knappen for å vise hele beskrivelsen har kun en visuell effekt.
Salgsoppgaven beskriver vesentlig og lovpålagt informasjon om eiendommen
Se komplett salgsoppgaveNyttige lenker
Nærområdet
EiendomsMegler 1 Horten
et foretak i SpareBank 1 Sør-Norge konsernet
Prisstatistikk
Storgata 71
7 771 klikk
på annonsen
60 769 kr
prisantydning per kvadratmeter
Prisfordeling
Pris per m² ligger 14 769 kr over snittet for leiligheter i Horten.
Grafen viser antall leiligheter solgt i Horten siste året fordelt på pris per m² - totalt 251 leiligheter
Antall boliger
Kvadratmeterpris tilsvarer prisantydning pluss fellesgjeld per kvadratmeter (p-rom eller BRA-i). Prisene i grafen er avrundet til nærmeste 1000 kr.
Annonseinformasjon
| FINN-kode | 377143791 |
|---|---|
| Sist endret | 28. juni 2025 06:54 |
| Referanse | 7016240150 |
Annonsene kan være mangelfulle i forhold til lovpålagt opplysningsplikt. Før bindende avtale inngås oppfordres interessenter til å innhente komplett informasjon fra meglerforetaket, selger eller utleier.









































