Bildegalleri

Velkommen til Vekkomsvegen 139! Eiendommen ligger nydelig til i vestvendt terreng, her i idylliske Gudbrandsdalen. Kort veg ned til Ringebu.
Inaktiv
Innlandet
Stor eiendom på nydelig utsiktstomt - Romslig hovedhus fra 1863 - Stort anneks, garasje og fjøs/låve - Ingen boplikt
Prisantydning7 500 000 kr
Nøkkelinfo
- Boligtype
- Enebolig
- Eieform
- Eier (Selveier)
- Soverom
- 6
- Internt bruksareal
- 347 m² (BRA-i)
- Bruksareal
- 347 m²
- Etasje
- 3
- Byggeår
- 1863
- Energimerking
- G - Oransje
- Tomteareal
- 8 143 m² (eiet)
Om boligen
EiendomsMegler1 ønsker velkommen til Vekkomsvegen 139 - i hjertet av Innlandet!
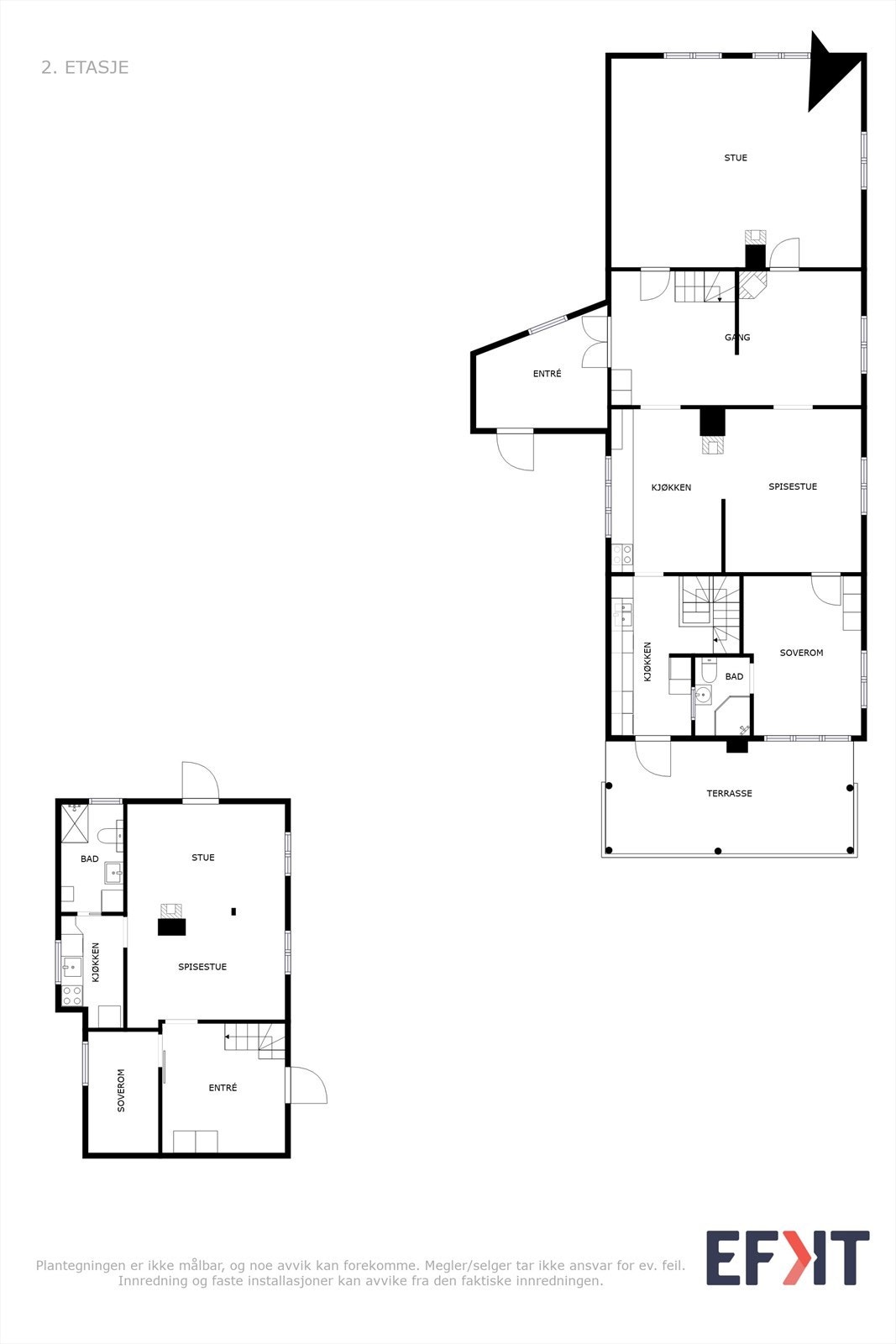
Denne idylliske eiendommen / småbruket har hovedhuset fra 1863 i sentrum. Opprinnelig del er laftet, huset i sin tid også skolestuen i bygda. Huset går over 3 plan, og består blant annet av stor stue, peisestue, kjøkken, skolestue og 5 soverom. I tillegg består eiendommen av et koselig, innredet anneks som blir et flott tilskudd til hovedhuset, låve/fjøs, snekkerverksted, lysthus, gapahuk og drivhus. Eiendommen idyllisk, og med en solrik, stor tomt på over 8 mål. Eiendommen er frodig, med både grøntarealer, åker, trær og bærbusker - med andre ord det meste av det man trenger for å være selvberget.
Vestvendt eiendom, ca 1,5 km øst for Ringebu sentrum i et område med spredt bebyggelse, småbruk og gårdsbruk.
Denne idylliske eiendommen / småbruket har hovedhuset fra 1863 i sentrum. Opprinnelig del er laftet, huset i sin tid også skolestuen i bygda. Huset går over 3 plan, og består blant annet av stor stue, peisestue, kjøkken, skolestue og 5 soverom. I tillegg består eiendommen av et koselig, innredet anneks som blir et flott tilskudd til hovedhuset, låve/fjøs, snekkerverksted, lysthus, gapahuk og drivhus. Eiendommen idyllisk, og med en solrik, stor tomt på over 8 mål. Eiendommen er frodig, med både grøntarealer, åker, trær og bærbusker - med andre ord det meste av det man trenger for å være selvberget.
Vestvendt eiendom, ca 1,5 km øst for Ringebu sentrum i et område med spredt bebyggelse, småbruk og gårdsbruk.
NB: Knappen for å vise hele beskrivelsen har kun en visuell effekt.
NB: Knappen for å vise hele beskrivelsen har kun en visuell effekt.
Salgsoppgaven beskriver vesentlig og lovpålagt informasjon om eiendommen
Se komplett salgsoppgaveNyttige lenker
Nærområdet
EiendomsMegler 1 Østlandet - avd. Lillehammer
Vi loser deg trygt gjennom hele boligsalget
Annonseinformasjon
| FINN-kode | 376940118 |
|---|---|
| Sist endret | 28. aug. 2025 07:50 |
| Referanse | 19230077 |
Annonsene kan være mangelfulle i forhold til lovpålagt opplysningsplikt. Før bindende avtale inngås oppfordres interessenter til å innhente komplett informasjon fra meglerforetaket, selger eller utleier.

























































