Bildegalleri

Røros
Super mulighet i Gjøsvika!
Rekkehus A1
Prisantydning4 290 000 kr
Kort om prosjektet
Drømmer du om et nytt hjem? Velkommen til Varmbo Gjøsvika! Vi er stolte av å introdusere våre rekkehus i Kølfogdveien. Boligene vil bli bygget i det nyeste og siste planlagte boligområdet i Gjøsvika. Benytt sjansen til å skaffe deg en helt ny bolig i dette fantastiske nabolaget!
Prosjektets status
Planlegging
Ferdig planlagt
Salgsstart
I salg
Byggestart
Etter avtale
Overtakelse
Etter avtale
Nøkkelinfo
- Boligtype
- Rekkehus
- Etasje
- 2
- Soverom
- 3
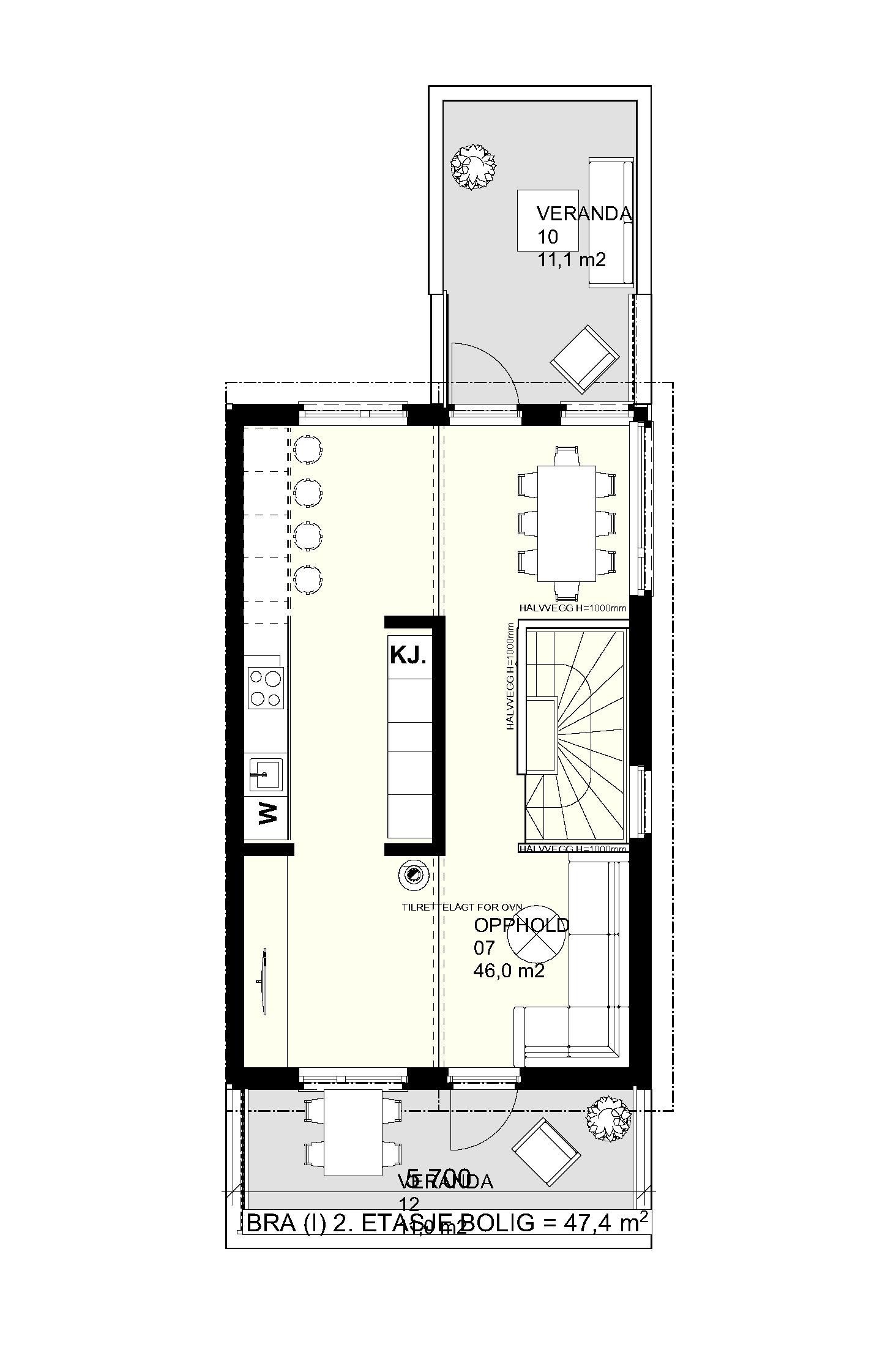
- Internt bruksareal
- 95 m² (BRA-i)
- Bruksareal
- 100 m²
- Eksternt bruksareal
- 5 m² (BRA-e)
Fasiliteter
Balansert ventilasjon
Balkong/Terrasse
Barnevennlig
Bredbåndstilknytning
Garasje/P-plass
Kabel-TV
Offentlig vann/kloakk
Parkett
Peis/Ildsted
Turterreng
Visning
Ta kontakt for å avtale visning.Nyttige lenker
Nærområdet
VARMBO RØROS ENTREPRENØR AS
Annonsene kan være mangelfulle i forhold til lovpålagt opplysningsplikt. Før bindende avtale inngås oppfordres interessenter til å innhente komplett informasjon fra meglerforetaket, selger eller utleier.

