Bildegalleri

Velkommen til Heimdalsgata 27D - ditt nye hejm.
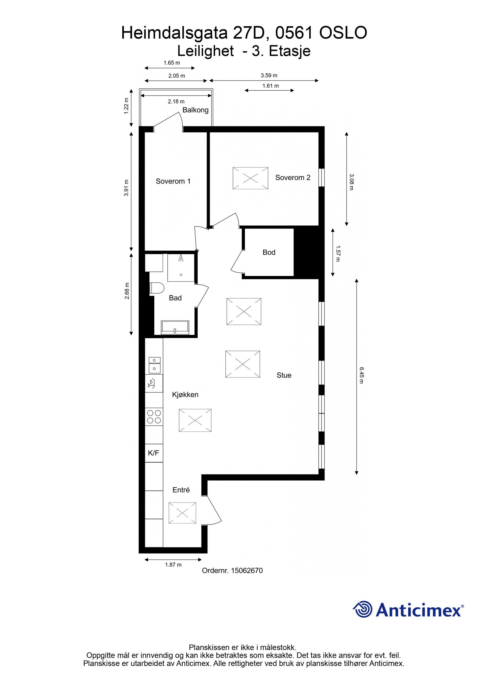
Innbydende selveier 3-roms loftsleilighet - 65 kvm gulvareal - Balkong - Skjermet beliggenhet - rehabilitert i 2011.
Nøkkelinfo
- Boligtype
- Leilighet
- Eieform
- Eier (Selveier)
- Soverom
- 2
- Internt bruksareal
- 50 m² (BRA-i)
- Bruksareal
- 54 m²
- Eksternt bruksareal
- 4 m² (BRA-e)
- Balkong/Terrasse
- 3 m² (TBA)
- Etasje
- 3
- Byggeår
- 1900
- Energimerking
- G - Rød
- Tomteareal
- 258 m² (eiet)
Fasiliteter
Om boligen
Velkommen til Heimdalsgata 27D!
Innbydende 3-roms loftleilighet i 3.etasje med gjennomgående parkett. Leiligheten har 2 soverom, og fra det ene er det utgang til balkong med plass til sittegruppe. Med synlige takbjelker og flotte vinduer får du en leilighet med særegne trekk. Totalt gulvareal er 65 kvm.
Sjarmerende beliggenhet i "Bageriet". Bygget var opprinnelig et bakeri, og ble i 2011 ombygd til boligformål. Her bor du sentralt med gangavstand til alt du trenger. En rekke flotte parker og turmuligheter i området. Meget god offenltig kommunikasjon med buss, trikk, t-bane, tog og flytog i gangavstand.
Verdt å merke seg:
- Balkong
- Takvinduer med solceller, regnsensor og fjernstyring
- HTH kjøkkeninnredning
- Skråtak, 65 kvm gulvareal
- Innvendig bod samt kjellerbod
Velkommen til visning!
Salgsoppgaven beskriver vesentlig og lovpålagt informasjon om eiendommen
Se komplett salgsoppgaveNærområdet
EIE eiendomsmegling Vinderen
Annonseinformasjon
| FINN-kode | 376252090 |
|---|---|
| Sist endret | 31. okt. 2024 13:54 |
| Referanse | 31240151 |
Annonsene kan være mangelfulle i forhold til lovpålagt opplysningsplikt. Før bindende avtale inngås oppfordres interessenter til å innhente komplett informasjon fra meglerforetaket, selger eller utleier.





























