Bildegalleri

Oscars gate 30 | Effektive og lyse kontorlokaler i toppetasjen rett ved Slottsparken
Nøkkelinfo
- Areal
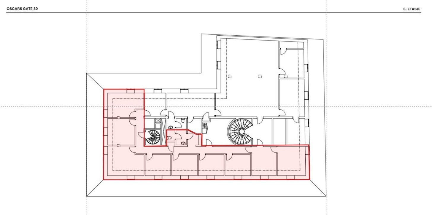
- 259 m²
- Etasje
- 6.
- Byggeår
- 1972
- Renovert år
- 2010
- Overtakelse
- 01.11.2024
Type lokale
Fasiliteter
Om eiendommen
Velkommen til Oscars gate 30!
Oscars gate 30 er et kontorbygg på 6 etasjer som ligger sentralt på Frogner, rett ved Slottsparken.
I underetasjen finnes det treningsrom, eksklusivt for bygget, med dame- og herregarderobe.
Gode parkeringsmuligheter både utendørs og i parkeringskjeller.
Det er mange gode spisesteder i området, alt fra cafeer til hyggelige restauranter. Nylig åpnet Kastellet i Hegdehaugsveien med restaurant og bar over tre etasjer.
Adkomst
Eiendommen har sentral beliggenhet med offentlig kommunikasjon i direkte nærhet, og med god parkeringsdekning.
- Bil: Muligheter for leie av parkeringsplass utenfor bygg, eller i parkeringskjeller. Direkte inngang fra parkeringskjeller til heis. Adgang garasje via Unloc- en appstyrt løsning på mobil.
- Trikk: Welhavens gate og Homansbyen, følgende linjer: 17, 18 og 19. Ca. 2 minutters gange.
- Buss: Camilla Colletts vei, Linje: 21, ca. 2 minutters gange
- T-bane: ca. 10 minutters gange både til Majorstuen og Nationaltheatret
- Tog/flytog: ca. 10 minutters gange gjennom Slottsparken til Nationaltheatret.
Innhold
Lyse og innbydende kontorlokaler på 259 m2 BTA i halve byggets 6. etasje. Lokalene har god standard, store vinduer og bra lysinnslipp.
Dagens løsning består primært av kontorer/teamkontorer og møterom.
Ta gjerne kontakt for en befaring av lokalene.
Matrikkelinformasjon
Nyttige lenker
Holm Eiendomsforvaltning AS
Nærområdet
Annonseinformasjon
| FINN-kode | 375976714 |
|---|---|
| Sist endret | 05. des. 2024 14:24 |
| Referanse | Oscarsgate 6.etasje |
Annonsene kan være mangelfulle i forhold til lovpålagt opplysningsplikt. Før bindende avtale inngås oppfordres interessenter til å innhente komplett informasjon fra meglerforetaket, selger eller utleier.









