Bildegalleri

EIE eiendomsmegling har gleden av å presentere Heimengveien 3 - En lekker, lys og innbydende 3-roms
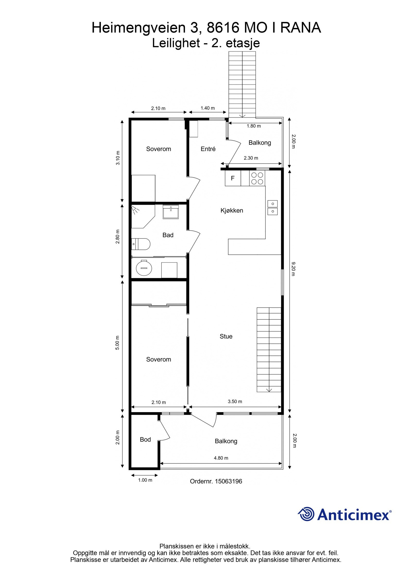
Lekker, lys og innbydende 3-roms leilighet over to plan | Sovealkove | Solrik balkong | Delikat kjøkken og bad | Carport
Nøkkelinfo
- Boligtype
- Leilighet
- Eieform
- Andel
- Soverom
- 2
- Internt bruksareal
- 85 m² (BRA-i)
- Bruksareal
- 90 m²
- Eksternt bruksareal
- 5 m² (BRA-e)
- Balkong/Terrasse
- 14 m² (TBA)
- Etasje
- 2
- Byggeår
- 2016
- Energimerking
- B - Rød
- Rom
- 3
- Tomteareal
- 2 177 m² (eiet)
Om boligen
EIE eiendomsmegling har gleden av å presenter Heimengveien 3 - En lekker 3-roms leilighet beliggende attraktivt til på Båsmo.
Velkommen til en flott 3-roms leilighet som kombinerer moderne komfort med klassiske kvaliteter! Leiligheten har en god takhøyde og store vindusflater som slipper inn rikelig med naturlig lys. Med en solrik balkong kan du nyte lange sommerdager, samtidig som den sørger for gode solforhold hele året. Leiligheten er malt i moderne, nøytrale farger som gir et stilrent og tidløst uttrykk. Rommene er lyse og luftige med en gjennomgående god planløsning. Her kan du flytte rett inn og trives fra første stund!
EIE ønsker velkommen!
Salgsoppgaven beskriver vesentlig og lovpålagt informasjon om eiendommen
Se komplett salgsoppgaveNærområdet
EIE eiendomsmegling Mo i Rana
Annonseinformasjon
| FINN-kode | 374990296 |
|---|---|
| Sist endret | 08. mai 2025 14:28 |
| Referanse | 100240136 |
Annonsene kan være mangelfulle i forhold til lovpålagt opplysningsplikt. Før bindende avtale inngås oppfordres interessenter til å innhente komplett informasjon fra meglerforetaket, selger eller utleier.







































