Bildegalleri

Velkommen til Myklevann/ Brokke.
Inaktiv
Brokke/ Myklevann Usjenert hyttetun med særpreg - 4 laftebygninger på 5 daa selveiertomt
Prisantydning3 500 000 kr
- Omkostninger
- 88 740 kr
- Totalpris
- 3 588 740 kr
Nøkkelinfo
- Beliggenhet
- På fjellet
- Boligtype
- Hytte
- Eieform
- Eier (Selveier)
- Internt bruksareal
- 108 m² (BRA-i)
- Bruksareal
- 124 m²
- Eksternt bruksareal
- 16 m² (BRA-e)
- Balkong/Terrasse
- 26 m² (TBA)
- Tomteareal
- 4 991 m² (eiet)
- Byggeår
- 1992
- Soverom
- 3
- Rom
- 5
- Overtakelse
- Overtakelse etter nærmere avtale med megler. Eiendommen blir ikke ytterligere rengjort før overtakelse. Dersom annet ikke avtales, sendes skjøte/hjemmelsdokument for tinglysing i etterkant av overtakelse.
Visning
Ønsker noen visning er det viktig at du melder deg på visningen ved å bruke visningspåmeldingsknappen eller kontakter megler.
Husk å lese komplett salgsoppgave før visning. Bestill komplett, utskriftsvennlig salgsoppgave.
VisningspåmeldingOm boligen
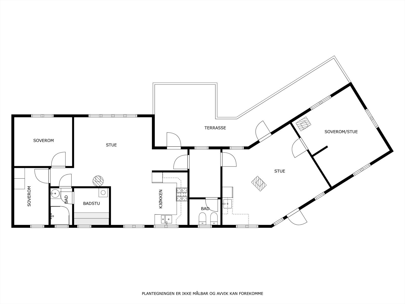
Særegent og røft hyttetun i Brokke i Valle kommune for salg. Hytta er fra 1992 og er laftet med torvtak. Her er noe enkel standard uten innlagt vann og strøm, men her er borehull med egen vannpost solcellepanel og kjørevei til døra.
Inneholder: Stue med kjøkkenkrok, stue/soverom, gang, toalettrom, bad med badstu, stue/kjøkken og 2 soverom. Det medfølger også en utebod, anneks og utedo. Hytta har en røff stil med solide tømmervegger, dragere i himlingen. Hyttetunet har 5 ildsteder, 4 i hovedhytta og 1 i annekset.
Eiendommen er selveier tomt på 4 991 kvm og er for det meste naturtomt. Hytta ligger på et lite høydedrag med en helt spesiell utsikt utover heiene. I området er det spredt fritidsbebyggelse og det er god avstand mellom hyttene. Det er et unikt turterreng og skiløypa går like ved.
Inneholder: Stue med kjøkkenkrok, stue/soverom, gang, toalettrom, bad med badstu, stue/kjøkken og 2 soverom. Det medfølger også en utebod, anneks og utedo. Hytta har en røff stil med solide tømmervegger, dragere i himlingen. Hyttetunet har 5 ildsteder, 4 i hovedhytta og 1 i annekset.
Eiendommen er selveier tomt på 4 991 kvm og er for det meste naturtomt. Hytta ligger på et lite høydedrag med en helt spesiell utsikt utover heiene. I området er det spredt fritidsbebyggelse og det er god avstand mellom hyttene. Det er et unikt turterreng og skiløypa går like ved.
NB: Knappen for å vise hele beskrivelsen har kun en visuell effekt.
NB: Knappen for å vise hele beskrivelsen har kun en visuell effekt.
Salgsoppgaven beskriver vesentlig og lovpålagt informasjon om eiendommen
Se komplett salgsoppgaveNærområdet
Aktiv Sørlandet
Annonseinformasjon
| FINN-kode | 374936089 |
|---|---|
| Sist endret | 24. mars 2025 08:37 |
| Referanse | 1408240200 |
Annonsene kan være mangelfulle i forhold til lovpålagt opplysningsplikt. Før bindende avtale inngås oppfordres interessenter til å innhente komplett informasjon fra meglerforetaket, selger eller utleier.




































































