Bildegalleri

1. etasje - Fugleliveien 13F
Skøyenåsen -Lekre, familieboliger under bygging. Flott arkitektur. 4-5 sovero...
Halvpart tomannsbolig - Fugleliveien 13F
Prosjektets status
Planlegging
Gjennomført
Salgsstart
Gjennomført
Byggestart
Byggingen er godt i gang
Overtakelse
Tas sikte på 3. / 4. kvartal 2026
Nøkkelinfo
- Boligtype
- Tomannsbolig
- Soverom
- 4
- Rom
- 6
- Internt bruksareal
- 154 m² (BRA-i)
- Bruksareal
- 154 m²
- Balkong/Terrasse
- 35 m² (TBA)
Beskrivelse
Velkommen til Fugleliveien 13
I meget attraktive, familievennlige omgivelser på Skøyenåsen er byggingen godt i gang, det bygges nå syv store, flotte boliger - en enebolig og seks halvparter (tre hele tomannsboliger). Boligene får moderne arkitektur, solrik takterrasse og fine hageområder. I tillegg er det parkering i felles underjordisk garasjeanlegg.
Alle boligene vil gå over tre etasjer med praktiske løsninger. Her får du blant annet enstavs eikeparkett fra Kährs, delikate fliser fra LB Extra, bad fra Vikingbad, kjøkken fra Sigdal, peisovn fra Peisselskabet og balansert ventilasjon med varmegjenvinning.
Boligene får omtrent samme størrelse og rominndeling, men med noen variasjoner. Eneboligen blir selvfølgelig den største av dem. Felles for alle er at det er lagt vekt på å skape lyse, luftige rom med store vindusflater og gode løsninger. Stuen og kjøkkenet ligger blant annet i åpen løsning - et stort allrom designet for både rolige familiekvelder og store selskap.
Videre får hver bolig entré i første etasje, fire eller fem soverom, to delikate bad, eget vaskerom og en koselig sekundærstue. Noen får også gjestetoalett. I tillegg får alle boligene egen inngang til underetasjen.
Skøyenåsen er et flott sted for familier, med kort vei til skoler, butikker, offentlig transport og flotte tur- og treningsområder. Disse boligene har alt familien trenger, og det er flere muligheter for innredning og diverse tilvalg. Hvis du tenker at dette kan være noe for deg, så er det bare å slå til så fort som mulig for å sikre deg den boligen du helst vil ha.
Tilvalg
Erfaringsmessig vet vi at de fleste ønsker å sette sitt personlige preg på boligen, og i disse boligene har du flere muligheter til det. Avhengig av hvor langt vi har kommet i byggeprosessen når avtale om kjøp inngås, kan det være mulighet for tilvalg. Ta gjerne kontakt med megler for en hyggelig prat og ytterligere informasjon. Det vil bli kalt inn til tilvalgsmøter med Follohus. Eventuelle tilvalg har tidsfrister i forhold til fremdrift i prosjektet.
Hvorfor kjøpe nytt?
- Boligen er i teknisk og forskriftsmessig stand.
- Garanti etter bustadoppføringsloven.
- Lavere dokumentavgift, betales kun av tomteverdien.
- Energiøkonomiske og klimavennlige løsninger.
- Tidsriktige materialer og høy bokomfort.
- Innflyttingsklar uten tanke på å måtte pusse opp først.
Oppdragsansvarlig
Dyve & Partnere Eiendomsmegling AS / Steffen Kjølstad
Selger/Utbygger
Bergskogen Eiendom AS
Arkitekt: Prosjektet er utviklet og tegnet av Blokk Arkitekter AS
Entreprenør: Follohus
Betegnelse
Gnr. 144 Bnr. 249 i Oslo kommune
Byggeår
2026
Arealer og fordeling per etasje
Totalt BRA 154 kvm består av:
- BRA-i (internt bruksareal): 154 kvm
- BRA-e (eksternt bruksareal):
- TBA (terrasse-/balkongareal) 35 kvm
13 A, enebolig:
Bruksareal: 189 kvm
BRA-i: 189 kvm
TBA: 61 kvm
13 B, halvpart:
Bruksareal: 153 kvm
BRA-i: 153 kvm
TBA: 37 kvm
13 C, halvpart:
Bruksareal: 153 kvm
BRA-i: 153 kvm
TBA: 37 kvm
13 D, halvpart:
Bruksareal: 148 kvm
BRA-i: 148 kvm
TBA: 32 kvm
13 E, halvpart:
Bruksareal: 147 kvm
BRA-i: 147 kvm
TBA: 32 kvm
13 F, halvpart:
Bruksareal: 154 kvm
BRA-i: 154 kvm
TBA: 35 kvm
13 G, halvpart:
Bruksareal: 153 kvm
BRA-i: 153 kvm
TBA: 35 kvm
Arealer påført i prospektets plantegninger er i noen tilfeller avrundet til nærmeste kvadratmeter og er ikke å betrakte som eksakte arealer. Arealer oppgitt på de enkelte rom på kontraktstegning kan bli justert i forbindelse med detaljprosjektering. Partene har ingen krav mot hverandre dersom arealene skulle bli 4% mindre eller større enn det markedsførte.
Beliggenhet og kort fortalt om eiendommene
Eiendommen ligger i et attraktivt og meget barnevennlig boligområde på Skøyenåsen i Oslo. Fra boligen er det kort vei til skoler, barnehager og offentlig kommunikasjon, samt et rikt utvalg av fasiliteter og servicetilbud. Parken rundt Nordre Skøyen hovedgård ligger rett ved, og det er også kort avstand til andre parker som blant annet Svartdalsparken.
Østensjøvannet kan også anbefales med sine flotte turstier og rike fugleliv, og det er under 10 minutters gange til nordenden av vannet. Med kort avstand til Østmarka har du tallrike rekreasjonsmuligheter hele året. Om sommeren byr Østmarka på kajakkpadling, bading og fisking ved Ulsrudvann og Nøklevann, samt fjellklatring i flere oppsatte ruter. Om vinteren finnes det milevis med oppkjørte skispor og et antall koselige sportsstuer.
Godlia Tennisklubb ligger i nærheten, og det er kort vei til Trasop idrettspark med kunstgressbane. Her ligger også Trasophallen og Oppsal Arena med sine sportslige tilbud og flotte fasiliteter. Områdets idrettsforening, Oppsal IF, har flotte fasiliteter og aktiviteter som basketball, fotball, håndball, ski, orientering, friidrett, hockey og cricket.
Servicetilbud
Dagligvarehandelen kan gjøres på blant annet Extra Skøyenåsen, Kiwi, Rema 1000 og Meny. Sistnevnte ligger på Bryn senter som ligger ca. 250 meter fra eiendommen. Ønsker du ytterligere servicetilbud er det kort kjørevei til Manglerud senter og Tveita senter.
Kollektivtilbudet i området består av buss, T-bane og tog. Nærmeste busstopp ligger kun et par minutters gange fra eiendommen, og både Høyenhall og Skøyenåsen T-banestasjon ligger i gangavstand (5-10 minutter unna). Det er ca. 7-800 meter til togstasjon på Bryn. Ved å benytte bil tar det ca. 4 min til Manglerud, 10 min til Oslo S og 35 min til Oslo lufthavn.
Fra eiendommen er det kort gangavstand til Østensjø barneskole og Skøyenåsen ungdomsskole. Det finnes flere videregående skoler i nærliggende områder, samt et godt utvalg av både private og kommunale barnehager.
Kort fortalt
- Flotte, familieboliger - byggingen er i gang.
- Med stilren og moderne arkitektur.
- Attraktivt område på Skøyenåsen.
- Gode solforhold og nydelig utsikt.
- Stor takterrasse, fine hageområder.
- Rikelig med boltreplass for barna.
- Kort vei til skoler og barnehager.
- En enebolig, tre hele tomannsboliger.
- God planløsning, store, luftige rom.
- Stue og kjøkken i en åpen løsning.
- Enstavs eikeparkett, flott peisovn.
- Sigdal kvalitetskjøkken.
- Egen sekundærstue i boligens underetasje.
- Fire eller fem lyse og fine soverom.
- Delikate bad med fliser og gulvvarme.
- Alle boligene får eget vaskerom.
- Flere boliger får også gjestetoalett.
- Balansert ventilasjon, varmegjenvinning.
- Alle boligene får 1 garasjeplass bortsett fra Hus A som får 2 garasjeplasser.
(tilleggsdel til hver enkelt seksjon)
- Mulighet for ekstra garasjeplass etter egen avtale med selger.
Byggemåte
Boligene bygges etter gjeldende regelverk (TEK17) og får pen arkitektur, smakfull innredning og tidsriktige løsninger. Her står kvalitet i fokus. Ansvarlig søker opplyser om at tiltaket er prosjektert i samsvar med TEK10, i henhold til overgangsbestemmelsene i TEK17 § 17-2.
Innhold
Planløsning 13 A, enebolig - 189 kvm BRA
1. etasje: Entré, wc-rom og stue/kjøkken
2. etasje: Trappegang, bad og 3 soverom
Underetasje: Trappegang, bod, vaskerom, bad, soverom og kjellerstue
Annet: Terrasse på 20,6 kvm, takterrasse på 42,5 kvm
Planløsning 13 B, halvpart - 153 kvm BRA
1. etasje: Entré, hall, bad og 3 soverom
2. etasje: Stue og kjøkken
Underetasje: Inngang, trappegang, vaskerom, bad, soverom og stue
Annet: Balkong på 3 kvm med trapp opp til takterrasse på 34,1 kvm
Planløsning 13 C, halvpart - 153,2 kvm BRA
1. etasje: Entré, hall, bad og 3 soverom
2. etasje: Stue og kjøkken
Underetasje: Inngang, trappegang, vaskerom, bad, soverom og stue
Annet: Balkong på 3 kvm med trapp opp til takterrasse på 34,1 kvm
Planløsning 13 D, halvpart - 148,2 kvm BRA
1. etasje: Entré, wc-rom og stue/kjøkken
1. underetasje: Trappegang, bad og 3 soverom
2. underetasje: Trappegang, vaskerom, soverom, bad, soverom og stue
Annet: Takterrasse på 32 kvm
Planløsning 13 E, halvpart - 147,6 kvm BRA
1. etasje: Entré, wc-rom og stue/kjøkken
1. underetasje: Trappegang, bad og 3 soverom
2. underetasje: Trappegang, vaskerom, soverom, bad, soverom og stue
Annet: Takterrasse på 32 kvm.
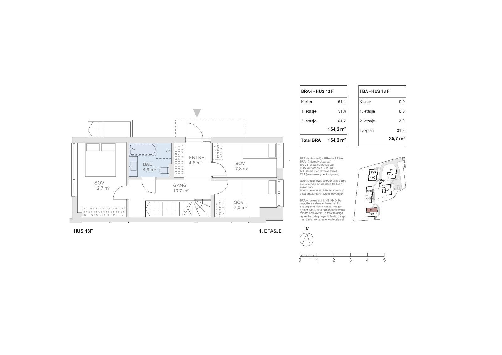
Planløsning 13 F, halvpart - 154,2 kvm BRA
1. etasje: Entré, hall, bad og 3 soverom
2. etasje: Stue og kjøkken
Underetasje: Trapperom, inngang, vaskerom, bad, soverom og stue
Annet: Takterrasse på ca. 32 kvm
Planløsning 13 G, halvpart - 153,9 kvm BRA
1. etasje: Entré, hall, bad og 3 soverom
2. etasje: Stue og kjøkken
Underetasje: Trapperom, inngang, vaskerom, bad, soverom og stue
Annet: Takterrasse på ca. 32 kvm
Standard
Entré
Boligene får inngangsparti i første etasje, og her monteres det en frostfri utekran. Entreen blir lun og innbydende med flislagt gulv, gulvvarme og lysmalte vegger. Alle boligene får hovedentré i første etasje med direkte tilgang til wc-rom. I tillegg blir det egen inngang til underetasjen, noe som gir flere muligheter for innredning og bruk.
Stue og kjøkken
Alle boligene får stue/kjøkken i åpen løsning - et nydelig rom som dekker hele etasjen. Eneboligen får stue/kjøkken i første etasje, og de andre boligene får stue og kjøkken i andre etasje. Rommet får vindusflater på tre sider, noe som gir et flott gjennomlys, og det blir også utgang til uteplass. I tillegg monteres det stemningsfull peisovn fra Peisselskabet.
På gulvet legges det enstavs, hvitpigmentert eikeparkett av typen Kährs Eik Vigot, og veggene males i fargen Bomull som standard. Andre farger kan velges som tilvalg. Kjøkkenet vil få stilren, moderne innredning fra Sigdal som tilpasses den enkelte boligs utforming.
Sekundærstue
I tillegg får boligene en koselig sekundærstue i underetasjen, noe som gir litt ekstra spillerom for familien. Rommet får samme type enstavs eikeparkett på gulvet som resten av boligen, pent malte vegger og store vinduer. I hver bolig har underetasjen egen inngang.
Bad/wc/vaskerom
Alle boligene får to delikate bad med stilren innredning fra Vikingbad. I tillegg får boligene vaskerom i underetasjen, og enkelte boliger får også et gjestetoalett.
Badene får delikate gulv- og veggfliser fra LB Extra i størrelse 30x30, og det kan velges mellom seks farger. På vaskerom og gjestetoalett vil veggene males i fargen bomull som standard. Det trekkes til lyspunkt i taket, og gulvene får deilig varme.
Bad og wc-rom innredes med Vikingbads Eli - en klassisk, heldekkende servant med hvite underskuffer. Over servanten monteres det speil med integrert belysning, og det monteres vegghengt toalett. I tillegg får badene dusjhjørne med regnfallsdusj, hånddusj og innfellbare glassdører.
Soverom og garderobe
Boligen får til sammen fire eller fem soverom - tre i første eller andre etasje, og ett eller to i underetasjen. Alle soverommene får enstavs eikeparkett på gulvet, og veggene males i fargen bomull som standard. Soverommene leveres ikke med garderobeskap som standard, men det er god plass til skap og lignende. Det er også plass til skap/oppbevaring i bod.
Oppvarming - Teknisk
Boligene har elektrisk oppvarming via gulvvarme i enkelte rom supplert med vedfyring. Det leveres peisovn fra Peisselskabet av typen Visionline S40. I tillegg installeres det balansert ventilasjon med varmegjenvinning (gjenvinningsgrad på over 80 prosent). Elanlegget leveres i henhold til NEK 400, og det leveres seriekoblet brannvarsel i hver etasje.
Parkering / Garasje
Hus B, C, D, E og F tildeles 1 garasjeplass. Hus A tildeles 2 garasjeplasser. Plassene seksjoneres som tilleggsdel til hver enkelt seksjon.
Plassene blir fordelt av utbygger i forbindelse med overtagelse av prosjektet.
Mulighet for ekstra garasjeplass etter egen avtale med selger.
Det vil i tillegg bli opparbeidet 3 stk utvendige bilopstillingsplasser til felles bruk for sameiet.
Ellers parkering etter områdets gjeldende bestemmelser.
Adkomst
Se vedlagt kartskisse på høyre side i annonsen. Ved å trykke på kartet får du enkelt tilgang til en spesifisert reiserute fra din startdestinasjon til boligen.
Beskrivelse av tomt
Alle boligene får en flott takterrasse med meget gode sol- og utsiktsforhold. Her kommer virkelig beliggenheten til sin rett. Takterrassene varierer i størrelse fra ca. 32 til 43 kvm, så det er god plass til utemøbler, grill med mer. Eneboligen får i tillegg utgang fra stue og kjøkken i første etasje til en stor terrasse på 20,6 kvm, og det er også mulighet for uteplass ved underetasjen.
Ellers får boligene fine hageområder rett utenfor, og det etableres et romslig fellesområde med rikelig med boltreplass for både store og små. Det er med andre ord flere muligheter for å nyte fine sommerdager.
I halvpartene er det en uteplass, hvor det kan etableres en platting som tilvalg om ønskelig.
Tomten er felles for sameiet og hver seksjon vil få midlertidig bruksrett til naturlig del av hage. Dette fremkommer på situasjonskart ved salg av prosjektet.
Tinglyste rettigheter og forpliktelser
Kommunen har legalpant som sikkerhet for betaling av kommunale avgifter. Legalpant er pant som følger av loven, og som ikke tinglyses. Legalpant følger derfor eiendommen ved salg. På eiendommen kan det være tinglyst erklæringer som f eks rett for kommunen til å vedlikeholde rørsystemer for vann- og kloakk. Disse erklæringene vil følge eiendommen ved salg. Kontakt megler for nærmere informasjon.
Øvrige sameiere har panterett i seksjonen for krav mot sameieren som følge av sameieforholdet, jf. eierseksjonsloven § 31. Pantekravet kan ikke overstige 2G (Folketrygdens grunnbeløp). Sameiet kan vedtektsfeste ytterligere panterett for sameiet. Vedtektsfestet pant tinglyses i seksjonene.
Servitutter / rettigheter
Eiendommen overdras fri for pengeheftelser, med unntak av eventuelle erklæringer, avtaler, servitutter og panteheftelser som fremgår av salgsoppgaven og skal følge med eiendommen ved salg. Kjøpers bank vil få prioritet etter disse.
1928/912290-1/105 Erklæring/avtale
13.07.1928
Regulering av areal i forbindelse med veggrunn/jernbanegrunn
1955/13802-1/105 Bestemmelse om veg
31.10.1955
Bestemmelse om gjerde
Bestemmelse om kloakkledning
Regulering av areal i forbindelse med veggrunn/jernbanegrunn
Overført fra: 0301-144/1031
Utdrag fra bestemmelsen (vedlagt salgsoppgaven):
"1.Fugleliveien godkjennes inntil videre i sin nåværende bredde 4m bred kjørebane.
2.Eieren må ved tinglest erklæring forplikte seg til, når Oslo kommune måtte forlange det, å opparbeide veiene med kloakk langs tomta i inntil 8m bredde, heri innbefattet fortau og kloakk av inntil 305 mm diameter. Inntil veier med kloakk er således opparbeidet og veigrunn tilskjøtet kommunen, overtar grunneieren veiens vedlikehold.
3. Eventuell grunnerhvervelse må skje uten utgift for kommunen.
4. Gjerde settes opp etter reguleringsvesenets bestemmelser.
Denne beslutningen gjelder kun den etter bygningslovens pliktige veiopparbeidelse og ikke selve bebyggelsen, som må approberes av Oslo bygningsvesen.
Foranstående betingelser vedtas på egne og senere eieres vegne som heftelse på omhandlede eiendom."
1955/14033-1/105 Erklæring/avtale
04.11.1955
Vedtak av Oslo kommunes vann- og kloakkreglement
Overført fra: 0301-144/1031
1965/4190-1/105 Skjønn
25.03.1965
Dok. tgl. m/dbnr. 4190 - 4213.
Gjelder denne registerenheten med flere
1970/18437-1/105 Erklæring/avtale
30.10.1970
Vedtak av Oslo kommunes vann- og kloakkreglement
Kan ikke slettes uten samtykke fra kommunen
2019/322238-1/200 Bestemmelse om vann/kloakk
18.03.2019 21:00
rettighetshaver:Knr:0301 Gnr:144 Bnr:249
Adkomstrett for drift og vedlikehold av anlegg/ledninger/kabler
Overført fra: 0301-144/1031
2022/442803-1/200 Bestemmelse om veg
26.04.2022 21:00
Rettighetshaver:OSLO KOMMUNE
Org.nr: 958935420
Kan ikke slettes uten samtykke fra:OSLO KOMMUNE
Org.nr: 958935420
Utdrag fra bestemmelsen (vedlagt salgsoppgaven):
"Erklæringen gjelder gnr. gnr. 144 bnr. 249, Fugleliveien 13 i Oslo, saksnummer 201814845, 201815434, 201815437 og 201815440.
1. Som hjemmelshaver (grunneier) er jeg kjent med at Plan. og bygningsetaten i Oslo kommune har gitt utsettelse av kravet i plan- og bygningsloven § 18-1 om å opparbeide offentlig vei. Kravet er utløst i forbindelse med bebyggelse av eiendommen.
Fugleliveien godkjennes inntil videre i sin nåværende bredde.
Jeg er kjent med at kommunen når som helst kan gjøret kravet om opparbeidelse av offentlig vei gjeldende, og at jeg da får plikt til å opparbeide veien i regulert veibredde fram til og langs den siden av tomten hvor den har sin atkomst. Dersom kravet gjøres gjeldende, forplikter jeg meg til på egen bekostning å legge ut veien i en bredde på inntil 10 meter, men ikke bredere enn den regulerte bredden, og med nødvendige tillegg for fylling og skjæring.
På tilsvarende måte forplikter jeg meg til å opparbeide veien til en effektiv veibredde på inntil 6 meter. Veien skal ha den standarden som gjelder for offentlig vei i Oslo kommune.
2. Hvis jeg ikke sørger for å få utført arbeidet som er pålagt, har kommunen rett til å opparbeide eller la andre opparbeide veien. Har jeg stilt sikkerhet for veiopparbeidelse, kan kommunen bruke sikkerheten til dette formålet.
3. Jeg godtar forpliktelsene som er nevnt i punkt 1 og 2, og at disse tinglyses på eiendommen som en heftelse.
4. Jeg forplikter meg til å overdra den nødvendige veigrunnen med en bredde på inntil 10 meter, men ikke bredere enn den regulerte bredden, vederlagsfritt til Oslo kommune. Kommunen får bruksrett til skjærings- og fyllingsarealer. Plan- og bygningsetaten fastsetter den endelige avgrensningen. Betingelsen for at kommunen vil erverve (ta over) veigrunnen, er at veien er opparbeidet , og at kommunen har godkjent den.
En skriftlig bekreftelse fra Plan- og bygningsetaten på at opparbeidelsen har funnet sted, er tilstrekkelig bevis for at betingelsene for eiendomservervet er oppfylt, jf. tinglysningsloven § 14 annet ledd.
5. Erklæringen kan ikke avlyses uten samtykke fra Oslo kommune, organisasjonsnummer 958 935 420, ved Plan- og bygningsetaten."
Vei / Vann / Avløp
Eiendommen vil være knyttet til offentlig nett for vei, vann og avløp.
Det vil etableres felles pumpekum for avløp. Det fremtidige sameiet bør inngå årlig serviceavtale for dette.
Ferdigattest eller midl. brukstillatelse
Selger er ansvarlig for at det blir utstedt midlertidig brukstillatelse før overtakelse. Manglende ferdigattest er allikevel ikke til hinder for overtakelse dersom de gjenstående arbeider er av en slik karakter, for eksempel knyttet til ferdigstillelse av utomhusarbeider, at kommunen finner det ubetenkelig å utstede midlertidig brukstillatelse. I midlertidig brukstillatelse skal det fremgå hvilke arbeider som gjenstår og en frist for ferdigstillelse. For overtakelse som gjennomføres i vinterhalvåret må det påregnes utstedelse av midlertidig brukstillatelse og ikke ferdigattest ettersom søknadspliktige utomhusarbeider ikke kan gjennomføres før klimatiske forhold gjør det mulig.
Det tas et generelt forbehold om myndighetenes saksbehandlingstid ved søknad om midlertidig brukstillatelse.
Verdi ved skattefastsetting
Verdien ved skattefastsetting er p.t. ikke fastsatt. Verdien ved skattefastsetting fastsettes av Ligningskontoret etter beregningsmodell som tar hensyn til om boligen er en såkalt "primærbolig" (der boligeieren er folkeregistrert bosatt) eller "sekundærbolig" (alle boliger man eier, men ikke bor fast i). Interessenter oppfordres til å sjekke www.skatteetaten.no eller kontakte ansvarlig megler for nærmere informasjon om verdien ved skattefastsetting.
Reguleringsforhold
Eiendommen ligger på en tomt regulert til byggeområde for boliger (reguleringsbestemmelser S-4220 (Småhusplanen), bolig med tilhørende anlegg (reguleringsbestemmelse 32277), offentlig kjørebane/veigrunn (reguleringsbestemmelse 1139522).
Småhusplanen
Revisjon av reguleringsplan for småhusområder i Oslos ytre by (småhusplanen - reguleringsplan S-4220). Saksnummer: 202102096. Fortsetter i sak: 202300230 - Midlertidig forbud mot tiltak. Saksnummer: 202304720:
Plan- og bygningsetaten (PBE) har siden februar 2021 jobbet med en revisjon av småhusplanen. De viktigste endringene er blant annet at en mindre andel av tomtene kan utnyttes til bebyggelse når de skal utvikles, og at det innføres en minstestørrelse for tomter per boenhet som skal bygges. Trær, terreng og vegetasjon skal ivaretas bedre enn i dag.
Hva er status nå? (ref Oslo kommunes hjemmeside pr. 04.10.2024):
"Bystyret har vedtatt en ny småhusplan, men den er ikke rettskraftig enda. Det er fordi Norges Vassdrags- og energidirektorat (NVE) har reist en innsigelse til den nye planen knyttet til risiko- og sårbarhetsanalyse. Eiendommer omfattet av den nye småhusplanen har derfor fortsatt et gjeldende midlertidig forbud mot tiltak (MFT).
Oslo kommune og Norges Vassdrags- og energidirektorat (NVE) gjennomførte 2. november et meklingsmøte hos Statsforvalteren. Meklingen førte ikke til enighet og småhusplanen skal nå endelig avgjøres av Kommunal- og distriktsdepartementet.
Søknader som er omfattet av unntakene i MFT, tar vi som tidligere fortsatt til behandling. Søknader som ikke er omfattet av unntakene i MFT, tar vi fortsatt ikke til behandling. Slike saker setter vi på vent frem til departementet har tatt endelig stilling til planen."
Se kommunen og PBE sine nettsider for mer informasjon:
https://www.oslo.kommune.no/slik-bygger-vi-oslo/revisjon-av-smahusplanen/
https://innsyn.pbe.oslo.kommune.no/saksinnsyn/casedet.asp?direct=Y&mode=&caseno=202300230
https://innsyn.pbe.oslo.kommune.no/saksinnsyn/casedet.asp?caseno=202304720
Reguleringskart med bestemmelser ligger vedlagt i salgsoppgaven og vi anbefaler alle å sette seg inn i denne. Ny kommuneplan fra 23. september 2015. Oslo kommune har vedtatt en ny kommuneplan. Dette får betydning for en rekke av de vedtatte reguleringsplanene i kommunen. Oslo er under stor utvikling og byggeprosjekter må påregnes.
For informasjon om eventuelle arbeider i nærliggende områder anbefaler vi et søk på plan og bygg sin sakinnsyn portal: https://www.oslo.kommune.no/plan-bygg-og-eiendom/
Fugleliveien 17 A - Bruksendring av del av underetasje fra tilleggsdel til hoveddel - Utvidelse av vinduer: Saksnummer: 202203047 - Byggesak
Fugleliveien 17 B - Dispensasjon fra krav om avstand til vei - Oppføring av garasje: Saksnummer: 202457763 - Byggesak
Fugleliveien 14 B - Bruksendring av del av kjeller til varig opphold, fasadeendringer, utvidelse av terrasser med underbygging av garasje: Saksnummer: 202112315 - Byggesak
Fugleliveien 19 C - Oppføring av garasje, bod og støttemur: Saksnummer: 202452726 - Byggesak
Fugleliveien 19 - Oppføring av tomannsbolig: Saksnummer: 201917323 - Byggesak
Fugleliveien 3 B - Oppføring av enebolig og støyskjerm: Saksnummer: 202113295 - Byggesak
Fugleliveien 4 B - Etablering av ny boenhet, tilbygg, påbygg, fasadeendring og bruksendring: Saksnummer: 202318222 - Byggesak
Johan Evjes vei 15 A - Oppføring av tomannsbolig: Saksnummer: 202305905 - Byggesak
Toftdahls vei 1 B - Oppføring av enebolig og garasje: Saksnummer: 202217314 - Byggesak
Beskrivelse av sameiet
Eierseksjonssameiet (heretter kalt sameiet) omfatter eiendommen Fugleliveien 11 og 13, gnr. 144, bnr. 249 i Oslo kommune og vil etter seksjonering bestå av 8 seksjoner. Hver bolig får midlertidig bruksrett til deler av felles areal/hage.
Sameiets navn er: Eierseksjonssameiet Fugleliveien 11B og 13 A-G.
Boligene vil bli seksjonert. Seksjonsnr. kan endres før tinglysning.
Tomten blir fellesareal. Alle bruksretter som blir omtalt i denne salgsoppgaven er vedtekstfestede:
Varigheten av en eksklusiv enerett til bruk som følger av denne bestemmelsen er fastsatt til 30 år fra vedtektenes vedtakelse og kan ikke endres uten tilslutning fra de seksjonseiere som blir berørt ved endringer i perioden. Etter 30 år går bruksretten tilbake til sameiet som da vil disponere arealet og bruksretten kan ikke fornyes.
En sameier eier en andel i eiendommen, med tilknyttet enerett til bruk av sin bruksenhet, jf. eierseksjonsloven § 25.
Ingen kan erverve mer enn to boligseksjoner i et sameie, jf. eierseksjonsloven § 23 første ledd. Dersom et erverv har funnet sted i strid med eierseksjonslovens regler kan Kartverket nekte overskjøting.
Dersom overskjøting blir nektet, er kjøper likevel forpliktet til å gjennomføre handelen med selger, og oppgjør til selger vil finne sted tross manglende overskjøting.
Interessenter oppfordres til å sette seg inn i sameiets vedtekter, husordensregler, regnskap, budsjett, årsberetning m.m. Se særlig om vedtekter og husordensregler knyttet til husdyrhold, dugnader, trappevask o.l.
Andre faste løpende kostnader
FELLESKOSTNADER - FORDELING AV KOSTNADER
Offentlige og kommunale avgifter faktureres direkte til hver enkelt seksjonseier. Hver enkelt seksjonseier er ansvarlig for egen forsikring.
Øvrige kostnader med eiendommen som ikke knytter seg til den enkelte bruksenhet fordeles på sameierne etter 1/8 på hver seksjon. Det er opp til det fremtidige sameiet om det er nødvendig å fastsette felleskostnader.
Det estimeres ca. 200,- kr pr mnd pr seksjon for strengt nødvendige kostnader til f.eks. lys i garasjeanlegget.
Sameiermøtet kan beslutte å engasjere vaktmestertjeneste for drift og vedlikehold av fellesarealet som ikke benyttes av seksjonene, herunder måking av snø.
Der særlige grunner taler for det kan en kostnad fordeles etter nytten for den enkelte bruksenhet eller etter forbruk, som f.eks felles snømåking, utebelysning etc.
Strømforbruk er ikke estimert ettersom boligene ikke er ferdigstilt og tatt i bruk.
Kommunale avgifter vil tilkomme men er ikke fastsatt ettersom boligene ikke er tatt i bruk.
Eiendomsskatt:
I Oslo kommune er det eiendomsskatt.
For boliger og fritidsboliger er eiendomsskatten 2,35 promille av eiendomsskattegrunnlaget minus bunnfradraget. Bunnfradraget for 2025 er på inntil 4,7 millioner kroner.
Eiendomsskatten beregnes etter denne formelen:
(Eiendomsskattegrunnlag - bunnfradrag) x 0,00235 = eiendomsskatt per år
-Hva er eiendomsskattegrunnlaget?
For boliger hvor kommunen har mottatt boligverdi fra Skatteetaten, er eiendomsskattegrunnlaget for 2025 70 prosent av boligverdien. De fleste boliger har boligverdi fra Skatteetaten.
For boliger som ikke har boligverdi fra Skatteetaten og for fritidsboliger, er eiendomsskattegrunnlaget 70 prosent av taksten fra kommunen for 2025.
-Hva er bunnfradrag?
Bunnfradraget er et fradrag på inntil 4,7 millioner kroner som gis til alle boliger. Bunnfradraget trekkes fra eiendomsskattegrunnlaget før du beregner skatten.Boliger med flere boenheter som oppfyller kravene til selvstendig boenhet, kan ha krav på ekstra bunnfradrag.
Eiendomsskatten er 2,35 promille av differansen mellom eiendomsskattegrunnlaget og bunnfradraget.
Andel fellesgjeld / formue
Det er ikke formue eller gjeld i sameiet.
Finansiering
Kontakt megler for avklaring av finansielle forhold, herunder lån til kjøp av eiendom. Privatmegleren har avtale med Nordea om formidling av lån og andre finansielle tjenester. Privatmegleren mottar godtgjørelse for dette.
Spesifikasjon av lån
Det blir ikke lån i sameiet i forbindelse med salg av prosjektet.
Annen nyttig informasjon
VEDLIKEHOLD
Den enkelte sameier skal fullt ut og for egen regning vedlikeholde egen bruksenhet slik at det ikke oppstår skade eller ulempe for de andre sameierne. Det samme gjelder for fellesareal der en seksjonseier er gitt midlertidig enerett til bruk.
Innvendige vann- og avløpsledninger omfattes av seksjonseierens vedlikeholdsplikt til og med forgreningspunktet inn til seksjonen, og de elektriske ledninger til og med seksjonens sikringsboks.
Seksjonseierne av nye tomannsboliger og ny enebolig har felles ansvar for vedlikehold av utvendig bygningsmasse.
Herunder også felles ansvar men ikke begrenset til vedlikehold av grunnmur, fasade, tak etc..
Eksisterende/eldre enebolig har eget ansvar for vedlikehold for egen bygningsmasse.
Ytre vedlikehold av eiendommen med fellesarealer (vei), felles anlegg og utstyr er sameiets ansvar.
Dersom en seksjon ikke får vedlikeholdt egen bygningsmasse som følge av begrensning i bruksrettet hage, må naboseksjon samtykke til tilgang for vedlikehold.
For opphevelse og/eller endringer av punkt 8 kreves det enighet mellom sameierne.
VERDIFORSIKRING AV EIENDOMMEN
Bygningene skal ha separate byggforsikringer hvis ikke sameiet enes om noe annet.
Alle seksjoner sørger for bygningsforsikring av egen bygning frem til det blir enighet om en eventuell felles forsikring i regi av sameiet.
Den enkelte sameier svarer for forsikring av eget innbo.
Adgang til utleie
Eier har full råderett over egen seksjon og kan fritt leie den ut til boligformål.
Det foreligger ingen begrensning iht. kommune om utleie av hele boligen som en bruksenhet.
Konsesjon / Odel
Det er ikke krav om søknad om konsesjon. Det hviler ikke odel på eiendommen.
Sikkerhetsstillelse
Alle eiendomsmeglingsforetak har lovpålagt forsikring av klientmidler begrenset oppad til kr 45 mill. Enkeltsaker er forsikret inntil kr 15 mill. Dersom kjøpers låneinstitusjon krever tilleggsforsikring ved omsetning over 15 millioner, må kjøper selv eller dennes låneinstitusjon dekke utgiftene forbundet med dette.
Planlagt overtagelse
Antatt ferdigstillelse av prosjektet vil være Q3 eller Q4 2026.
Det presiseres at dette tidspunktet kun er estimert og ikke bindende frist for ferdigstillelse/å ha boligen klar for overtagelse, herunder ikke grunnlag for å kreve dagmulkt.
Selger plikter å stille garanti overfor kjøper i henhold til bestemmelsene i buofl. § 12. Ved avtale om forskuddsbetaling skal selger også stille garanti etter buofl. § 47. Garanti etter buofl. § 12 skal stilles umiddelbart etter selgers aksept av kjøpers bud.
Selger har dog tatt forbehold om salg av 3 boliger og garanti skal derfor stilles straks etter at forbehold er oppfylt og under enhver omstendighet innen byggearbeidene starter.
Selger forbeholder seg retten til å kunne overlevere inntil 3 måneder tidligere dersom fremdriften tillater det og dette synes hensiktsmessig. Selger tar forbehold om at det oppnås nødvendige offentlige godkjenninger for prosjektet slik det er presentert.
Arbeidet skal utføres av selger med rimelig fremdrift og uten unødige avbrudd. Endelig overtagelsesdato vil meddeles tidligst med 3 måneders skriftlig varsel og senest med 6 ukers skriftlig varsel fra Selger. Denne datoen vil være å regne som frist iht. Bustadoppføringslova.
Selgers forbehold
Prosjektet har fått rammetillatelse og igangsettingstillatelse. Det må også tas forbehold om at vedlagte tegninger kan bli justert grunnet kommunale krav, og evt endringer vil bli varslet.
Salg av kontraktsposisjon er kun tillatt etter godkjenning fra selger. Selger kan uten nærmere begrunnelse nekte slik godkjenning og overskjøte eiendommen til opprinnelig kjøper. Om slikt samtykke gis, vil selger fastsette et transportgebyr. Transportgebyret vil utgjøre kr. 100 000,-. Salg av kontraktsposisjon vil normalt uansett ikke skje tett opp mot ferdigstillelse.
Avbestillinger
Kjøper har avbestillingsrett etter bufl. § 52 etter at bindende avtale er inngått gjennom bud og budaksept. Ved kjøpers avbestilling reguleres erstatningen av bufl. § 53, slik at selger skal ha erstattet hele sitt økonomiske tap som følge av avbestillingen. Kjøper gjøres oppmerksom på at det økonomiske tapet kan bli betydelig, bl.a. avhengig av markedsutviklingen fra kjøpekontraktens inngåelse.
Kjøper har rett til å avbestille leveransen før overtakelse har funnet sted, jf. buofl. §§ 52-54. Avbestilling før bygging er besluttet igangsatt vil medføre et avbestillingsgebyr på kr 150 000,-
Kontakt gjerne megler for nærmere informasjon dersom avbestilling vurderes. Bestilte endringer og tilvalg må uansett betales i sin helhet.
Tilvalg
Det vil, i en tidsbegrenset periode, være anledning til å gjøre enkelte tilvalg til boligene mot tillegg i pris. Adgang til tilvalg er oppad begrenset til 15 % av kjøpesum og innenfor et definert utvalg i henhold til bustadoppføringslova § 9. Alle tilvalg avtalefestes direkte mellom kjøper og entreprenør i separat skriftlig avtale. Etter at bygging er startet, tas det forbehold om at enkelte endringer ikke kan gjennomføres da innkjøpene og byggingen kan ha kommet for langt. Det kan ikke gjøres endringer på byggenes tak, fasade, vinduer, utvendige dører, balkonger, terrasser og fellesarealer inne og ute. Det kan ikke bestilles innredning som medfører endringer av faste tekniske installasjoner som ventilasjon, sprinkler, elektro, vann og avløp. Det kan ikke benyttes andre leverandører eller utførende ved kjøp av tilleggstjenester/endringer enn de selger og totalentreprenør har valgt for prosjektet. Det kan ikke påregnes at andre endringer kan foretas og de kan uansett ikke utføres om de er i strid med rammetillatelse eller vil kunne medføre forsinkelse i prosjektets fremdrift. Det må da tas forbehold i kjøpstilbudet dersom interessent/kjøper har ønske om tilvalg/endring som denne mener skal være mulig å få levert av selger. Konferer megler for nærmere informasjon.
- Endringer vil alltid kunne medføre at arkitekt eller entreprenør må vurdere gjennomførbarheten.
- Det er kun mulig å trekke ut deler av leveransen dersom det er gjort særskilt avtale om dette.
- Dersom pristilbud ikke aksepteres sammen med en eventuell tidskonsekvens og innenfor den gitte tidsfrist vil standardleveransen ligge til grunn.
- Selger har krav på vederlag for utarbeidelse av pristilbud, tegninger m.v. jfr. Bustadoppføringslova § 44.
- Det må påregnes å betale veiledende priser for tilvalg, med et påslag på 15% (til dekning av administrasjon, koordinering, garantier, risiko, fortjeneste, med mer).
Alle tilvalgsbestillinger/endringer skal innbetales meglers klientkonto eller faktureres direkte fra selger eller den selger måtte oppnevne. Innbetalinger forbundet med tilvalg/endringer skal ikke utbetales selger eller andre selger måtte oppnevne før skjøtet er tinglyst på kjøper eller det er stilt garanti iht. bustadoppføringslovas § 47. Alle kostnader forbundet med tilvalg skal være innbetalt før overtagelse og senest samtidig med sluttoppgjøret.
Boligene leveres i byggerengjort stand. Det vil si at boligen ryddes for avfall og gulv og skap vaskes. Øvrig vask av overflater og vinduer må utføres av kjøper.
Boligenes arealer er angitt så nøyaktig som mulig på tegninger før boligen er detaljprosjektert. Selger tar forbehold om arealavvik +/- 4% uten at kjøper kan kreve kompensasjon.
Kjøpekontrakten som ligger vedlagt salgsoppgaven er den som ligger til grunn for handelen. Dersom kjøper ønsker endring i kjøpekontrakten må dette medtas i innlevert budskjema som et forbehold.
Selgeren har rett til å foreta endringer i utomhusanlegg, fellesareal, konstruksjoner, rørføringer og materialvalg mv, uten at dette gir rett til endring av avtalt pris, forutsatt at endringene ikke reduserer utearealene og boligens kvalitet. Slike endringer er ikke å anse som mangler, og gir derfor ikke kjøper rett til prisavslag, retting eller andre mangelsbeføyelser. Selger skal, så langt det er mulig, informere kjøper om endringer som nevnt over.
I nye hus vil det over tid normalt kunne oppstå svinnriss, sprekker i sparkel, maling, fuger mv, særlig ved skjøter, hjørner og sammenføyninger, dels på grunn av uttørking av materialer og dels på grunn av bevegelser i/mellom bygningsdeler. Det påpekes spesielt at sprekker i materialoverganger og mellom tak og vegg og i hjørner som oppstår etter overtagelse, ikke kan påberopes som mangler, med mindre disse har oppstått som følge av avvik fra vanlig god håndverksmessig standard.
Hver kjøper vil ved overtakelse få tildelt en FDV-dokumentasjon som viser hvilke materialer, produkter og fargevalg som er benyttet i boligen i tillegg til adresselister med oversikt over kontaktpersoner/firma som er ansvarlig for de forskjellige arbeider og vedlikehold.
Det kan forekomme avvik mellom leveransebeskrivelsen og plantegninger. I slike tilfeller er det alltid leveransebeskrivelsen som er retningsgivende. Dersom det er avvik mellom prospekt/internettside og leveransebeskrivelsen, er det den endelige leveransebeskrivelsen i kontrakt som gjelder. Omfanget av leveransen er begrenset til dette.
Alle opplysninger i leveransebeskrivelsen er gitt med forbehold om rett til endringer som er hensiktsmessige og nødvendige, forutsatt at det ikke reduserer den generelle standard vesentlig. Kjøper aksepterer uten prisjustering at selger har rett til å foreta slike endringer. Eksempler på slike endringer kan være innkassing av tekniske anlegg, mindre endringer av boligens areal eller liknende. Selger tar forbehold om endringer pålagt av offentlige myndigheter som kan få betydning for prosjektets gjennomføring.
Byggebeskrivelsen/leveransebeskrivelsen skal angi hvilken teknisk standard prosjektet leveres med, samt foreløpig angi hva komplett leveranse etter kjøpekontrakten innebærer. Dersom det ikke er tatt inn spesifiserte bestemmelser i kjøpekontrakten gjelder følgende krav:
De tekniske løsningene skal tilfredsstille plan- og bygningslovgivningen, herunder kravene i teknisk forskrift. Selger forbeholder seg retten til å foreta endringer i materialvalg og konstruksjonsløsninger, samt foreta tilpasninger som er nødvendige etter hvert som tiltaket detaljprosjekteres uten forhåndsvarsel til kjøperne. Endringene skal ikke redusere byggets eller boligens egenskaper/funksjon eller vesentlig endre innholdet i prosjektet som sådan. Slike endringer gir ikke rett til prisjusteringer fra noen av partene. Om det blir nødvendig å gjennomføre vesentlige endringer ut over forannevnte bestemmelser, plikter selger å varsle kjøper om endringer uten utgrunnet opphold.
Selger forbeholder seg retten til å endre antall seksjoner og sammensetninger av usolgte boliger dersom det vurderes som hensiktsmessig. Seksjonering kan ta tid som følge av lang saksbehandling i kommunen. Eierforholdet reguleres av eierseksjonsloven av 23. mai 1997 nr 12. Med eierseksjon forstås sameieandel i bebygd eiendom med tilknyttet enerett til bruk av bolig.
Selger forbeholder seg retten til å akseptere eller forkaste ethvert bud/kjøpetilbud på fritt grunnlag. Selger kan velge å tildele boliger uten å begrunne tildelingen og uten forutgående varsel til andre som har lagt inn bud på samme bolig.
Videre har selger anledning til å avvise bud fra interessenter som måtte motsette seg å anvende eller kreve endringer i standard kjøpekontrakt. Det forutsettes at skjøtet tinglyses i kjøpers navn. Hvis interessent mot formodning ikke ønsker tinglysing av skjøtet, må det tas forbehold om dette i bud.
Overskjøting og oppgjør:
Det forutsettes at skjøtet tinglyses i kjøpers navn i henhold til kjøpekontrakten. Ved eventuell endring i eierskap/navne-endring fra kjøpers side etter bud/aksept vil det påløpe administrasjonsgebyr på kr. 25.000,- inkl. mva. som innbetales meglers driftskonto. Eventuell endring av vilkårene i kjøpekontrakten krever selgers samtykke. Selger har rett til selv å avgjøre om han vil godta eller avslå transport av kjøpekontrakter. Det økonomiske oppgjøret vil bli utført av meglerforetaket selv eller meglerforetakets kontraktsmedhjelper.
Selger tar forbehold om å foreta justeringer i kontrakten som følge av offentlige krav m.m.
I henhold til Lov av 6. mars 2009 nr. 11 om tiltak mot hvitvasking og terrorfinansiering mv. er megler pliktig til å gjennomføre kundekontroll av oppdragsgiver og/eller eventuelle reelle rettighetshavere til salgsobjektet. Det samme gjelder for medkontrahenten til oppdragsgiver og/eller eventuelle reelle rettighetshavere til salgsobjektet.
Dersom nevnte parter ikke oppfyller lovens krav til legitimasjon eller megler har mistanke om at transaksjonen har tilknytning til utbytte av en straffbar handling eller forhold som rammes av straffeloven §147 a, 147 b eller 147c kan megler stanse gjennomføringen av transaksjonen. Megler kan ikke holdes ansvarlig for de konsekvenser dette vil kunne medføre for oppdragsgiver og/eller eventuelle reelle rettighetshavere til salgsobjektet eller deres medkontrahent.
Selger forbeholder seg retten til å transportere sine rettigheter og forpliktelser underveis i prosjektet.
Alle illustrasjoner, 3D perspektiver, skisser, møblerte plantegninger m.m. er kun ment å danne et inntrykk av den ferdige bebyggelsen, og kan således ikke anses som endelig leveranse. Inntegnet utstyr/inventar medfølger ikke, så som f.eks. lamper, og det vil derfor fremkomme elementer i presentasjonsmaterialet som ikke inngår i leveransen. Generelle beskrivelser av prosjektet i salgs- og markedsføringsmateriell vil ikke passe for alle boliger. Interessenter oppfordres derfor særskilt til å vurdere dette; (solforhold, utsikt, beliggenhet i forhold til terreng og omkringliggende bygningsmasse mv.) før budgivning. Tinglysing og gjennomføringen av det økonomiske oppgjøret vil skje gjennom Noroppgjør. Selger forbeholder seg retten til å foreta kredittvurdering av kjøpere.
Det tas forbehold om trykkfeil i leveransebeskrivelsen og prospektet for øvrig.Det samme gjelder rombeskrivelser for hver bolig. Kjøper oppfordres til å sette seg inn i romfordelingen som følger av plantegningene til hver enkelt bolig). Prospektet inneholder flere perspektiver, utsiktsbilder og datagenererte bilder som kan avvike fra endelig oppførelse med hensyn til arkitektur, tekniske løsninger, byggenes plassering på tomten og utsiktsforhold. Alle illustrasjoner må dermed betraktes som omtrentlige og skissepregede. Alle plantegninger i prospektet er kun ment som illustrasjon og er ikke målbare.
Solgt ihht bustadoppføringsloven
Boligene selges i henhold til Bustadoppføringslova som regulerer kjøpers (forbrukers) rettigheter og plikter ved avtale om oppføring av bolig og kjøp av fast eiendom der bygningen ikke er fullført når avtalen inngås. Ved salg til aksjeselskap legges Avhendingslovens bestemmelser til grunn. For øvrig gjelder Lov om eierseksjoner for eierseksjonssameiet og driften av dette.
Garantier
Det stilles garantier i henhold til Bustadoppføringslovas bestemmelser. Garanti etter § 12 vil bli stilt i forbindelse med avtaleinngåelse. Selger har dog tatt forbehold om salg av 3 boliger og garanti skal derfor stilles straks etter at forbehold er oppfylt og under enhver omstendighet innen byggearbeidene starter.
Garantien skal være pålydende 3% av kjøpesummen i byggetiden og 5% i 5 år etter overlevering av boligene til kjøper. Garanti etter § 47 forutsettes stilt om selger ønsker utbetalt forskudd/delinnbetaling/sluttoppgjør før hjemmelsovergang. Eventuelle påkrevde endringer av garantier ved eventuelle videresalg/transporter utføres ikke og bekostes ikke av selger.
Forsikring
Frem til overtagelse vil eiendommen være forsikret av selger. Etter overtagelse vil eiendommen forsikres gjennom sameiets fellesforsikring. Kjøper må selv besørge innboforsikring og forsikring av eventuelle særskilte påkostninger.
Budgiving
Boligene selges til fastpris.
Alle bud/kjøpetilbud på eiendommen skal være skriftlig og sendes meglerforetaket pr. mail, sms eller via vår "gi bud"-knapp på våre nettsider. Knappen finner du også på Privatmeglerens hjemmeside for prosjektet, se på den enkelte bolig.
Bud/kjøpetilbud må ikke ha kortere akseptfrist enn til kl. 12.00 første virkedag etter siste annonserte visning. Lørdag regnes ikke som virkedag. Bud/kjøpetilbud med kortere frist enn dette kan ikke formidles av megler. Nærmere info om budgiving finner du på egen side sammen med kjøpetilbud/budskjema.
Som budgiver hos Privatmegleren kan du kreve budjournal fremlagt så snart handel er gjennomført.
Innhold i budjournal er lovregulert, og innebærer at budgivere må akseptere at opplysninger om budet kan bli fremlagt for selger, kjøper og øvrige budgivere. Budgiver som ikke blir kjøper, kan kreve kopi av anonymisert budjournal.
Lov om hvitvasking
Megler er underlagt lov om hvitvasking som innebærer plikt til å melde ifra til Økokrim om mistenkelige transaksjoner
Meglers vederlag og utlegg
Meglers vederlag og utlegg betales av selgeren og utgjør: Provisjon 1% inkl. mva. av endelig kjøpesum. Tilrettelegging kr 19.900,-, Oppgjørsgebyr kr 9.900,- pr. enhet, Visninger 2.500,- pr. stk. I tillegg kommer tillegg/utlegg/markedsføring.
Dersom eiendommen ikke blir solgt skal selgere betale for alle overnevnte unntatt provisjon.
Nyttige lenker
Nærområdet

PrivatMegleren Dyve & Partnere
Annonseinformasjon
| FINN-kode | 374925180 |
|---|---|
| Sist endret | 07. feb. 2026 03:06 |
| Referanse | 159240488 |
Annonsene kan være mangelfulle i forhold til lovpålagt opplysningsplikt. Før bindende avtale inngås oppfordres interessenter til å innhente komplett informasjon fra meglerforetaket, selger eller utleier.





