Bildegalleri

Velkommen til Fjordgata 9 B snr. 1. Fasade renovert.
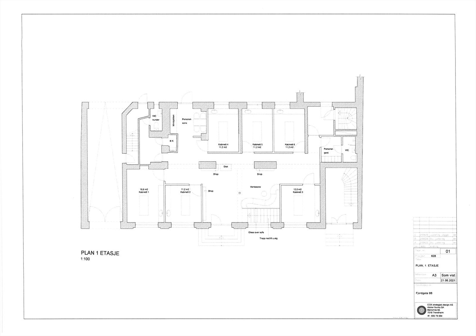
Delikate renoverte lokaler for helse/ velvære i 1. etasje og sokkel
Nøkkelinfo
- Bruttoareal
- 430 m²
- Etasje
- 1.
- Eieform
- Eier (Selveier)
- Areal
- 430 m²
- Byggeår
- 1839
- Tomteareal
- 413 m² (eiet)
Type lokale
Visning
Ta kontakt for å avtale visning.Kort om eiendommen
Delikate velværelokaler i 1. etasje og kjeller. Store vinduer på fasade mot Fjordgata i 1. etasje.
Ca. 260 kvm BTA delikate og nyrenoverte areal for helse og skjønnhetspleie i 1. etasje, renovert i 2023.
Ca. 170 kvm BTA velværeloklaer/ bad renovert i 2018 i kjeller.
Sentral beliggenhet i Midtbyen. Nært Solsiden med kjøpesenter og boliger.
Det er kort vei til alle kollektiver transportmidler; jernbane, buss, båt til Fosen og Møre og flybuss.
Beliggenhet
Midtbyen. Her er handel, hoteller, restauranter og parkering i umiddelbar nærhet. Det er kort vei til alle kollektiver transportmidler; jernbane, buss, båt til Fosen og møre og flybuss.
Adkomst
Kommer en E6 inn forbi Solsiden, tar en av til høyre etter Bakke bru og neste avkjøring inn til venstre. Eiendommen ligger på høyre hånd like etter krysset. Fra Prinsenkrysset kjører en ned prinsens gate helt ned til Olav Trygvassons gate og svinger til høyre. Første lyskryss til venstre forbi Ravnkloa og følger Fjordgata forbi Søndre gate Eiendommen ligger på venstre hånd
Innhold
Delikate velværelokaler i 1. etasje og kjeller.
Ca. 260 kvm BTA delikate og nyrenoverte areal for helse og skjønnhetspleie i 1. etasje, renovert i 2023. Ny ventilasjon i 1. etasje i 2019. Store vinduer på fasade mot Fjordgata i 1. etasje.
Ca. 170 kvm BTA velværeloklaer/ bad renovert i 2018 i kjeller. Ventilasjon driftes av leietaker på grunn av spesiell bruk.
Parkering
Det følger ingen parkeringsplasser med arealet. parkering mot vederlag i nærliggende gater.
Ansvarlig megler
Oddvar Rakstang
Regulering
Nyttige lenker
Nærområdet
Creto Næringsmegling AS
Annonseinformasjon
| FINN-kode | 374750718 |
|---|---|
| Sist endret | 10. okt. 2024 11:10 |
| Referanse | CN9.2458 |
Annonsene kan være mangelfulle i forhold til lovpålagt opplysningsplikt. Før bindende avtale inngås oppfordres interessenter til å innhente komplett informasjon fra meglerforetaket, selger eller utleier.

















