Bildegalleri

Velkommen til Kirkegata 58C - Presentert av EiendomsMegler1 ved Birgit Grandahl
Inaktiv
Sarpsborg sentrum
Flytt rett inn | Kulås Hage | 2-roms i 1.etg.|Uteplass mot hagen| Heis| Callinganlegg
Prisantydning3 390 000 kr
Nøkkelinfo
- Boligtype
- Leilighet
- Eieform
- Eier (Selveier)
- Soverom
- 1
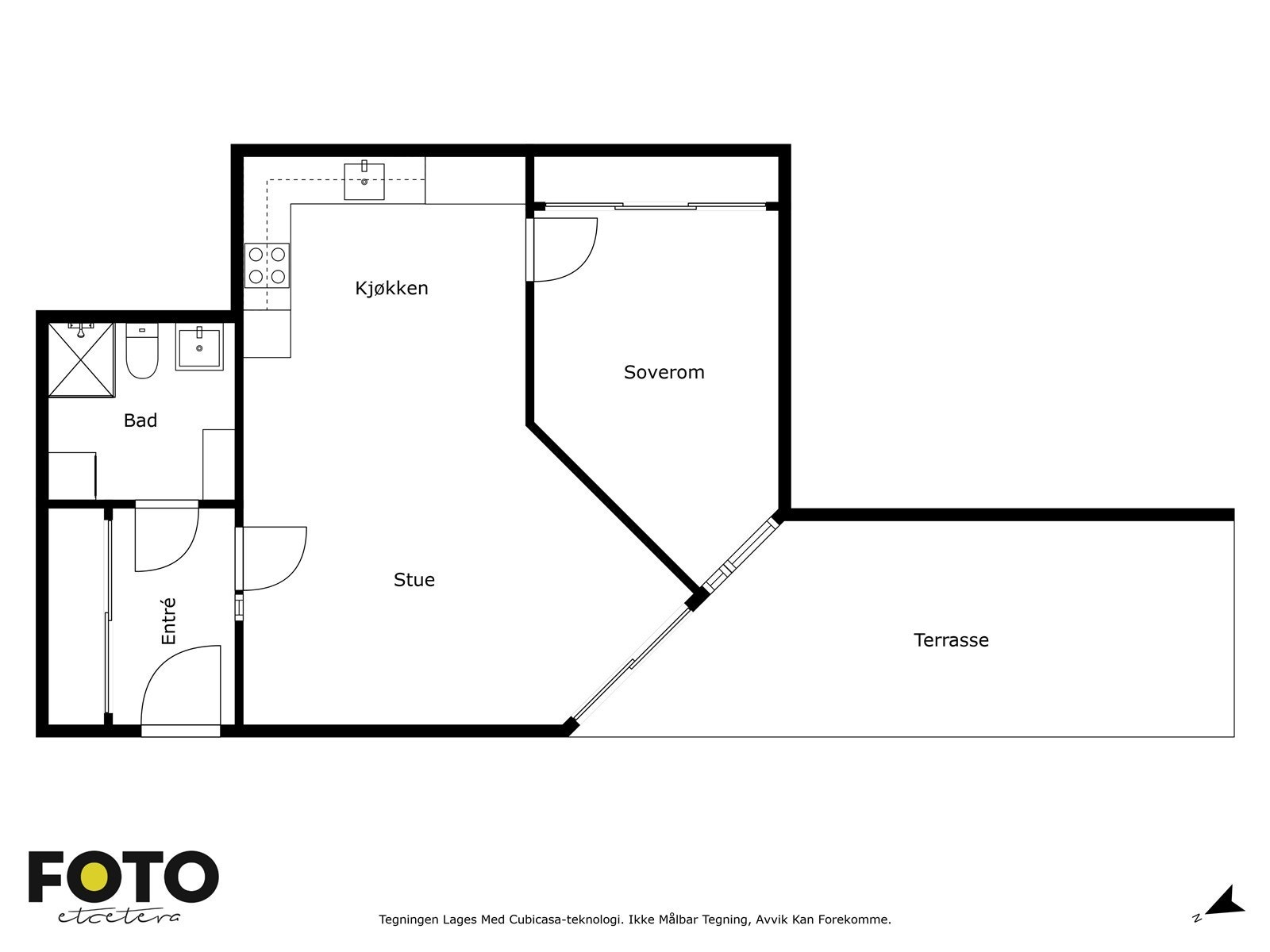
- Internt bruksareal
- 59 m² (BRA-i)
- Bruksareal
- 65 m²
- Eksternt bruksareal
- 6 m² (BRA-e)
- Balkong/Terrasse
- 20 m² (TBA)
- Etasje
- 1
- Byggeår
- 2021
- Energimerking
- B - Mørkegrønn
- Rom
- 2
- Tomteareal
- 4 252 m² (eiet)
Fasiliteter
Balkong/Terrasse
Barnevennlig
Bredbåndstilknytning
Heis
Kabel-TV
Offentlig vann/kloakk
Rolig
Sentralt
Vaktmester-/vektertjeneste
Turterreng
Balansert ventilasjon
Om boligen
Velkommen til denne delikate 2-roms leiligheten beliggende i Kulås Hage. Sameie har beliggenhet mellom Sarpsborg Kirke og Sarpsborg Rådhus, med Kulåsparken nærmest som egen hage. Kulås Hage har vektlagt å utforme atrium og beplante dette. Her finner du også et stilfullt orangerie som er et flottere drivhus og en samlingsplass for sameiets beboere. Leiligheten gir deg en unik beliggenhet, med Kulåsparken på den ene siden og byens sentrum på den andre siden.
- Nyere og sentrumsnær 2-roms
- Solrik uteplass
- Heis og callinganlegg
- Flott atrium
- Moderne og godt utstyrt kjøkken
- Bra med skapplass
- Bod i underetg.
- Nyere og sentrumsnær 2-roms
- Solrik uteplass
- Heis og callinganlegg
- Flott atrium
- Moderne og godt utstyrt kjøkken
- Bra med skapplass
- Bod i underetg.
NB: Knappen for å vise hele beskrivelsen har kun en visuell effekt.
NB: Knappen for å vise hele beskrivelsen har kun en visuell effekt.
Salgsoppgaven beskriver vesentlig og lovpålagt informasjon om eiendommen
Se komplett salgsoppgaveNyttige lenker
Nærområdet
EiendomsMegler 1 Sarpsborg
Annonseinformasjon
| FINN-kode | 374081325 |
|---|---|
| Sist endret | 29. apr. 2025 07:20 |
| Referanse | 5370240354 |
Annonsene kan være mangelfulle i forhold til lovpålagt opplysningsplikt. Før bindende avtale inngås oppfordres interessenter til å innhente komplett informasjon fra meglerforetaket, selger eller utleier.


































