Bildegalleri

Halset leiligheter - Trøbakken 31 a-f
RESERVERT 31 D
Prosjektets status
Planlegging
Sommer 2024
Salgsstart
Høst 2024
Byggestart
November 2024
Overtakelse
November/Desember 2025
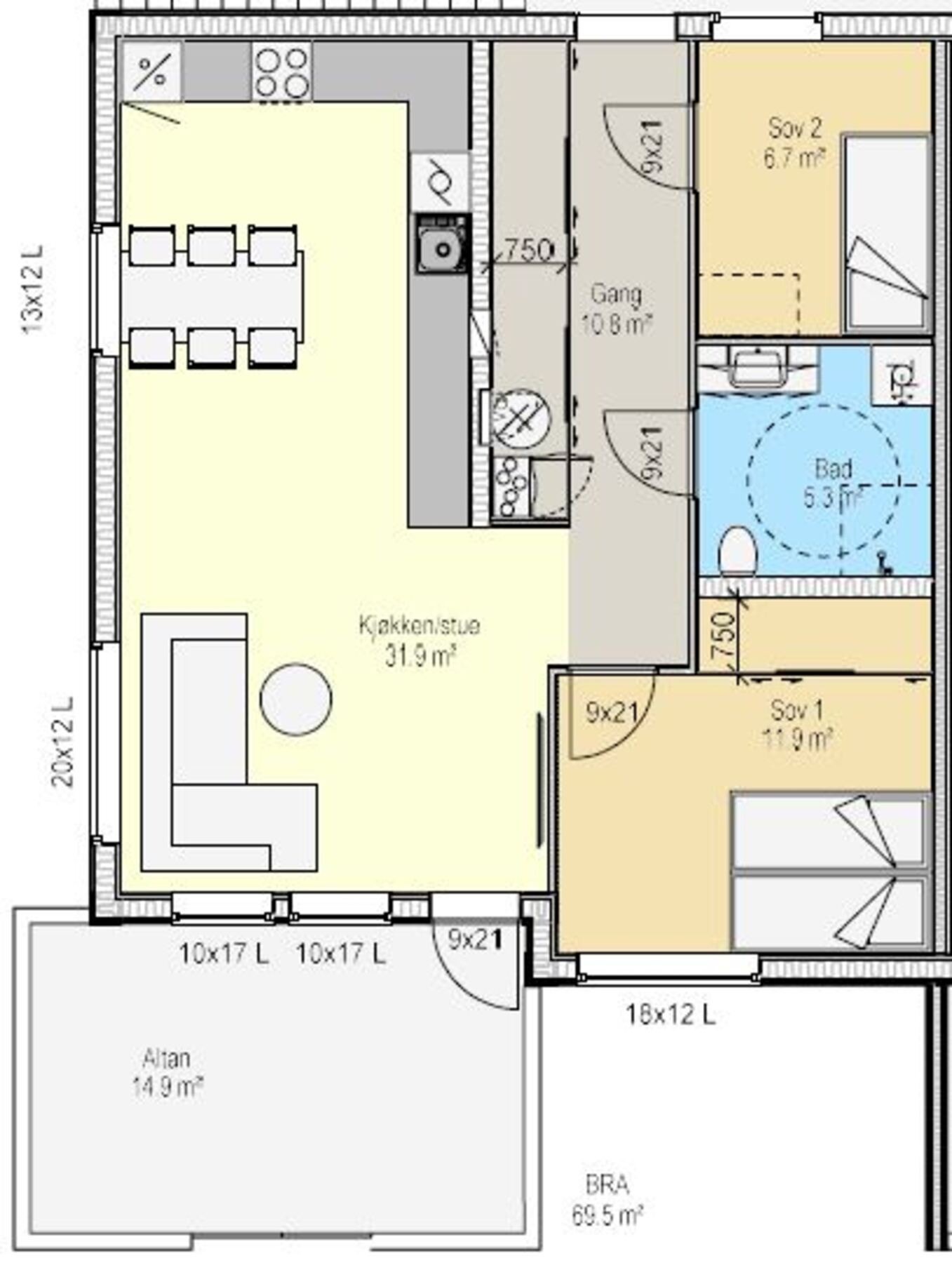
Nøkkelinfo
- Boligtype
- Leilighet
- Etasje
- 2
- Soverom
- 2
- Internt bruksareal
- 69 m² (BRA-i)
- Bruksareal
- 74 m²
- Eksternt bruksareal
- 5 m² (BRA-e)
- Balkong/Terrasse
- 14 m² (TBA)
Beskrivelse
Forbehold
Det tas forbehold om trykkfeil i salgsoppgaven.
Salgsoppgaven er ufullstendig uten alle vedlegg.
Betalingsbetingelser
Kjøpesum, omkostninger og evt. tilvalg skal være bekreftet innbetalt senest innen 2 virkedager før Overtakelsesdato. Det samme gjelder ved oversendelse av pantedokumenter for tinglysing. Kjøper er selv ansvarlig for at innbetalinger og korrekt utfylte pantedokumenter er megler i hende i rett tid.
Alle kontraktsinnbetalinger skal skje til meglerselskapet sin klientkonto. Det tas forbehold om eventuell endring av offentlige gebyrer og avgifter. Kjøper aksepterer at eventuelt økning i mva. og andre offentlige avgifter som måtte bli fastsatt etter inngåelse av denne kontrakt kan utlignes på kjøper med den forholdsmessige andel og kun for den del av leveransen som i slikt tilfelle får økte avgifter i henhold til entreprenørens oppstilling.
Overtakelse
FORHÅNDSBEFARING AV BOLIG
Kjøper vil bli innkalt til forhåndsbefaring av boligen før overtagelse.
Ved forhåndsbefaringen er målsettingen at boligen skal fremstå ferdig og uten synlige feil og mangler. Dersom det oppdages kontraktsmessige mangler, blir disse protokollført for utbedring før selve overtakelsen. På samme befaring vil man også avstemme at endrings- og tilleggsarbeider er i tråd med avtaler avtalt med entreprenørene.
Det skal føres protokoll som skal signeres av begge parter.
Fellesarealer/utomhusarealer: Overtakelse av felles- og utearealer skjer samtidig med at den enkelte leilighet overtas. Det vil gjennomføres en befaring av felles/utomhusarealer med styret for sameiet for å avdekke evt. feil og mangler samt manglende ferdigstillelse. Overtakelse av boligen med tilhørende andel fellesareal kan ikke nektes av kjøper selv om fellesareal/utomhusareal ikke er ferdigstilt. Såfremt deler av utvendige arbeider ikke er ferdigstilt ved overtakelse, skal manglende ferdigstilte arbeider anmerkes i overtakelsesprotokollen. Kjøper opplyses om muligheten til å tilbakeholde nødvendig beløp på meglers klientkonto som sikkerhet for manglene. Tilbakeholdt beløp må stå i samsvar med manglene. Alternativt kan selger stille garanti for ferdigstillelsen, med beløp utarbeidet av takstmann. Ovennevnte informasjon om tilbakeholdelse gjelder også for de forhold som gjenstår for å få ferdigattest.
Nyttige lenker
Nærområdet
Nylander & Partners AS
Annonseinformasjon
| FINN-kode | 373643780 |
|---|---|
| Sist endret | 17. okt. 2025 10:18 |
| Referanse | 32410295 |
Annonsene kan være mangelfulle i forhold til lovpålagt opplysningsplikt. Før bindende avtale inngås oppfordres interessenter til å innhente komplett informasjon fra meglerforetaket, selger eller utleier.
