Bildegalleri

EIE Lillestrøm v/ Madeleine Skjevik har gleden av å presentere Solberglia hytteområde 348!
Gjennomført hytte med god standard i attraktivt område | Fantastiske friluftsmuligheter | Flotte uteområder og anneks
- Omkostninger
- 133 350 kr
- Totalpris
- 4 623 350 kr
- Kommunale avg.
- 11 498 kr per år
Nøkkelinfo
- Beliggenhet
- Innlandet
- Boligtype
- Hytte
- Eieform
- Eier (Selveier)
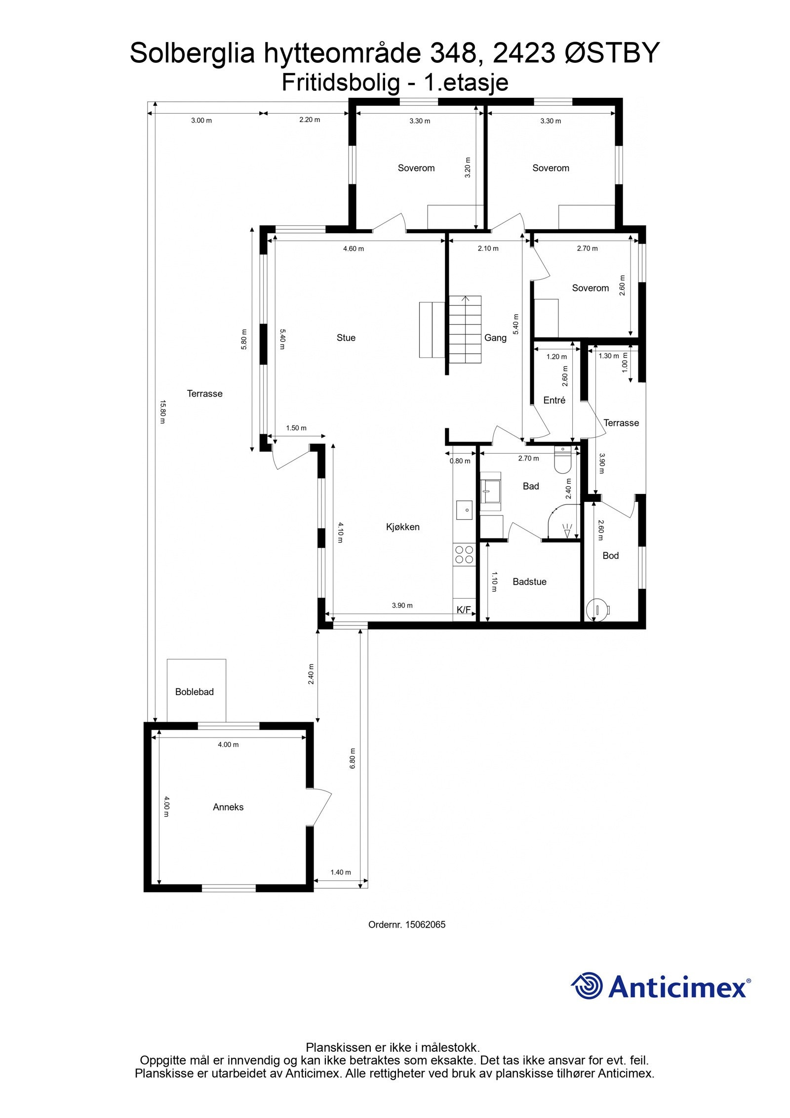
- Internt bruksareal
- 100 m² (BRA-i)
- Bruksareal
- 119 m²
- Eksternt bruksareal
- 19 m² (BRA-e)
- Balkong/Terrasse
- 80 m² (TBA)
- Tomteareal
- 1 670 m²
- Byggeår
- 2015
- Soverom
- 3
- Rom
- 4
- Energimerking
- D - Rød
Fasiliteter
Visning
Ta kontakt for å avtale visning.Husk å lese komplett salgsoppgave før visning. Bestill komplett, utskriftsvennlig salgsoppgave.
VisningspåmeldingOm boligen
EIE Lillestrøm har gleden av å presentere denne flotte hytta i Solberglia Hytteområde 348!
Ta kontakt for visning i høstferien! Hytta ligger idyllisk til i Trysil. Meget flott innholdsrik helårs- tømmerhytte med hems og anneks. Nydelig beliggenhet i naturskjønne Solberglia. Her har du kort vei til både alpinanleggene i Trysilfjellet og Sälen. Her har du mulighet til å sikre deg en vakker hytte i et ettertraktet område!
Kvaliteter verdt å merke seg:
- Lun og svært tiltalende hytte oppført i furutømmer.
- Gjennomgående god standard på materialvalg og utstyr.
- EL-lader
- Anneks
- Innredet hems
- Usjenert og god beliggenhet
- Kort avstand til skisenter
- Område med eksepsjonelle naturopplevelser
- Skiløyper rett utenfor døra
- Jacuzzi og badstu
- Stor tomt
- Lamper og tunge møbler medfølger.
- God planløsning
Velkommen til visning!
Salgsoppgaven beskriver vesentlig og lovpålagt informasjon om eiendommen
Se komplett salgsoppgaveNærområdet
ROMERIKSMEGLEREN AS
Annonseinformasjon
| FINN-kode | 373612377 |
|---|---|
| Sist endret | 30. des. 2025 14:27 |
| Referanse | 77240200 |
Annonsene kan være mangelfulle i forhold til lovpålagt opplysningsplikt. Før bindende avtale inngås oppfordres interessenter til å innhente komplett informasjon fra meglerforetaket, selger eller utleier.


































