Bildegalleri

Velkommen til Ulsetskogen 17, enebolig med hybel og garasje
Solgt
Enebolig med renoveringsbehov, beliggende i attraktivt område. Hybel i underetg. Garasje. Pen tomt
Prisantydning4 490 000 kr
Nøkkelinfo
- Boligtype
- Enebolig
- Eieform
- Eier (Selveier)
- Soverom
- 3
- Internt bruksareal
- 186 m² (BRA-i)
- Bruksareal
- 186 m²
- Etasje
- 1
- Byggeår
- 1972
- Energimerking
- E - Oransje
- Rom
- 4
- Tomteareal
- 1 084 m² (festet)
- Festeavgift
- 4 326 kr
Fasiliteter
Barnevennlig
Balkong/Terrasse
Garasje/P-plass
Peis/Ildsted
Utsikt
Sentralt
Om boligen
Eiendommen har en attraktiv beliggenhet med kort vei til Åsane Senter og Horisont. Barnehager og skole innen få minutters gange. Her bor man i et trygt og godt nabolag med alt hva en familie trenger innen gangavstand.
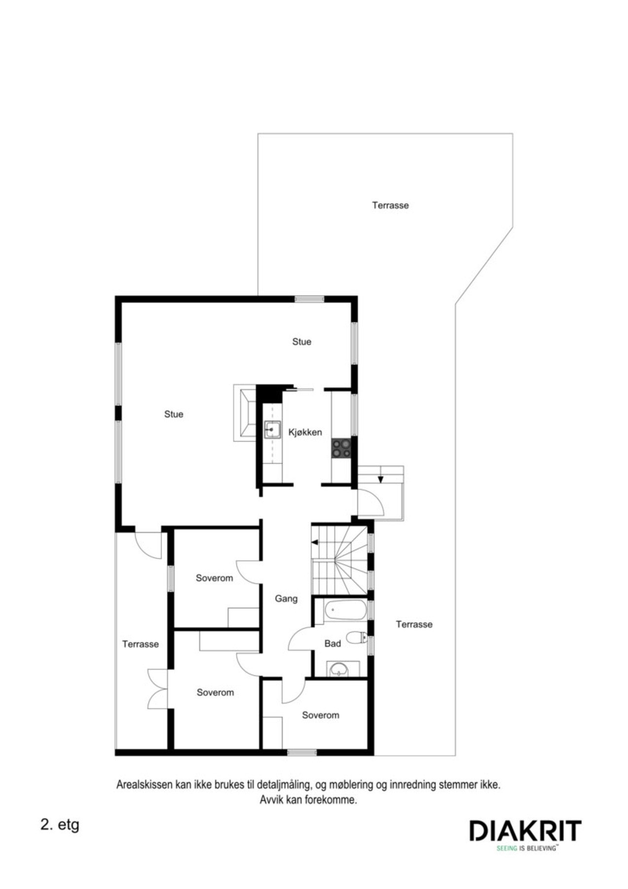
Boligen er innredet over to plan og har en godkjent hybel i underetg. Boligen må anses som et renoveringsobjekt, men med et godt potensial som en fremtidig, flott familiebolig.
Kort om eiendommen:
- Pen, stor tomt med hage både i front og bakkant av boligen. Stor, skiferbelagt terrasse og altan
- Garasje og biloppstillingsplass
- Bolig innredet over to plan
- Godkjent hybel in underetg.
- Romslig stue med store vindusflater og full takhøyde til møne
- 4 soverom (ett av dem ikke godkjent)
- 2 bad
- Vaskerom og WC-rom
- Mye lagringsplass i diverse boder
For spørsmål og visning, ta kontakt med eiendomsmegler Siv Bente H Besseberg/ASK Eiendomsmegling
Boligen er innredet over to plan og har en godkjent hybel i underetg. Boligen må anses som et renoveringsobjekt, men med et godt potensial som en fremtidig, flott familiebolig.
Kort om eiendommen:
- Pen, stor tomt med hage både i front og bakkant av boligen. Stor, skiferbelagt terrasse og altan
- Garasje og biloppstillingsplass
- Bolig innredet over to plan
- Godkjent hybel in underetg.
- Romslig stue med store vindusflater og full takhøyde til møne
- 4 soverom (ett av dem ikke godkjent)
- 2 bad
- Vaskerom og WC-rom
- Mye lagringsplass i diverse boder
For spørsmål og visning, ta kontakt med eiendomsmegler Siv Bente H Besseberg/ASK Eiendomsmegling
NB: Knappen for å vise hele beskrivelsen har kun en visuell effekt.
NB: Knappen for å vise hele beskrivelsen har kun en visuell effekt.
Salgsoppgaven beskriver vesentlig og lovpålagt informasjon om eiendommen
Se komplett salgsoppgaveNærområdet
ASK Eiendomsmegling Bergen
Velkommen hjem
Prisstatistikk
Ulsetskogen 17
17 236 klikk
på annonsen
24 139 kr
prisantydning per kvadratmeter
Prisfordeling
Pris per m² ligger 9 861 kr under snittet for eneboliger i Åsane.
Grafen viser antall eneboliger solgt i Åsane siste året fordelt på pris per m² - totalt 174 eneboliger
Antall boliger
Kvadratmeterpris tilsvarer prisantydning pluss fellesgjeld per kvadratmeter (p-rom eller BRA-i). Prisene i grafen er avrundet til nærmeste 1000 kr.
Annonseinformasjon
| FINN-kode | 373589521 |
|---|---|
| Sist endret | 24. feb. 2025 11:33 |
| Referanse | 8-24-00179 |
Annonsene kan være mangelfulle i forhold til lovpålagt opplysningsplikt. Før bindende avtale inngås oppfordres interessenter til å innhente komplett informasjon fra meglerforetaket, selger eller utleier.


































