Bildegalleri

Eiendommen sett fra sørvest - Trondheimsveien (Rv4) med ÅDT på ca. 25 000 kjøretøy strekker seg forbi eiendommen og videre nordover i Groruddalen
Inaktiv
Kalbakkveien 4 - Ledige lokaler sentralt på Kalbakken
Nøkkelinfo
- Areal
- 386 m²
- Etasje
- 2.
- Byggeår
- 1964
Type lokale
Kontor
Butikk/Handel
Kombinasjonslokaler
Kjøpesenter
Serveringslokale/Kantine
Undervisning/Arrangement
Fasiliteter
Garasje/P-plass
Om eiendommen
Kalbakken Shopping er et historisk bygg som har vært med på å gi identitet til Kalbakken og området rundt. Sammen med Grorudhuset og Kalbakken Kjøpesenter, utgjør eiendommen sentrum for Kalbakken og Nordtvedtområdet. Bygget ble oppført i 1964 og var opprinnelig et lokalt hus for Høyre i Groruddalen. I dag har eiendommen et bredt utvalgt av servering, handel- og tjenestetilbud. På eiendommen og i umiddelbar nærhet finner en ulike treningssentre, apotek og legevakt, dagligvareforretninger, bensinstasjon mm. Bygget er godt eksponert mot Rv4 som har en årsdøgntrafikk (ÅDT) på rundt 25 000 kjøretøy.
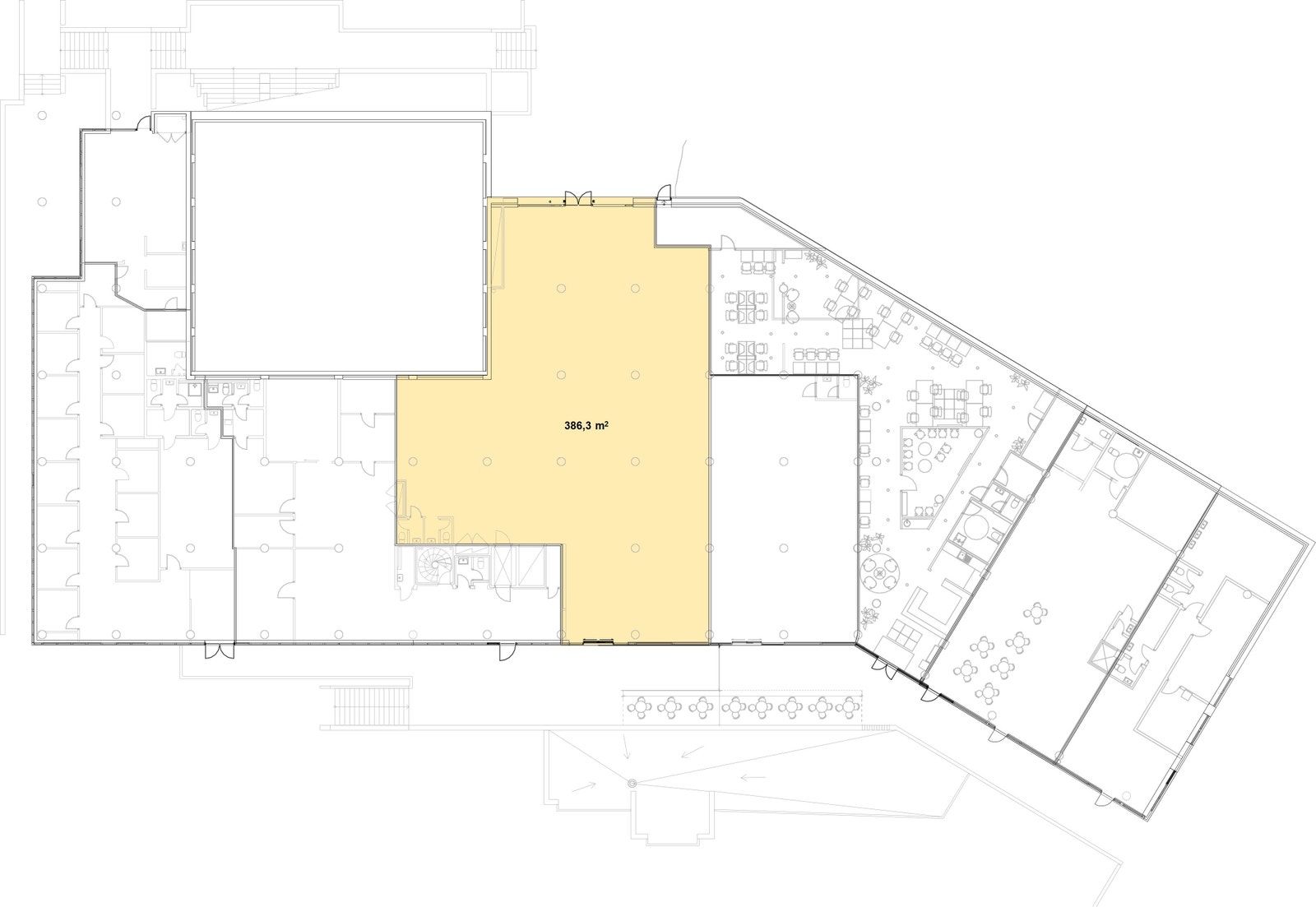
Lokalet som nå leies ut ligger i byggets 2. etasje og er på ca. 386 kvadratmeter eks. fellesareal. Lokalet er godt synlig og lett tilgjengelig fra gateplan. I en lang periode har lokalet vært leid ut til en av Norges ledende apotekkjeder, men passer godt for også andre forretnings- og kontorvirksomheter.
Eiendommen har god parkeringsdekning.
Lokalet som nå leies ut ligger i byggets 2. etasje og er på ca. 386 kvadratmeter eks. fellesareal. Lokalet er godt synlig og lett tilgjengelig fra gateplan. I en lang periode har lokalet vært leid ut til en av Norges ledende apotekkjeder, men passer godt for også andre forretnings- og kontorvirksomheter.
Eiendommen har god parkeringsdekning.
Beliggenhet
Kalbakkveien 4 ligger sentral til i bydel Grorud, nordøst i Oslo. Eiendommen har direkte tilknytning til Rv 4 og kort avstand til både Østre Aker vei og E6. Eiendommen har også god tilgjengelighet til offentlig kommunikasjon. I kort gangavstand fra eiendommen finner en Kalbakken T-banestasjon og flere bussholdeplasser, blant annet for buss 25, 31, 33 og 68. Rundt eiendommen finner en for øvrig store boligområder, og eiendommen har gangavstand til Nordtvedt Skole og flere barnehager, Kalbakkenfeltet fotballanlegg Nordtvedt bad og Grorud samfunnshus hvor det blant annet er bibliotek og fritidsklubb.
Matrikkelinformasjon
Kommunenr: 301
Gårdsnr: 90
Bruksnr: 3
NB: Knappen for å vise hele beskrivelsen har kun en visuell effekt.
NB: Knappen for å vise hele beskrivelsen har kun en visuell effekt.
Visning
Ta kontakt for å avtale visning.FAGERSTAD UTVIKLING AS
Nærområdet
Annonsene kan være mangelfulle i forhold til lovpålagt opplysningsplikt. Før bindende avtale inngås oppfordres interessenter til å innhente komplett informasjon fra meglerforetaket, selger eller utleier.





