Bildegalleri

Lysverket Moss
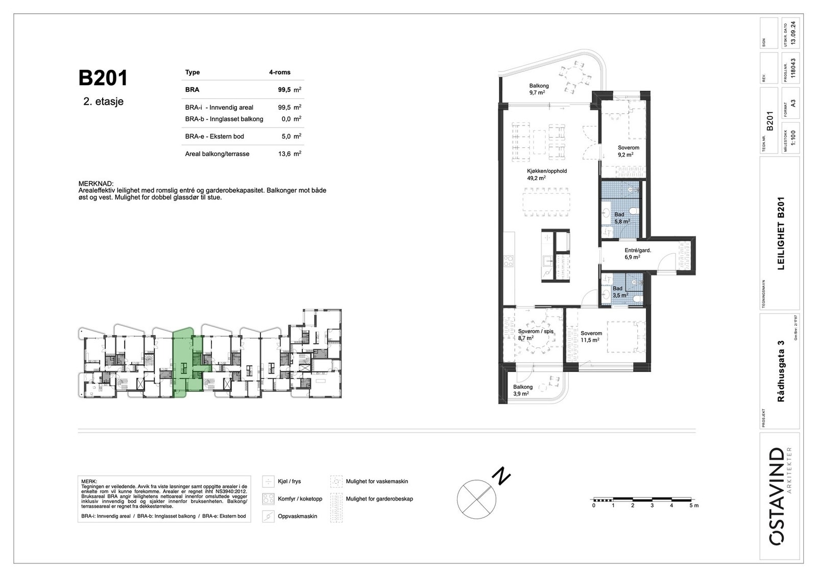
B201
Prosjektets status
Planlegging
Høsten 2024
Salgsstart
Salgsstart 10/10
Byggestart
4. kvartal 2025
Overtakelse
Første halvår 2027
Nøkkelinfo
- Boligtype
- Leilighet
- Etasje
- 2
- Soverom
- 3
- Internt bruksareal
- 99 m² (BRA-i)
- Bruksareal
- 99 m²
- Eksternt bruksareal
- 5 m² (BRA-e)
- Balkong/Terrasse
- 13 m² (TBA)
Fasiliteter
Beskrivelse
Oppvarming
Leilighetene vil få vannbåren varme i stue, bad, gang og kjøkken. Soverom vil få panelovner.
Beliggenhet
Rådhusgata 3 er perfekt plassert i Moss sentrum, med alt man trenger i umiddelbar nærhet. Snakk om å bo sentralt!
Kaffen kan du ta på flere av sentrums caféer og det samme med lunsjen. Ønsker du å kose deg litt ekstra er det diverse restauranter og utesteder å finne i kort gåavstand, alt etter smak og prisklasse. Kino, treningssenter og bibliotek ligger i nærheten, det samme med alt av klesbutikker og andre sentrumsfasiliteter.
Med barn eller barnebarn ligger det både skøytebane og lekeplass i kort avstand rett ved og er du glad i kunst og kultur har Moss kulturhus et bredt tilbud av konserter, foredrag og underholdning.
For deg som pendler, eller liker å ta turen både sørover og nordover, er det greit å vite at det kun er få minutter til fots til både togstasjon, busstasjon og ferjeforbindelsen Moss-Horten.
Kombinasjonen av sentral beliggenhet og god standard gjør leiligheten perfekt for flere av livets faser - unge som eldre.
Velkommen til Rådhusgata 3!
Parkeringsforhold
Kan kjøpe 1stk parkering kr. 400.000,*
Sentrale lover
Det opplyses om at ingen kan eie mer enn to boligseksjoner i sameiet, jfr. Lov om eierseksjoner §23
Nærområdet
ASK Meglergaarden
Annonseinformasjon
| FINN-kode | 373055983 |
|---|---|
| Sist endret | 03. nov. 2025 12:03 |
| Referanse | 3-24-10220 |
Annonsene kan være mangelfulle i forhold til lovpålagt opplysningsplikt. Før bindende avtale inngås oppfordres interessenter til å innhente komplett informasjon fra meglerforetaket, selger eller utleier.

