Bildegalleri

Høyenhallveien 98 presenteres av Ansh Chattree v/Privatmegleren. Velkommen til visning!
INNBYDENDE, FAMILIEVENNLIG REKKEHUS | SOLRIKE UTEPLASSER | HAGE | GARASJEPLASS M/LADER | BARNEVENNLIG | SJELDEN MULIGHET
Nøkkelinfo
- Boligtype
- Rekkehus
- Eieform
- Eier (Selveier)
- Soverom
- 3
- Internt bruksareal
- 127 m² (BRA-i)
- Bruksareal
- 133 m²
- Eksternt bruksareal
- 6 m² (BRA-e)
- Balkong/Terrasse
- 21 m² (TBA)
- Byggeår
- 1988
- Energimerking
- D - Oransje
- Tomteareal
- 204 m² (eiet)
- Boligselgerforsikring
- Ja
Fasiliteter
Om boligen
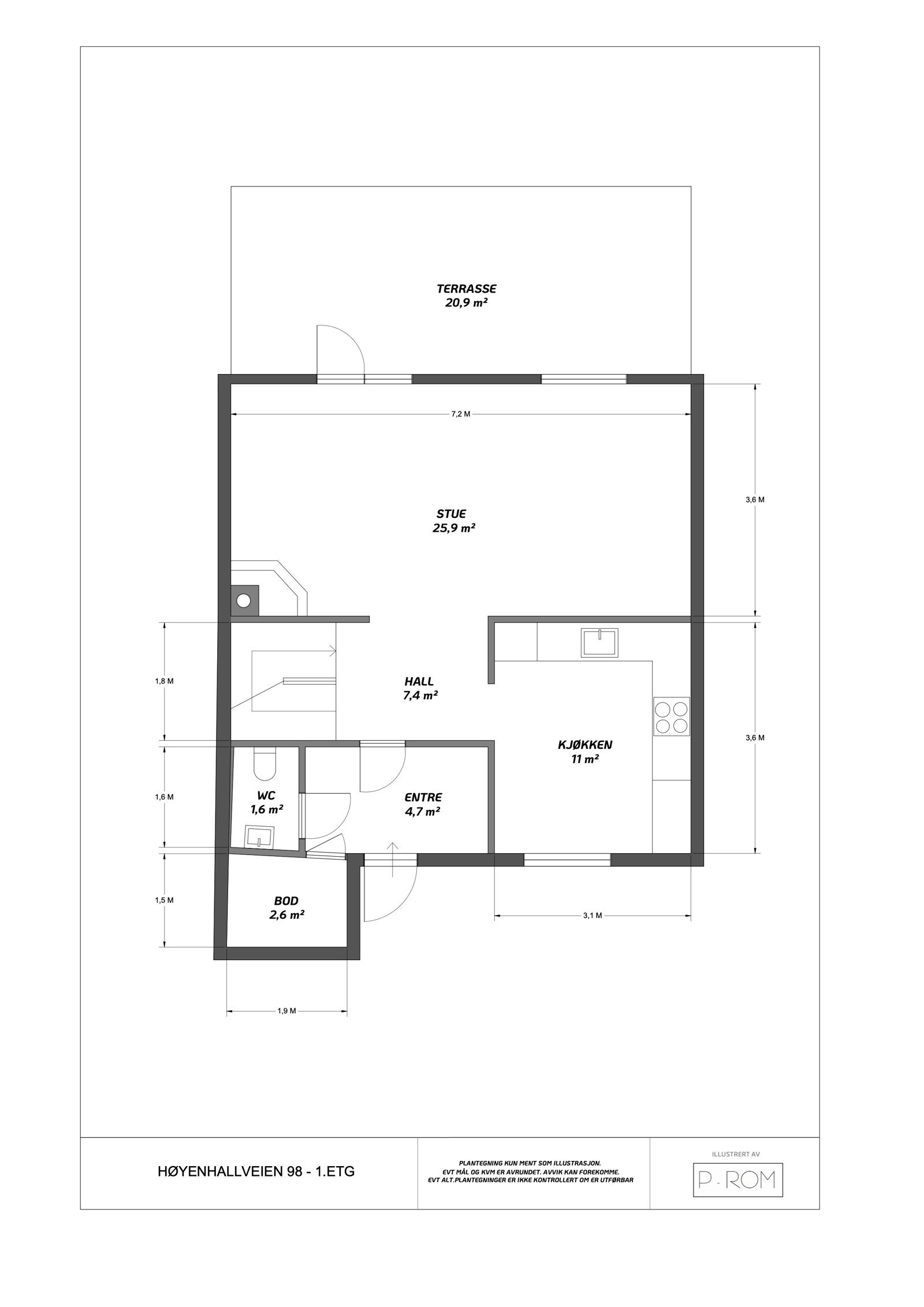
Høyenhallveien 98 er presentert av Ansh Chattree v/PrivatMegleren. I særdeles barnevennlige, idylliske og etterspurte omgivelser på Høyenhall ligger det nå et velholdt og innholdsrikt rekkehus og venter på nye eiere. Her bor man i nærhet til skole, idrettsanlegg, lekeplasser og barnehager, og det er kort vei til populære turområder. Eiendommen kan videre skilte med en koselig hage, en solrik terrasse og en lun velkomstterrasse, og bilen parkeres på egen plass med lader i felles garasjeanlegg.
- Familievennlig rekkehus over 3 plan
- Hyggelig og skjermet nabolag
- En sjelden mulighet på Høyenhall!
- Entre med gulvvarme og garderobe
- Innbydende stue med ildsted
- Moderne og velutstyrt kjøkken
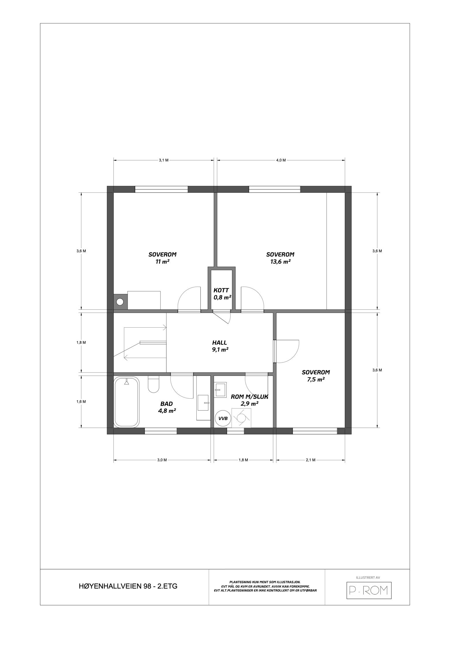
- Lys og koselig loftstue
- Bad/wc, vaskerom og wc-rom
- 3 gode soverom, 2 med garderobe
Salgsoppgaven beskriver vesentlig og lovpålagt informasjon om eiendommen
Se komplett salgsoppgaveNyttige lenker
Nærområdet
PrivatMegleren Grünerløkka
Annonseinformasjon
| FINN-kode | 372922550 |
|---|---|
| Sist endret | 11. okt. 2024 11:09 |
| Referanse | 302240267 |
Annonsene kan være mangelfulle i forhold til lovpålagt opplysningsplikt. Før bindende avtale inngås oppfordres interessenter til å innhente komplett informasjon fra meglerforetaket, selger eller utleier.


























































