Bildegalleri

Bilden er tatt før leiligeheten ble ferdig. Moderne kjøkken med hvitevarer
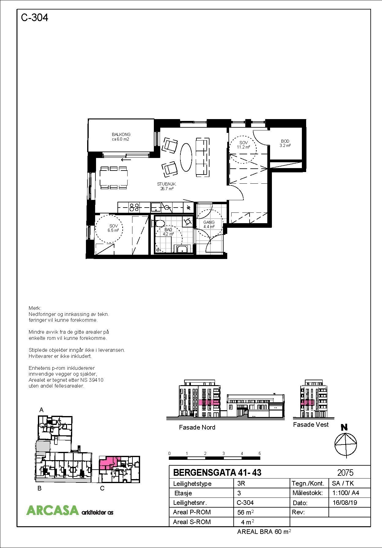
Bjølsen - 3-roms med balkong mot stille bakgård. Internett inkludert.
- Månedsleie
- 22 500 kr
- Depositum
- 67 500 kr
Nøkkelinfo
- Primærrom
- 56 m²
- Boligtype
- Leilighet
- Soverom
- 2
- Etasje
- 4.
- Leieperiode
- 01.11.2024 - 31.10.2027
Fasiliteter
Beskrivelse
Beliggenhet
Bjølsen er en nydelig bydel med barer, kafeer og spisesteder. Hvis du går til Nydalen eller Sagene så finner du mange kjente restauranter, shoppingsenter, spesialbutikker og bakerier.
På Bjølsen får du dessuten en egen Rema i Bygården/kvartalet.
Ellers er strøket fullt av små hyggelige butikker, her mangler verken bakeri eller apotek.
Bussene i Bergensgata, nr 54 til Tjuvholmen eller 37 til Helsfyrog bruker ikke mer enn et kvarter til sentrum.
Rike turmuligheter
Bjølsen har grøntområder kun noen få minutters gange fra boligen. Voldsløkka, Bjølsenparken, Myraløkka og parkene på Akerselvas vestbredd utgjør et nært sammenhengende grønt belte rundt boligen. Det er kun 5 minutter gange til Akerselva, her er det kjempefine tur og løp muligheter langs vannet. Du kan gå turen langs elva ned til sentrum gjennom Grünerløkka.
Entrè
Entré med god plass til å henge fra seg ytterklær og sko.
Stue / Kjøkken
Romslig med store vinduer som slipper inn mye naturlig dagslys. Stuen har utgang til romslig balkong. Det følger med hvitevarer.
Soverom 1
Romslig soverom.
Soverom 2
Soverom med bod / walk-in-closet.
Bad
Moderne fliselagt bad med dusj og opplegg for vaskemaskin.
Balkongen og soverom ligger inn mot stille og fredelig bakgård.
Fjernvarme og varmtvann fakturers på A-konto hver måned. Det siste året så har A-konto kostet ca. 1000kr i måneden.
RIKTIG ADRESSE ER MOLDEGATA 6, Men siden kvartalet er så nytt så er det ikke lagt inn i finn.no database.
Enklere Utleie AS
Nærområdet
Annonsene kan være mangelfulle i forhold til lovpålagt opplysningsplikt. Før bindende avtale inngås oppfordres interessenter til å innhente komplett informasjon fra meglerforetaket, selger eller utleier.






