Bildegalleri

Velkommen til Gneisveien 14! -Presenteres av Elisiff Wennersgaard v/Krogsveen Nesodden
Solgt
Fagerstrand
Lekker, oppgradert enebolig beliggende sentralt på Fagerstrand i et barnevennlig område -Solrik, pen opparbeidet eiendom
Prisantydning5 500 000 kr
Nøkkelinfo
- Boligtype
- Enebolig
- Eieform
- Eier (Selveier)
- Soverom
- 3
- Internt bruksareal
- 134 m² (BRA-i)
- Bruksareal
- 160 m²
- Eksternt bruksareal
- 26 m² (BRA-e)
- Balkong/Terrasse
- 25 m² (TBA)
- Byggeår
- 1985
- Energimerking
- F - Oransje
- Tomteareal
- 429 m² (eiet)
Fasiliteter
Balkong/Terrasse
Barnevennlig
Bredbåndstilknytning
Garasje/P-plass
Hage
Kjæledyr tillatt
Kabel-TV
Offentlig vann/kloakk
Parkett
Peis/Ildsted
Rolig
Sentralt
Utsikt
Bademulighet
Turterreng
Lademulighet
Om boligen
Velkommen til Gneisveien 14!
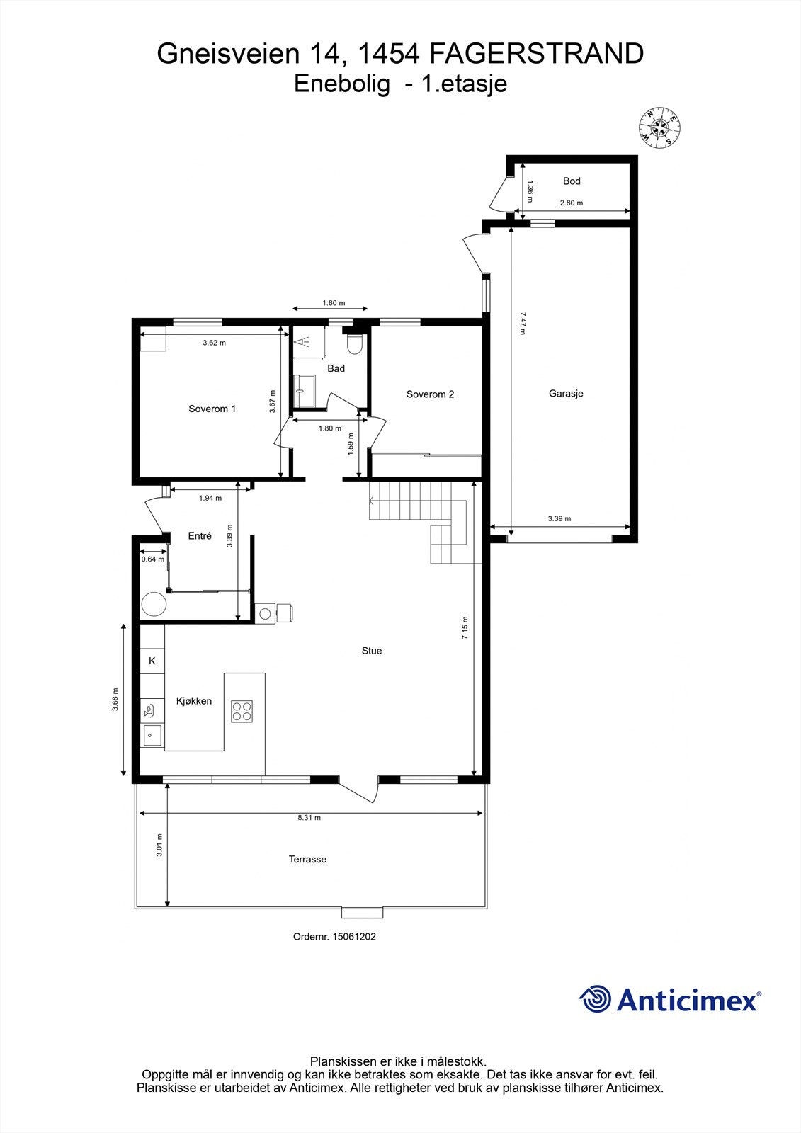
En flott oppgradert enebolig over to plan beliggende svært sentralt på Fagerstrand. Eneboligen går over to plan og består av en åpen stue- og kjøkkenløsning, loftstue, entré, to bad, og tre soverom. Boligen holder en gjennomgående god standard, og har moderne farge- og materialvalg. Eiendommen har en flott hage som gir god boltreplass for hele familien samt en stor, solrik syd-vestvendt terrasse.
Nøkkelord:
- Romslig og moderne kjøkken fra 2018/2019
- To romslige stuer
- 2 gode soverom i 1.etg og 1i 2.etg
- Gode solforhold
- Innholdsrik planløsning
- Pent opparbeidet eiendom med stor plen
- Barnevennlig og attraktivt boligområde
- Garasje med el-billader
- Nærhet til skoler, barnehager, offentlig kommunikasjon og servicetilbud
Velkommen til visning!
En flott oppgradert enebolig over to plan beliggende svært sentralt på Fagerstrand. Eneboligen går over to plan og består av en åpen stue- og kjøkkenløsning, loftstue, entré, to bad, og tre soverom. Boligen holder en gjennomgående god standard, og har moderne farge- og materialvalg. Eiendommen har en flott hage som gir god boltreplass for hele familien samt en stor, solrik syd-vestvendt terrasse.
Nøkkelord:
- Romslig og moderne kjøkken fra 2018/2019
- To romslige stuer
- 2 gode soverom i 1.etg og 1i 2.etg
- Gode solforhold
- Innholdsrik planløsning
- Pent opparbeidet eiendom med stor plen
- Barnevennlig og attraktivt boligområde
- Garasje med el-billader
- Nærhet til skoler, barnehager, offentlig kommunikasjon og servicetilbud
Velkommen til visning!
NB: Knappen for å vise hele beskrivelsen har kun en visuell effekt.
NB: Knappen for å vise hele beskrivelsen har kun en visuell effekt.
Salgsoppgaven beskriver vesentlig og lovpålagt informasjon om eiendommen
Se komplett salgsoppgaveNyttige lenker
Nærområdet
Krogsveen Nesodden
Verdien av en god megler.
Annonseinformasjon
| FINN-kode | 372562277 |
|---|---|
| Sist endret | 11. des. 2025 11:09 |
| Referanse | KR51.2459 |
Annonsene kan være mangelfulle i forhold til lovpålagt opplysningsplikt. Før bindende avtale inngås oppfordres interessenter til å innhente komplett informasjon fra meglerforetaket, selger eller utleier.





























