Bildegalleri

Kortreist hyttelykke kun 90 min fra Oslo | Planlagt nøkkelferdig hytte | 4 soverom |
- Omkostninger
- 32 500 kr
- Totalpris
- 4 972 500 kr
Nøkkelinfo
- Beliggenhet
- På fjellet
- Boligtype
- Hytte
- Eieform
- Eier (Selveier)
- Internt bruksareal
- 96 m² (BRA-i)
- Bruksareal
- 96 m²
- Balkong/Terrasse
- 4 m² (TBA)
- Tomt
- Eiet
- Soverom
- 4
- Rom
- 5
Fasiliteter
Visning
Ta kontakt for å avtale visning.Om eiendommen
Beliggenhet
Turufjell er som skapt for det moderne hytteliv; sydvestvendt og naturlige terrasser i landskapet. Dette gir deg sol hele dagen, fantastisk utsikt med lang horisont fra nær alle hyttetomtene. Som hytteinnbygger i Flå får du tilgang til Hallingdal, et av de mest allsidige og spennende dalførene i Norge.
Adkomst/Tomteforhold
Fra Oslo: Ta av på E16 mot Bergen. Ta deretter av mot RV 7 i Hønefoss, i retning Bergen. I Flå tar du andre avkjørsel i rundkjøring og følg skilting Turufjell. Følg deretter grusveien helt frem til hyttefeltet.
Generelt
Turufjell bygges ut fortløpende bygge trinn 1 er
i gang. Første trinn av alpinbakken er bygget ut. Hyttene er tilknyttet Turufujell sitt vann og
avløp. Alle tomtene legges inn med fiber.
Feltet ligger sørvestvendt med gode solforhold
fra morgen til kveld. Turufjell AS har eget drift
selskap, Turufjell drift AS, de står for brøyting, ved og vaktmester tjenester. Summen av alt er at du kan få en lettvint hyttehverdag.
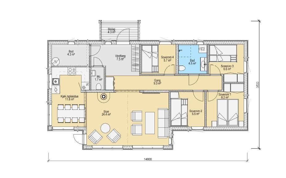
Rondane 100 er en modell med fire romslige soverom. Disse ligger i en egen del av hytta og tett knyttet mot badet. Hytta har et romslig bad og egen WC. I tillegg en innvendig bod med varmtvannsbereder og med plass til bl.a. vaskemaskin. Her får du en stue/kjøkken løsning der kjøkkenet er litt skjermet fra stua og med egen spiseplass.
Leveransebeskrivelse
Generell utførelse
• Stående låvepanel mix bredder (ubehandlet), 20 cm isolasjon i yttervegg.
• Valdres takshingel
• Takstige og snøfangere der det er krav.
• Vinduer iht. tegning. 2-lag energiglass, standard farge hvit inne/ute hvit NC SS 0502Y. Vinduer med gjennomgående sprosser.
• Takrenner i sort stål.
• Tinde ytterdør m/vindu, malt hvit.
• Eventuell sportsbod / utebod har Tinde boddør u/vindu, malt hvit.
• Terrasse leveres der det er vist på tegninger uten rekkverk.
• Isolasjon 25 cm i tak, 20 cm yttervegg og 10 cm i innervegger.
• Flytende gulv med 13 mm eikeparkett 3-stavs, type Kährs.
• Innvendige furupanel fra Moelven: 13 mm Sprekkpanel på vegger og himling, ubehandlet.
• Glatt standard listverk, ubehandlet.
• Furu 3-speils innerdører, ubehandlet.
• For hytter som leveres med hems/ loft er det inkludert trapp i ubehandlet utførelse.
• For hytter med badstue leveres benk i gran ubehandlet.
• Kjøkken fra Aubo Kjøkken av typen Unik NCS S 3502-Y, med laminat benkeplate og Slimline kjøkkenventilator (hvitevarer følger ikke med).
Rørlegger/innvendig sanitær
Rørleggerarbeid med utstyr iht. standard rørleggeroppsett. I utstyrsoversikt kan nevnes:
• Bunnledninger (rør som ligger i betongplate innenfor ringmur fram til toalett, sluker osv.).
• Rette slagdører i dusjnisje evnt. Dusjnisjedør (iht. tegning) med dusjgarnityr.
• Vegghengt toalett med innebygd sisterne.
• Unidrainsluk på bad.
• Baderomsinnredning m/skuffer, porselensvask og speil.
• Innredning med vask og speilskap leveres det det er separat WC rom.
• Varmtvannsbereder 200 liter.
• 1-greps blandebatterier på kjøkken, bad og evnt. andre våtrom.
• Opplegg for tilkobling av kjøkkenbenk m/ 1-greps benkebatteri med høy tut, samt opplegg for tilkobling av oppvaskmaskin.
• Lekkasjesikring/vannstoppeventil.
Murer, Flis, pipe og ildsted
• Peisovn fra Nordpeis med sideglass og med glassplate på gulv montert på sort stålpipe.
• Flislagt gulv i vindfang med 30x60cm flis.
• Flislagt gulv på bad med 30 x 60 fliser. Ved eget WC-rom og badstue leveres det også 30x60 cm flis.
• Flislagte vegger på bad med 30x60 cm flis.
• Har hytta eget vaskerom, innvendig bod eller sportsbod leveres det med 30x30 cm flis.
Elektroinstallasjoner og utstyr
Elektrikerarbeid med utstyr iht. standard elektrikeroppsett. I utstyrsoversikt kan nevnes:
• Inntaksskap og kabel mellom inntak og sikringsskap.
• Sikringsskap m/overbelastningsvern, jordfeilautomater og overspenningsvern.
• EL-punkter (iht. NEK 400).
• Varmekabler med termostat og føler i vindfang og våtrom.
• Strømforsyning til seriekoblet røkvarslere m/backup batteri.
• Astrour-styrte utelamper.
• Downlights leveres i vindfang og bad. Om hytta har WC og gang i tillegg leveres det også downlights her.
• Taklamper leveres i soverom. For de hyttene som har vaskerom og bod, leveres det taklamper her.
• Panelovner, stikkontakter, komfyrvakt og badstuovn leveres i tråd med tegning.
Prisen i prospektet er basert på tomteverdi kr 1 260 000,– og grunnarbeid på kr 580 000,–.
Det tas forbehold om endelig godkjenning fra kommunen.
Prisene er beregnet med sist kjente indeks fra SSB, og vil bli justert til enhver tids gjeldende indeks.
For pris, diverse avgifter og kostnader - se https://www.tindehytter.no/hyttefelt/sprenasen-turufjell
Salgsoppgaven beskriver vesentlig og lovpålagt informasjon om eiendommen
Se komplett salgsoppgaveNærområdet
Tindehytter AS
Annonsene kan være mangelfulle i forhold til lovpålagt opplysningsplikt. Før bindende avtale inngås oppfordres interessenter til å innhente komplett informasjon fra meglerforetaket, selger eller utleier.



























