Bildegalleri

EM1 v/Frank Robert Bae har gleden av å presentere en pen og gjennomført selveierleilighet beliggende i 5. etasje i et svært sentralt og attraktivt boområde. Virtuell møblering av bildet.
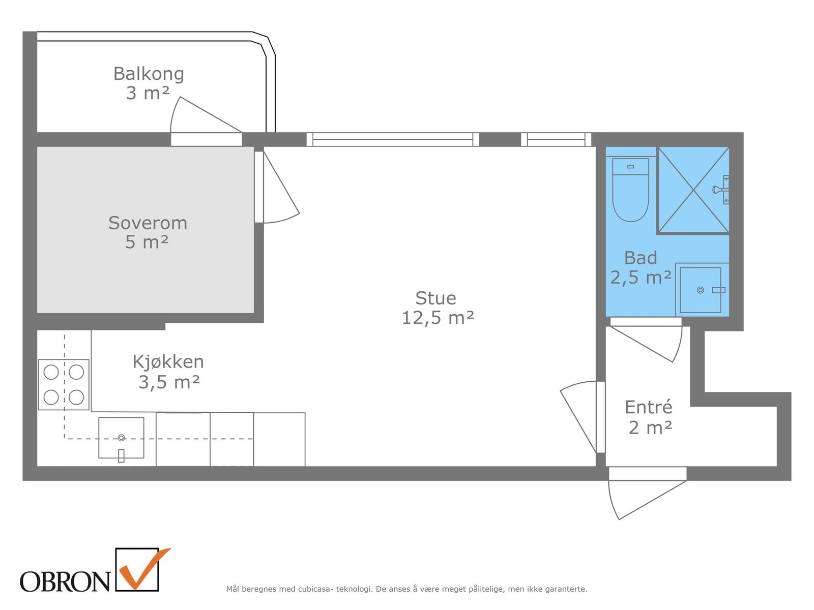
Urban og oppusset 2-roms leilighet i 5. etasje - Vestvendt balkong m/glimrende solforhold - Kort vei til studiesteder!
Nøkkelinfo
- Boligtype
- Leilighet
- Eieform
- Eier (Selveier)
- Soverom
- 1
- Internt bruksareal
- 27 m² (BRA-i)
- Bruksareal
- 31 m²
- Balkong/Terrasse
- 3 m² (TBA)
- Etasje
- 5
- Byggeår
- 1939
- Energimerking
- E - Rød
- Rom
- 2
- Tomteareal
- 1 277 m² (eiet)
Fasiliteter
Om boligen
Leiligheten har en effektiv planløsning som, kombinert med store vindusflater, bidrar til en god romfølelse og en lett atmosfære. Leiligheten har fra 2013 og i årene etter blitt vesentlig oppgradert, og holder som følge av dette en gjennomgående pen standard. Prikken over i'en må være leilighetens vestvendte veranda, hvor man kan nyte solen fra ca. kl. 14:00 til solnedgang.
Kvaliteter verdt å trekke frem;
- Rørfornying i hele bygget, ferdigstilt i 2019
- Malt overflater i boligen i 2023
- Det ble lagt nytt parkettgulv i leiligheten i 2016
- Nytt elektrisk anlegg (EL/kabling/stikk osv.) i leiligheten i 2013. Automatsikringer i sikringsskap
- Flott kjøkken fra Trønderkjøkken (2013)
- Flislagt bad fra 2013 med varmekabler i gulv
- Felles vaskerom i 1. etg med opplegg for privat vaskemaskin/tørketrommel
- Bod i kjeller
Vel møtt!
Salgsoppgaven beskriver vesentlig og lovpålagt informasjon om eiendommen
Se komplett salgsoppgaveNyttige lenker
Nærområdet
EiendomsMegler 1 Grilstadporten
Prisstatistikk
Udbyes gate 5 B
på annonsen
prisantydning per kvadratmeter
Prisfordeling
Pris per m² ligger 28 316 kr over snittet for leiligheter i Trondheim Sentrum.
Grafen viser antall leiligheter solgt i Trondheim Sentrum siste året fordelt på pris per m² - totalt 854 leiligheter
Antall boliger
Kvadratmeterpris tilsvarer prisantydning pluss fellesgjeld per kvadratmeter (p-rom eller BRA-i). Prisene i grafen er avrundet til nærmeste 1000 kr.
Annonseinformasjon
| FINN-kode | 372358925 |
|---|---|
| Sist endret | 19. jan. 2025 09:08 |
| Referanse | 33240265 |
Annonsene kan være mangelfulle i forhold til lovpålagt opplysningsplikt. Før bindende avtale inngås oppfordres interessenter til å innhente komplett informasjon fra meglerforetaket, selger eller utleier.
























