Bildegalleri

Type B 1etasje
Solgt
Bryne Park
Roald Amundsens veg
Prisantydning4 190 000 kr
Prosjektets status
Planlegging
Ferdig
Salgsstart
Er i salg
Byggestart
Byggingen pågår
Overtakelse
Estimert sommer 2025
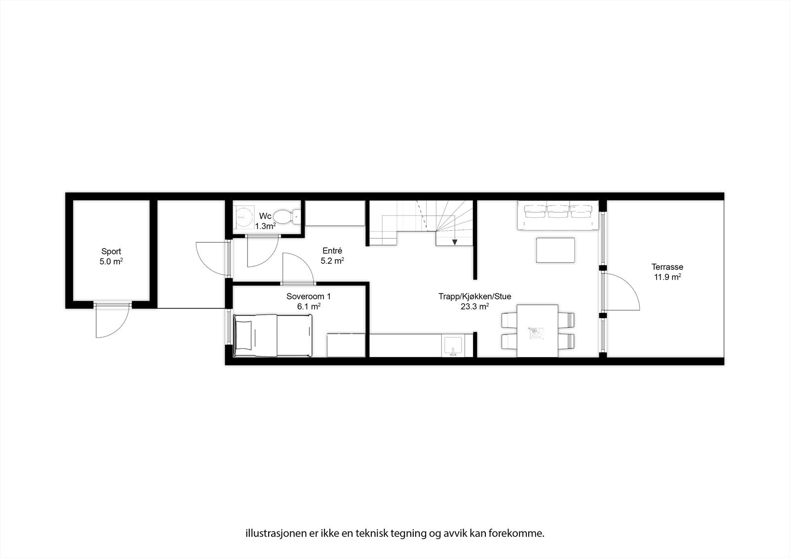
Nøkkelinfo
- Boligtype
- Rekkehus
- Soverom
- 3
- Rom
- 4
- Internt bruksareal
- 74 m² (BRA-i)
- Bruksareal
- 79 m²
- Eksternt bruksareal
- 5 m² (BRA-e)
Fasiliteter
Garasje/P-plass
Turterreng
Beskrivelse
Ansvarlig megler
Siv Merethe Jåtten
NB: Knappen for å vise hele beskrivelsen har kun en visuell effekt.
NB: Knappen for å vise hele beskrivelsen har kun en visuell effekt.
Nyttige lenker
Nærområdet
EiendomsMegler 1 Nybygg Jæren
Annonseinformasjon
| FINN-kode | 372189813 |
|---|---|
| Sist endret | 19. mars 2025 09:59 |
| Referanse | 2406240151 |
Annonsene kan være mangelfulle i forhold til lovpålagt opplysningsplikt. Før bindende avtale inngås oppfordres interessenter til å innhente komplett informasjon fra meglerforetaket, selger eller utleier.


