Bildegalleri

Tomannsbustad i Leirvågen - Ny pris!
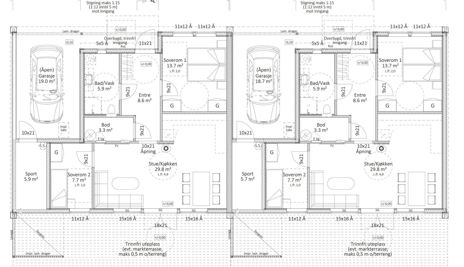
Leilegheit B
Prosjektets status
Planlegging
Sender inn byggjesøknad etter avtale
Salgsstart
1. kvartal 2026
Byggestart
3. kvartal 2026
Overtakelse
2. kvartal 2027
Nøkkelinfo
- Boligtype
- Leilighet
- Etasje
- 1
- Soverom
- 2
- Bruksareal
- 97 m²
Fasiliteter
Visning
Ta kontakt for å avtale visning.Beskrivelse
Leveransebeskriving
1. Yttervegg.
Veggar utførast elles med 36x148 bindingsverk, påforast med 48x48 innvendig.
Dampsperre mellom påforing og stender, isolert med 15+5cm Glava.
Innvendig blir det levert gipsplater, ferdig måla i valfri farge.
Veggar på bad leverast med baderomsplater.
Utvendig blir det 9mm GU-X plater, deretter 23x48 lekter med museband.
Det vert kledd med liggjande 19x148 dobbelfalsa grunna kledning.
Forøvrig vert det svillemembran under botnsvill og den forankrast til grunnmur med
ekspansjonsboltar og vinklar.
2. Utvendig lister/kister/rekkverk.
Grunna 16x98 lister rundt vindauge og dører.
Trevassbord med beslag over og under vindauge/dør.
3. Yttertak.
Takkonstruksjonen leveras med takstolar og sperr/dragar.
Med undertak av underpanel, diffusjonsopen duk og sløyfer/lekter.
Det vert lagt Zanda Protector i farge; svart.
Med snøfangar og stigetrinn til pipe etter forskrifter.
4. Himling.
Himling blir isolert med 300mm Glava, det monterast dampsperre og lektast ned med 36x48.
Plater vert folierte Takess.
5. Innerveggar.
36/48x98 med gipsplater.
På bad leverast det baderomsplater.
Alle innerveggar blir isolert med 70mm Glava.
6. Vindauge og dørar.
Det leverast svartmåla vindauge frå Lyssand-Frekhaug.
Ytterdør leverast svartmåla frå Diplomat.
7. Takrenner/nedløp/beslag.
Takrenner, nedløp samt skvettplast leverast i svartlakkert aluminium.
Nedløp avsluttas ca 10cm over terreng eller i overvassleidning (ikkje med i prisen)
8. Innvendige lister og dører.
Alle dør/ vindaugslister leverast i 12x58 slett kvitmåla furu.
Fotlist leverast i 12x58 slett kvitmåla furu.
Taklister leverast i db. skygge 21x45 slett kvitmåla furu.
Fòringar leverast i kvitmåla furu.
Innerdørar leverast i formpressa kvitmåla utgåve inkl. dørhandtak.
Spikarhol etterbehandlast av kunde om ynskjeleg.
9. Diverse.
Golv på bad og i bod leverast med ferdig lagt golvbelegg.
Elles leverast det ferdig lagt laminat/parkett med ein verdi inntil 200,- inkl. mva per m2.
Det leverast 1stk brannslukkingsapparat.
Det leverast kjøkken frå IKEA ferdig montert med kvitevarer.
10. Ventilasjon.
Det leverast ferdig montert balansert ventilasjonsanlegg frå Systemair.
11. Elektrikar.
Komplett standard leveranse.
12. Røyrleggjar
Komplett standard leveranse.
Inkludert baderomsinnreiing og dusjkabinett.
Det leverast minireinseanlegg som knytast saman med Leirvågsvegen 150.
13. Betongarbeid
Det montertast og støypast ringmurar med Jackon element.
Det leverast ferdig støypte golv, med; grovstøyp, isopor og 7cm finstøyp.
Golv i carport leverast og støypt, utan isolasjon.
14. Tømrar.
Alt av tømrar- og stilasarbeid iht. teikningar og beskriving.
15. Målar.
Det er med ferdig måla innerveggar.
16. Grunn utvendig.
Tun leverast ferdig grusa, med trappefri adkomst.
NB! det leverast ikkje terrassar eller pergola iht. teikningar, her leverast det og ferdig grusa.
Nærområdet
Annonsene kan være mangelfulle i forhold til lovpålagt opplysningsplikt. Før bindende avtale inngås oppfordres interessenter til å innhente komplett informasjon fra meglerforetaket, selger eller utleier.
