Bildegalleri

Velkommen til Vadvegen 5!
Solgt
Dombås
Pen og innholdsrik enebolig over to plan med tre soverom, uthus og garasje. Eiet tomt på ca. 1 229 kvm - sentrumsnært!
Prisantydning2 300 000 kr
Nøkkelinfo
- Boligtype
- Enebolig
- Eieform
- Eier (Selveier)
- Soverom
- 3
- Internt bruksareal
- 160 m² (BRA-i)
- Bruksareal
- 206 m²
- Eksternt bruksareal
- 46 m² (BRA-e)
- Balkong/Terrasse
- 42 m² (TBA)
- Etasje
- 2
- Byggeår
- 1971
- Energimerking
- F - Gul
- Rom
- 5
- Tomteareal
- 1 229 m² (eiet)
Fasiliteter
Balkong/Terrasse
Barnevennlig
Garasje/P-plass
Hage
Kjæledyr tillatt
Offentlig vann/kloakk
Peis/Ildsted
Rolig
Sentralt
Turterreng
Om boligen
EiendomsMegler1 Lillehammer og Gudbrandsdal presenterer Vadvegen 5 på Dombås - En pen og innholdsrik enebolig med sentrumsnær beliggenhet på Dombås!
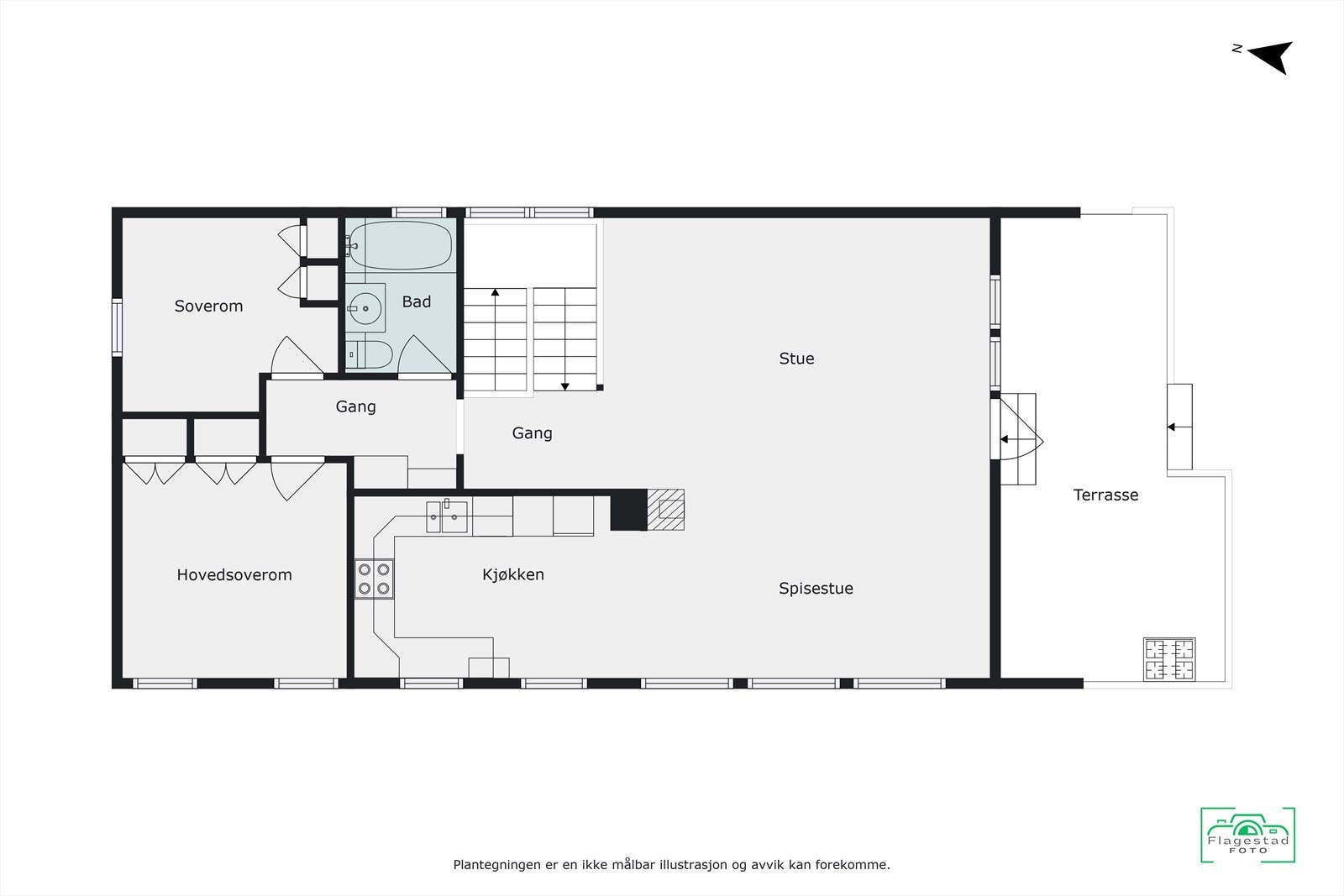
Vadvegen 5 ligger fint og sentrumsnært til på Dombås, og består av blant annet tre soverom, to stuer, to bad, vaskerom samt flotte uteområder og garasje. Godt med lagringsplass både innvendig og utvendig med blant annet tilhørende uthus / hagebod.
Fra eiendommen er det gangavstand til Dombås sentrum, hvor man finner de fleste nødvendige sentrumsfunksjoner. Det er blant annet butikker her, togstasjon, bensinstasjon, skole og barnehage. Der er og kort avstand til naturområdene i nærheten, som for eksempel Dovrefjell. Her finner man mange kjente turmål, som Snøhetta og Svånåtinden.
Velkommen - husk påmelding!
Vadvegen 5 ligger fint og sentrumsnært til på Dombås, og består av blant annet tre soverom, to stuer, to bad, vaskerom samt flotte uteområder og garasje. Godt med lagringsplass både innvendig og utvendig med blant annet tilhørende uthus / hagebod.
Fra eiendommen er det gangavstand til Dombås sentrum, hvor man finner de fleste nødvendige sentrumsfunksjoner. Det er blant annet butikker her, togstasjon, bensinstasjon, skole og barnehage. Der er og kort avstand til naturområdene i nærheten, som for eksempel Dovrefjell. Her finner man mange kjente turmål, som Snøhetta og Svånåtinden.
Velkommen - husk påmelding!
NB: Knappen for å vise hele beskrivelsen har kun en visuell effekt.
NB: Knappen for å vise hele beskrivelsen har kun en visuell effekt.
Salgsoppgaven beskriver vesentlig og lovpålagt informasjon om eiendommen
Se komplett salgsoppgaveNyttige lenker
Nærområdet
EiendomsMegler 1 Lillehammer og Gudbrandsdal - avd Gudbrandsdal
Vi loser deg trygt gjennom hele boligsalget
Prisstatistikk
Vadvegen 5
2 687 klikk
på annonsen
14 375 kr
prisantydning per kvadratmeter
Prisfordeling
Pris per m² ligger 1 375 kr over snittet for eneboliger i Dovre.
Grafen viser antall eneboliger solgt i Dovre siste året fordelt på pris per m² - totalt 4 eneboliger
Antall boliger
Kvadratmeterpris tilsvarer prisantydning pluss fellesgjeld per kvadratmeter (p-rom eller BRA-i). Prisene i grafen er avrundet til nærmeste 1000 kr.
Annonseinformasjon
| FINN-kode | 371978093 |
|---|---|
| Sist endret | 18. des. 2024 09:24 |
| Referanse | 1312240126 |
Annonsene kan være mangelfulle i forhold til lovpålagt opplysningsplikt. Før bindende avtale inngås oppfordres interessenter til å innhente komplett informasjon fra meglerforetaket, selger eller utleier.





































