Bildegalleri

Inaktiv
Innholdsrik næringseiendom med store utleiemuligheter
Prisantydning3 400 000 kr
Nøkkelinfo
- Etasje
- 3.
- Kontorplasser
- 2
- Areal
- 1 055 m²
- Byggeår
- 1964
- Tomteareal
- 3 353 m²
- Overtakelse
- 23.09.2024
Type lokale
Produksjon/Industri
Verksted
Kombinasjonslokaler
Lager/Logistikk
Fasiliteter
Bredbåndstilknytning
Garasje/P-plass
Kjøreport
Visning
Ta kontakt for å avtale nærmere.
Om eiendommen
De siste 20 årene har det vært benyttet som laftehall/snekkerverksted.
Bygningen har tidligere vært benyttet til forsentral i forbindelse med pelsdyr.
Hovedkonstruksjoner og grunnmur i kjeller er av støpt betong i vegg og støpt betonggulv ned mot grunn og i etasjeskille mellom kjeller og 1.etasje.
Ytterveggskonstruksjonen er av tre utvendig kledd med liggende kledning av tre i kombinasjon med murpuss som er malt.
Taket har saltaks form og er tekket med stålplater.
I kjeller det er 2 garasjer som ikke er utleid, men har et potensiale for utleie. Her takhøyden ca 3 m, hvor en liten del har 2,35m (fyrrom).
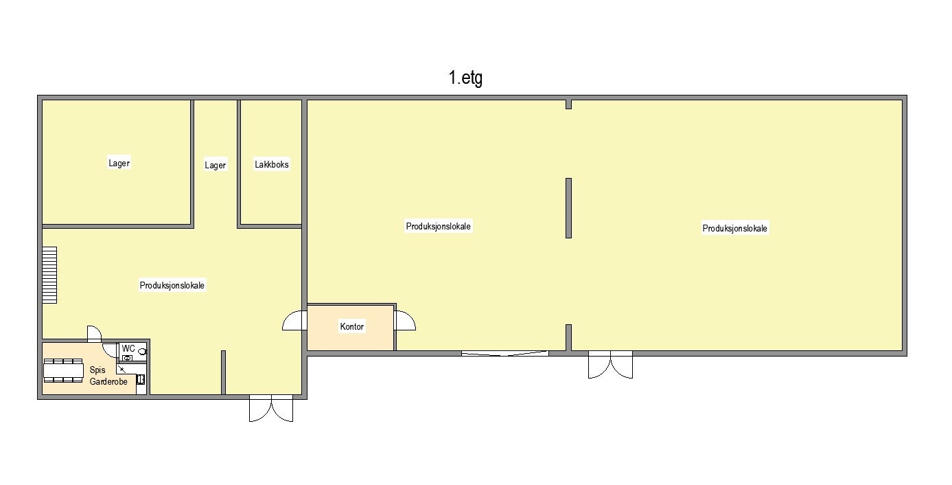
Byggets 1.etasje er benyttes som næringsareal med produksjonslokaler, lager og areal som ikke er i daglig bruk. Produksjonslokaler, spiserom, garderobe, lakkboks og
diverse smårom som ikke er i daglig bruk. Takhøyde produksjonshall 3,2m.
2. etasje er innredet til boligformål og inneholder 2 leiligheter. Det inngår 5 soverom, 2 stuer, 2 bad, 2 kjøkken og 1 bod.
Utvendig er det etablert kaldtlager med takoverbygg på ca. 150m2. Her det også etablert støpt plate som kan bygges videre på, ca.300m2.
Det er lett skrående tomt som er opparbeidet med utvendige lagerplasser som er oppgruset.
Eiendommen er tilkoblet privat vei, vann og avløp.
El-kontroll er utført på bygget i 2023. Det er godkjent uten feil og mangler.
Bygningsmassen varmes opp via luft/ luft varmepumper. Det har tidligere vært benyttet pellets oppvarming og oppvarming via radiatorer, dette anlegget er fortsatt operativt men ikke i daglig bruk.
Utbyggingspotensiale bredden er det liten mulighet for videre utnyttelse. I lengden kan det være muligheter med
tilbygg/ nytt bygg mot øst. Oppdal Kommune har normalt høy utnyttelsesgrad for næringsbygg
og det må avklares med de for hvert enkelt tiltak det søkes om.
Utdrag fra takstrapport:
Byggekostnadene er beregnet til hva det ville koste å føre opp et tilsvarende bygg i dag. Tomteverdien fremkommer ved en betraktning av tomtebelastningen og reguleringsbestemmelsene. I begrepet "normale tomtekostnader" ligger også verdi av eventuell andel fellesareal, samt markedstilpasning for beliggenhet/attraktivitet. Det er foretatt en reduksjon på grunn av byggets alder, tilstand, hensiktsmessighet og tekniske
anlegg. For kurante næringseiendommer forekommer det ofte avvik mellom den tekniske verdien og takstkonklusjonen.
Sum teknisk verdi – Næringsbygg: kr 14 007 500
Ansatt verdi tomt: kr 2 179 775
Prisen er ikke inkludert omkostninger ved kjøp.
Bygningen har tidligere vært benyttet til forsentral i forbindelse med pelsdyr.
Hovedkonstruksjoner og grunnmur i kjeller er av støpt betong i vegg og støpt betonggulv ned mot grunn og i etasjeskille mellom kjeller og 1.etasje.
Ytterveggskonstruksjonen er av tre utvendig kledd med liggende kledning av tre i kombinasjon med murpuss som er malt.
Taket har saltaks form og er tekket med stålplater.
I kjeller det er 2 garasjer som ikke er utleid, men har et potensiale for utleie. Her takhøyden ca 3 m, hvor en liten del har 2,35m (fyrrom).
Byggets 1.etasje er benyttes som næringsareal med produksjonslokaler, lager og areal som ikke er i daglig bruk. Produksjonslokaler, spiserom, garderobe, lakkboks og
diverse smårom som ikke er i daglig bruk. Takhøyde produksjonshall 3,2m.
2. etasje er innredet til boligformål og inneholder 2 leiligheter. Det inngår 5 soverom, 2 stuer, 2 bad, 2 kjøkken og 1 bod.
Utvendig er det etablert kaldtlager med takoverbygg på ca. 150m2. Her det også etablert støpt plate som kan bygges videre på, ca.300m2.
Det er lett skrående tomt som er opparbeidet med utvendige lagerplasser som er oppgruset.
Eiendommen er tilkoblet privat vei, vann og avløp.
El-kontroll er utført på bygget i 2023. Det er godkjent uten feil og mangler.
Bygningsmassen varmes opp via luft/ luft varmepumper. Det har tidligere vært benyttet pellets oppvarming og oppvarming via radiatorer, dette anlegget er fortsatt operativt men ikke i daglig bruk.
Utbyggingspotensiale bredden er det liten mulighet for videre utnyttelse. I lengden kan det være muligheter med
tilbygg/ nytt bygg mot øst. Oppdal Kommune har normalt høy utnyttelsesgrad for næringsbygg
og det må avklares med de for hvert enkelt tiltak det søkes om.
Utdrag fra takstrapport:
Byggekostnadene er beregnet til hva det ville koste å føre opp et tilsvarende bygg i dag. Tomteverdien fremkommer ved en betraktning av tomtebelastningen og reguleringsbestemmelsene. I begrepet "normale tomtekostnader" ligger også verdi av eventuell andel fellesareal, samt markedstilpasning for beliggenhet/attraktivitet. Det er foretatt en reduksjon på grunn av byggets alder, tilstand, hensiktsmessighet og tekniske
anlegg. For kurante næringseiendommer forekommer det ofte avvik mellom den tekniske verdien og takstkonklusjonen.
Sum teknisk verdi – Næringsbygg: kr 14 007 500
Ansatt verdi tomt: kr 2 179 775
Prisen er ikke inkludert omkostninger ved kjøp.
Beliggenhet
Eiendommen er beliggende ca. 3km nord for Oppdal sentrum ved de gamle revfarmene. Det er
kort vei inn fra dagens E6, med kryssing av jernbanespor.
kort vei inn fra dagens E6, med kryssing av jernbanespor.
Adkomst
Det er adkomst via Gorsetsætervegen, som er felles for alle brukere i området.
Standard
El-kontroll er utført på bygget i 2023. Det er godkjent uten feil og mangler.
NB: Knappen for å vise hele beskrivelsen har kun en visuell effekt.
NB: Knappen for å vise hele beskrivelsen har kun en visuell effekt.
Nærområdet
Annonsene kan være mangelfulle i forhold til lovpålagt opplysningsplikt. Før bindende avtale inngås oppfordres interessenter til å innhente komplett informasjon fra meglerforetaket, selger eller utleier.








