Bildegalleri

Alicha Viste ved EIE eiendomsmegling har gleden av å presentere Ammerudhelliga 76!
Lekker 3-R toppleilighet | Varmtvann og fyring inkludert | Heis | Vestvendt innglasset balkong på 12m² | Garasjeplass!
Nøkkelinfo
- Boligtype
- Leilighet
- Eieform
- Andel
- Soverom
- 2
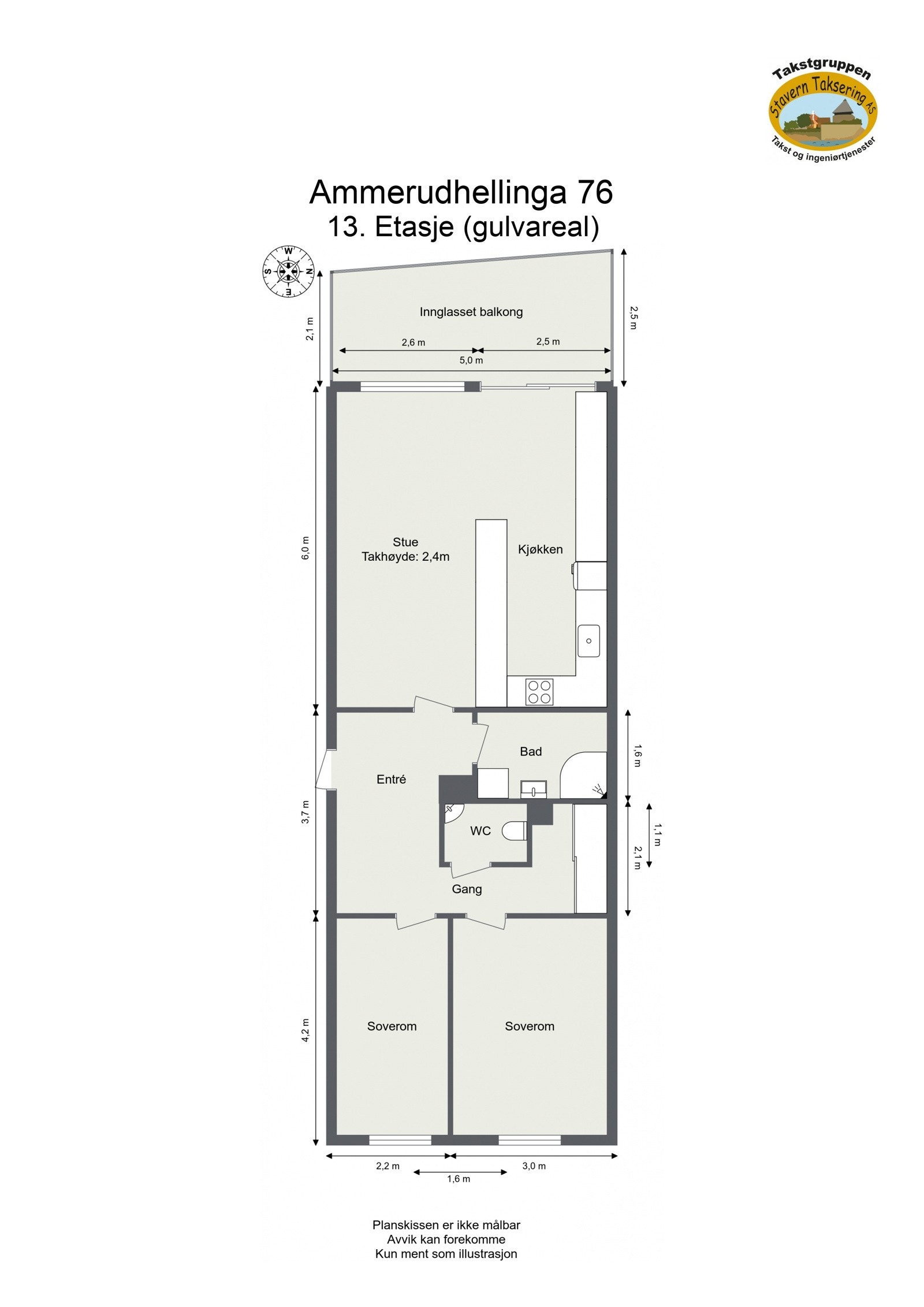
- Internt bruksareal
- 73 m² (BRA-i)
- Bruksareal
- 87 m²
- Eksternt bruksareal
- 2 m² (BRA-e)
- Innglasset balkong
- 12 m² (BRA-b)
- Etasje
- 13
- Byggeår
- 1967
- Energimerking
- F - Mørkegrønn
- Tomteareal
- 13 717 m² (eiet)
Fasiliteter
Om boligen
Alicha Viste ved EIE eiendomsmegling har gleden av å presentere Ammerudhellinga 76! Dette er en moderne og lekker 3-R toppleilighet i 13. etg beliggende sentralt på Ammerud! Leiligheten har en funksjonell og gjennomgående planløsning. Her får du to gode soverom, separat bad/wc, stue med åpen kjøkkenløsning og en herlig innglasset balkong! Leiligheten ble pusset opp i 2015 og i 2024, og er i dag en gjennomført og fresh 3-roms leilighet!
Kvaliteter:
- Stilsikker leilighet pusset opp i 2015 med nye overflater i 2024
- Bad oppusset i regi av brl. i 2010
- Stort og moderne kjøkken
- Downlights + LED lys m. farger
- Felleskostnader m. v.vann og inkludert
- Vestvendt innglasset balkong på 12m²
- Heis
- Kjellerbod på 2m²
- God offentlig kommunikasjon
- Lillomarka rett utenfor dørs
- Disponerer garasje
Velkommen til visning!
Salgsoppgaven beskriver vesentlig og lovpålagt informasjon om eiendommen
Se komplett salgsoppgaveNærområdet
EIE eiendomsmegling Stovner
Annonseinformasjon
| FINN-kode | 371517388 |
|---|---|
| Sist endret | 10. okt. 2024 11:04 |
| Referanse | 75240364 |
Annonsene kan være mangelfulle i forhold til lovpålagt opplysningsplikt. Før bindende avtale inngås oppfordres interessenter til å innhente komplett informasjon fra meglerforetaket, selger eller utleier.



































