Bildegalleri

Nyoppusset, moderne leilighet i høy 1. etasje med 2 soverom.
Solgt
Stangeløkka
Oppusset 3-roms leilighet i 1. etasje: Nytt bad og kjøkken, vannbåren varme inkl., sentrumsnær med utsikt!
Prisantydning2 000 000 kr
Nøkkelinfo
- Boligtype
- Leilighet
- Eieform
- Andel
- Soverom
- 2
- Internt bruksareal
- 68 m² (BRA-i)
- Bruksareal
- 76 m²
- Eksternt bruksareal
- 8 m² (BRA-e)
- Balkong/Terrasse
- 7 m² (TBA)
- Etasje
- 1
- Byggeår
- 1953
- Energimerking
- G - Rød
- Rom
- 3
- Tomteareal
- 1 122 m² (eiet)
Fasiliteter
Balkong/Terrasse
Barnevennlig
Bredbåndstilknytning
Fellesvaskeri
Garasje/P-plass
Kabel-TV
Offentlig vann/kloakk
Rolig
Sentralt
Utsikt
Vaktmester-/vektertjeneste
Turterreng
Lademulighet
Om boligen
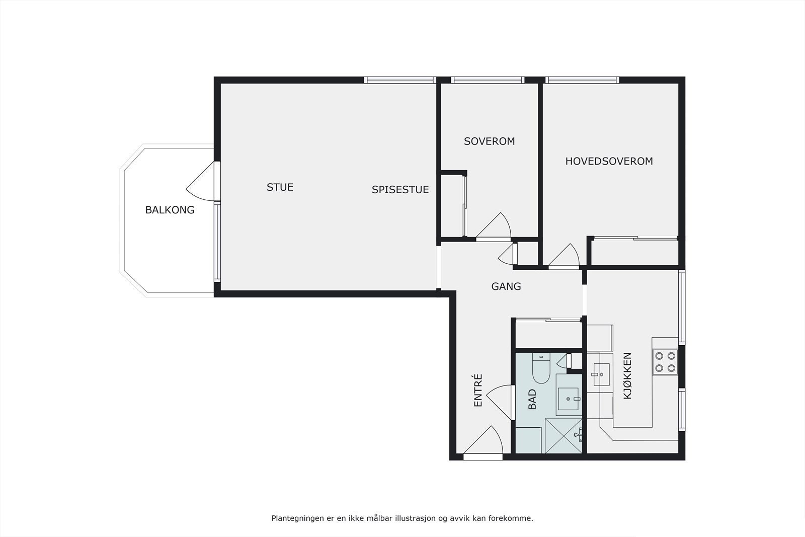
Moderne leilighet med 2 soverom i 1. etasje, nylig oppusset med nytt bad, kjøkken fra HTH og nye overflater. Det herlige gulvet i heltre er slipt og behandlet. Leiligheten har to romslige soverom, en god planløsning og store vindusflater som slipper inn rikelig med naturlig lys. Vannbåren varme er inkludert i felleskostnadene, og egen parkeringsplass medfølger. Boligen har en balkong som snart vil bli utvidet og innglasset - herfra får du en fantastisk utsikt og herlige solforhold. I tillegg skal bygget få et fasadeløft, noe som vil gi leiligheten et enda mer moderne preg. Dette medfører en økning i felleskostnadene med kr. 1.100,-/mnd. Her bor du nært sentrum og alle dets fasiliteter! Den ligger også i nærheten av butikker, kollektivtransport og fritidstilbud - alt man måtte ønske seg.
NB: Knappen for å vise hele beskrivelsen har kun en visuell effekt.
NB: Knappen for å vise hele beskrivelsen har kun en visuell effekt.
Salgsoppgaven beskriver vesentlig og lovpålagt informasjon om eiendommen
Se komplett salgsoppgaveNyttige lenker
Nærområdet
Nordvik Fredrikstad og Hvaler
Vi vet hva det er verdt
Annonseinformasjon
| FINN-kode | 371505973 |
|---|---|
| Sist endret | 21. feb. 2025 11:21 |
| Referanse | 30-0161/24 |
Annonsene kan være mangelfulle i forhold til lovpålagt opplysningsplikt. Før bindende avtale inngås oppfordres interessenter til å innhente komplett informasjon fra meglerforetaket, selger eller utleier.




















































