Bildegalleri

Velkommen til Langes gate 4!
Attraktiv 2-roms leilighet i Strømsø sentrum med moderne fasiliteter | Balkong | Heis | Garasje.
Pris på lån: fra 12 911 kr/mnd
Eff.rente 5,00 %. 2 233 000 o/25 år. Kostnad: 1 640 300 kr. Totalt 3 873 300 kr.
LånekalkulatorNøkkelinfo
- Boligtype
- Leilighet
- Eieform
- Andel
- Soverom
- 1
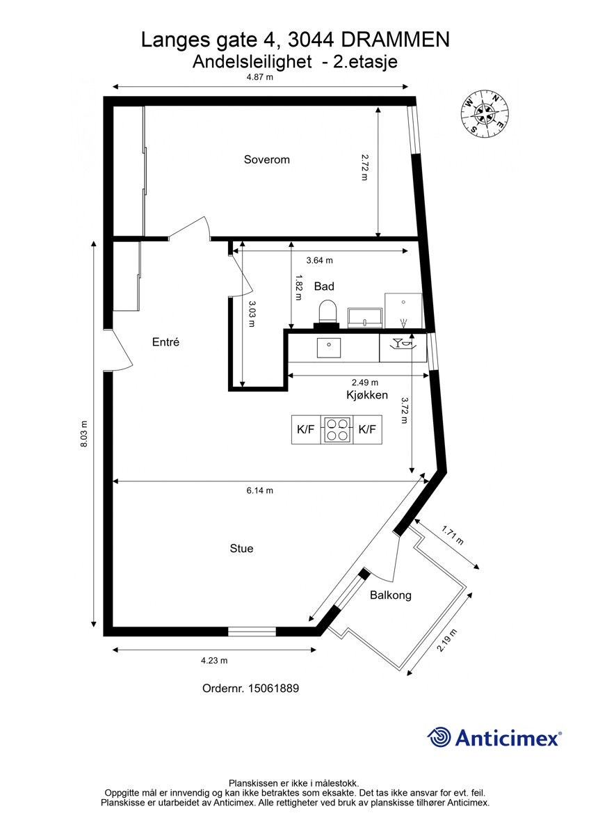
- Internt bruksareal
- 57 m² (BRA-i)
- Bruksareal
- 62 m²
- Eksternt bruksareal
- 5 m² (BRA-e)
- Balkong/Terrasse
- 4 m² (TBA)
- Etasje
- 2
- Byggeår
- 1987
- Energimerking
- E - Rød
- Tomteareal
- 822 m² (eiet)
- Boligselgerforsikring
- Ja
Om boligen
Velkommen til Langes gate 4!
Lekker 2-roms leilighet i hjertet av Strømsø, Drammen. Denne stilfulle leiligheten byr på en lys og luftig entré, romslig stue med åpen kjøkkenløsning og direkte tilgang til en flislagt balkong med utsikt mot Drammenselva. Kjøkkenet, oppgradert i 2006, har kjøkkenøy og integrerte hvitevarer. Stilrent bad med gulvvarme og praktisk oppbevaringsplass.
Med en sentral beliggenhet er det bare 3 minutters gange til Drammen jernbanestasjon, som har hyppige avganger til Oslo på ca. 35 minutter. Nærområdet har alt fra butikker og restauranter til Marienlyst, Strømsø Torg og Bragernes Torg.
- Sentralt beliggende
- Åpen kjøkkenløsning
- Flislagt balkong
- Parkeringsplass med el-billader
- Gangavstand til jernbanestasjon, butikker og restaurante
- Parkeringsplass
- Heis
- Bod
Salgsoppgaven beskriver vesentlig og lovpålagt informasjon om eiendommen
Se komplett salgsoppgaveNyttige lenker
Nærområdet
Lokalmegleren
Annonsene kan være mangelfulle i forhold til lovpålagt opplysningsplikt. Før bindende avtale inngås oppfordres interessenter til å innhente komplett informasjon fra meglerforetaket, selger eller utleier.


























