Bildegalleri

Velkommen til Vestbyveien 23K - Et familievennlig rekkehus over tre plan, beliggende i et veletablert og rolig boligområde på Grorud.
Attraktivt rekkehus over tre plan| Flott uteplass m/stor solrik terrasse| Garasje | Familievennlig og rolig beliggenhet
Nøkkelinfo
- Boligtype
- Rekkehus
- Eieform
- Eier (Selveier)
- Soverom
- 4
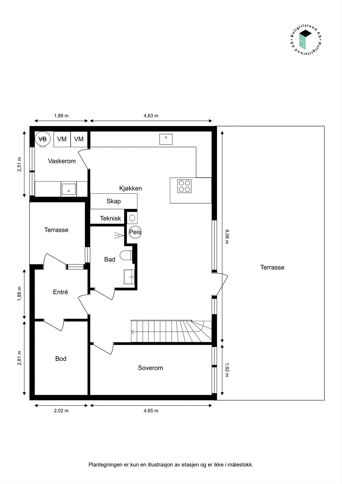
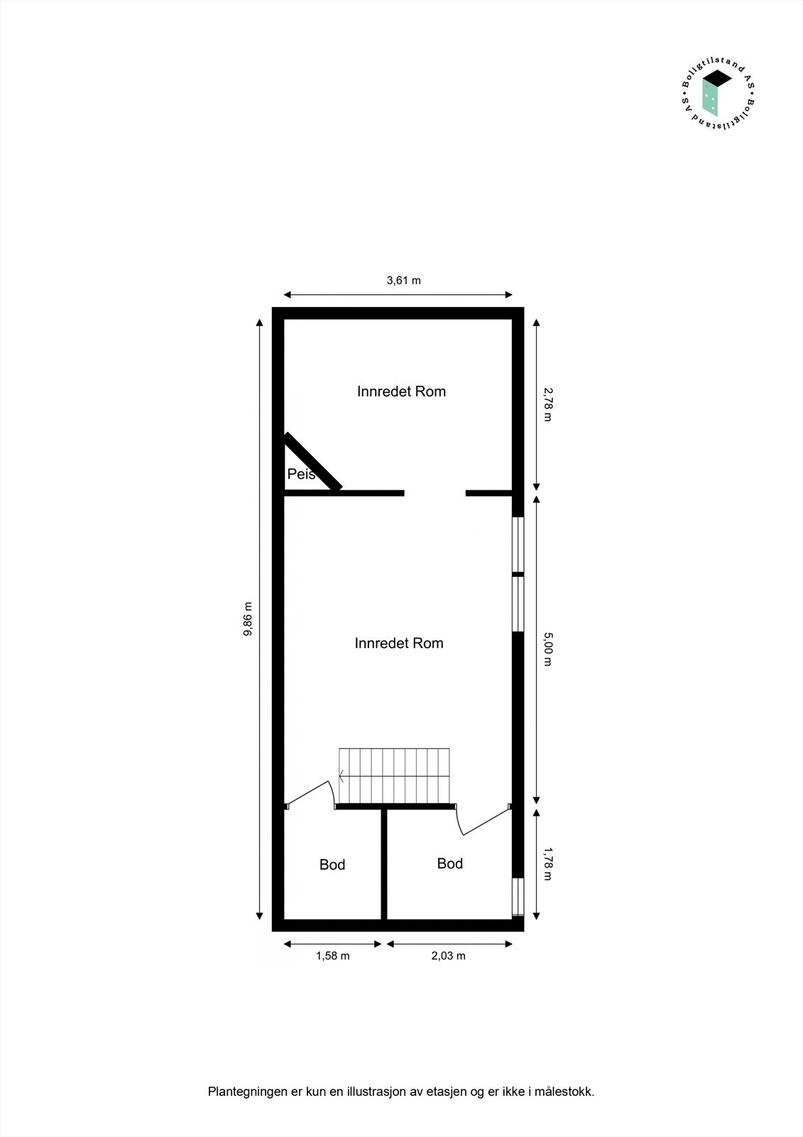
- Internt bruksareal
- 167 m² (BRA-i)
- Bruksareal
- 189 m²
- Eksternt bruksareal
- 22 m² (BRA-e)
- Balkong/Terrasse
- 78 m² (TBA)
- Etasje
- 3
- Byggeår
- 1968
- Energimerking
- E - Gul
- Rom
- 6
- Tomteareal
- 24 958 m² (eiet)
Fasiliteter
Om boligen
- Flott uteareal med stor terrasse
- Garasjeplass
- Nytt kjøkken, bad og vaskerom (2019-2022)
- Overflateoppusset og etterisolert (2019-2022)
- Nye vinduer (2020)
- Nytt tak (2019)
- Kort vei til barnehager og skoler
- Nærhet til marka
- Kort avstand til servicetilbud og fasiliteter
Velkommen til visning!
Salgsoppgaven beskriver vesentlig og lovpålagt informasjon om eiendommen
Se komplett salgsoppgaveNyttige lenker
Nærområdet
EiendomsMegler 1 Torshov
Prisstatistikk
Vestbyveien 23K
på annonsen
prisantydning per kvadratmeter
Prisfordeling
Pris per m² ligger 14 647 kr under snittet for rekkehus i Grorud.
Grafen viser antall rekkehus solgt i Grorud siste året fordelt på pris per m² - totalt 27 rekkehus
Antall boliger
Kvadratmeterpris tilsvarer prisantydning pluss fellesgjeld per kvadratmeter (p-rom eller BRA-i). Prisene i grafen er avrundet til nærmeste 1000 kr.
Annonseinformasjon
| FINN-kode | 371253475 |
|---|---|
| Sist endret | 25. feb. 2025 09:37 |
| Referanse | 3225240104 |
Annonsene kan være mangelfulle i forhold til lovpålagt opplysningsplikt. Før bindende avtale inngås oppfordres interessenter til å innhente komplett informasjon fra meglerforetaket, selger eller utleier.




























































