Bildegalleri

Årvoll sør
26
Prosjektets status
Planlegging
Salgsklart
Salgsstart
18.09.2024
Byggestart
Byggoppstart ved salg
Overtakelse
ca 12 måneder etter byggestart
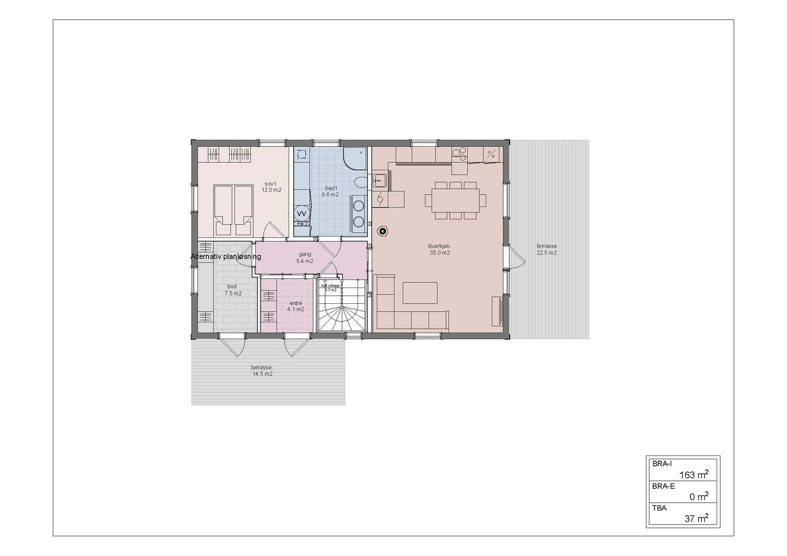
Nøkkelinfo
- Boligtype
- Enebolig
- Etasje
- 2
- Soverom
- 4
- Internt bruksareal
- 163 m² (BRA-i)
- Bruksareal
- 163 m²
- Balkong/Terrasse
- 37 m² (TBA)
Beskrivelse
Oppvarming
Ved og strøm
Beliggenhet
Eiendommen har en sentrumsnær beliggenhet og er tilbaketrukket fra hovedgatene, slik at området oppleves som fredelig. Kort gangavstand til alt av butikker og service tilbud. Barneskolen ligger i nærområdet.
Forbehold
Det tas forbehold om trykkfeil i salgsoppgaven.
Salgsoppgaven er ufullstendig uten alle vedlegg.
Betalingsbetingelser
Hele kjøpesummen sammen med omkostninger og eventuelle tilvalg skal innbetales til overtakelse, forutsatt at selger har stilt lovpålagt garanti etter bustadoppføringslova § 12. Samtlige beløp skal innbetales til meglerforetakets klientkonto. Innbetaling skal kun skje fra kjøper og/eller kjøpers bankforbindelse.
I det tilfelle kjøper har anledning til å gjøre tilvalg, vil det være selgers ansvar å sende til meglerforetaket en bekreftet liste som inneholder tilvalg og avtalt sum for dette. Tilvalg må være innbetalt til overtakelse. Det gjøres oppmerksom på at selger, mot sikkerhet etter bustadoppføringslova § 47, kan kreve at kjøperen betaler forskudd for tilvalg. Alternativt kan selgeren kreve at kjøperen stiller sikkerhet for selgerens krav på tilleggsvederlag. Videre gjøres det oppmerksom på at alle innbetalinger skal skje til meglerforetakets klientkonto, og ikke direkte til selger. Dersom endringsavtale inngås direkte med selgers underleverandører, anbefaler meglerforetaket at betaling for disse endringene finner sted etter overtakelse har funnet sted. Dersom kjøper velger å betale slik endringsbestilling tidligere, gjør meglerforetaket oppmerksom på at slik betaling vil kunne være usikret ved en eventuell konkurs.
Handelen er juridisk bindende for begge parter ved aksept. Dersom kjøper innen fristen ikke overholder sin forpliktelse med tilfredsstillende finansieringsbevis, er kjøper likevel bundet av avtalen, og selger vil kunne påberope avtalen som vesentlig misligholdt, og heve avtalen. Kjøper samtykker til at omkostninger knyttet til heving og dekningssalg i så fall dekkes av kjøper.
Overtakelse
Boligen er forventet ferdigstilt 12 måneder etter at ovenfor nevnte forbehold er frafalt.
Angitt tidspunkt er foreløpig, og ikke bindende eller dagmulktsutløsende. Boligen skal dog være ferdig senest xx måneder etter at forbehold er frafalt. Dersom det oppstår forsinkelse som berettiger dagmulkt, så skal dette beregnes etter xx mnd. fra tidspunkt for frafall av forbehold.
Når selger har opphevet forbeholdene skal selger fastsette en overtakelsesperiode som ikke skal være lenger enn tre måneder. Selger skal skriftlig varsle kjøper om når overtakelsesperioden begynner og slutter. Senest ti uker før ferdigstillelse av boligen skal selger gi kjøper skriftlig melding om endelig overtakelsesdato. Den endelige datoen er bindende og dagmulktsutløsende, og skal ligge innenfor overtakelsesperioden.
Dersom selger fullfører eiendommen i god tid før overnevnte frist, kan selger kreve overtakelse inntil fire måneder før den avtalte fristen for overtakelse. Selger skal skriftlig varsle kjøper om dette minimum to måneder før det nye overtakelsestidspunktet.
Overtakelse skjer straks boligen er ferdigstilt og bør skje etter at ferdigattest foreligger, dog vil overtakelse skje ved midlertidig brukstillatelse dersom kommunen utsteder slik midlertidig brukstillatelse.
Eiendommen skal overtas ved overtakelsesforretning hvor begge parter deltar. Kjøper skal varsle om ev. forhold som påberopes som mangel ved eiendommen. Det påpekes at dette gjelder alle forhold kjøper avdekker eller med rimelighet burde avdekket ved gjennomgangen. Ev. reklamasjoner og selgers standpunkt til disse skal protokolleres og overtakelsesprotokollen skal signeres av begge parter.
Det er ulovlig å ta boligen i bruk uten ferdigattest/midlertidig brukstillatelse. Kjøper har heller ingen plikt til å overta eller innbetale oppgjør uten at ferdigattest/midlertidig brukstillatelse foreligger. Dersom midlertidig brukstillatelse ikke foreligger, avholdes likevel selve forretningen, men overtakelsesdato utsettes til enten midlertidig brukstillatelse eller ferdigattest foreligger.
Selger skal overlevere eiendommen i byggrengjort stand, og fellesarealer i ryddet stand. Kjøper aksepterer at alle utbedringer, overtakelser og ettårsbefaringer avholdes innfor normal kontortid.
Kjøper kan nekte overtakelse dersom eiendommen på overtakelsestidspunktet har feil og/eller mangler som gir rimelig grunn for nektelsen. Selger forplikter seg da til innen rimelig tid å utbedre alle feil og/eller mangler som blir protokollert under befaringen.
Risikoen for eiendommen går over på kjøper når kjøper har overtatt eiendommen. Hvis eiendommen ikke overtas til avtalt tid, og årsaken ligger hos kjøper, har kjøper risikoen fra det tidspunkt eiendommen kunne vært overtatt.
Når risikoen for eiendommen er gått over på kjøper, faller ikke kjøpers plikt til å betale kjøpesummen bort ved at eiendommen blir ødelagt eller skadet som følge av en hendelse som selger ikke svarer for.
Det gjøres oppmerksom på at overtakelse vil kunne skje selv om eventuelle nødvendige formaliteter med seksjonering eller fradeling ikke er på plass. Det samme gjelder dersom det fortsatt gjenstår byggearbeider på eiendommen i forbindelse med ferdigstillelse av de øvrige boliger/fellesarealer/tekniske installasjoner.
Nyttige lenker
Nærområdet
Lokalmegleren & Partners
Annonseinformasjon
| FINN-kode | 371247162 |
|---|---|
| Sist endret | 20. okt. 2025 08:12 |
| Referanse | 48241103 |
Annonsene kan være mangelfulle i forhold til lovpålagt opplysningsplikt. Før bindende avtale inngås oppfordres interessenter til å innhente komplett informasjon fra meglerforetaket, selger eller utleier.



