Bildegalleri

Joa, Sola
Joa Parsellhage
Joa Parsellhage
Prisantydning1 590 000 kr
Kort om prosjektet
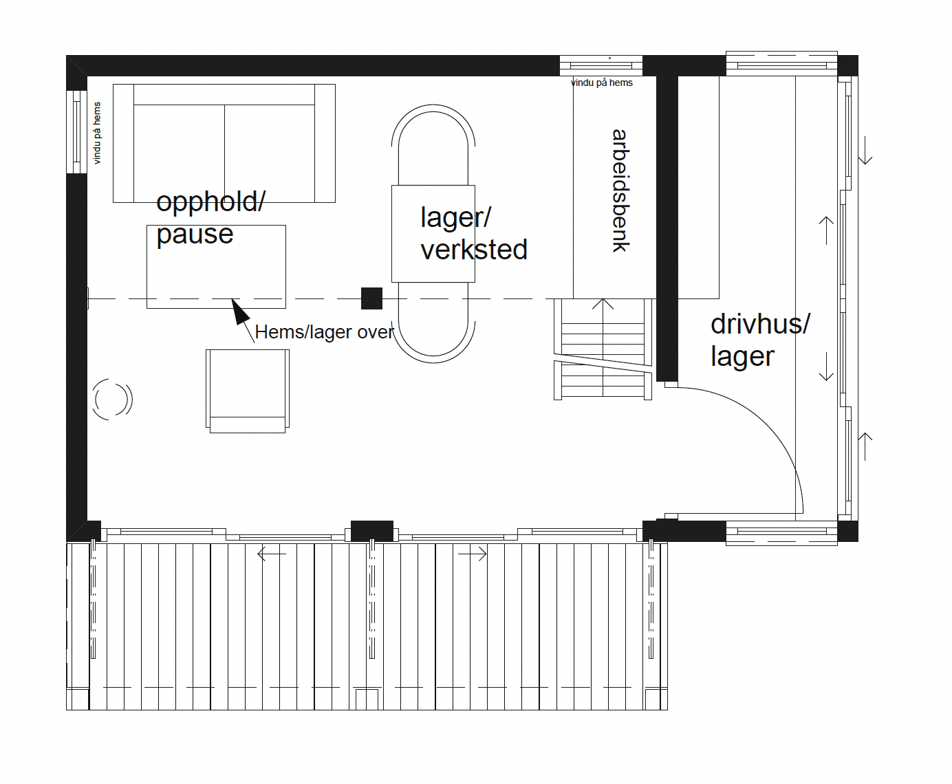
Joa parsellhage på Sola er et godt eksempel på en bærekraftig hage, hvor du får muligheten til å dyrke egne planter i en naturlig setting. Her, hvor landets aller beste jordbær dyrkes frem, får du nå mulighet til å kjøpe ditt eget fristed - din egen hageoase i skjønne Sola.
Prosjektets status
Planlegging
Prosjektet er klart for salg
Salgsstart
23.09.2024
Byggestart
2025
Overtakelse
2025
Nøkkelinfo
- Beliggenhet
- Ved sjøen
- Boligtype
- Andre
- Soverom
- 0
- Bruksareal
- 20 m²
- Balkong/Terrasse
- 10 m² (TBA)
- Tomteareal
- 280 m²
- Festeavgift
- 0 kr
Fasiliteter
Balkong/Terrasse
Bilvei frem
Offentlig vann/kloakk
Peis/Ildsted
Innlagt strøm
Innlagt vann
Visning
Ta kontakt for å avtale visning.Nyttige lenker
Nærområdet
JOA PARSELLHAGER AS
Annonsene kan være mangelfulle i forhold til lovpålagt opplysningsplikt. Før bindende avtale inngås oppfordres interessenter til å innhente komplett informasjon fra meglerforetaket, selger eller utleier.
