Bildegalleri

Moderne enebolig med minimalistisk design, store vinduer og garasje. Attraktiv beliggenhet i rolig nabolag. Illustrasjon.
Juviga
Eksklusiv enebolig på tomt på ca 1,8 mål | Dobbel garasje | Sjøutsikt
Prosjektets status
Planlegging
Utført
Salgsstart
I salg
Byggestart
Straks boligene selges
Overtakelse
Ca 12-14 mnd byggeperiode
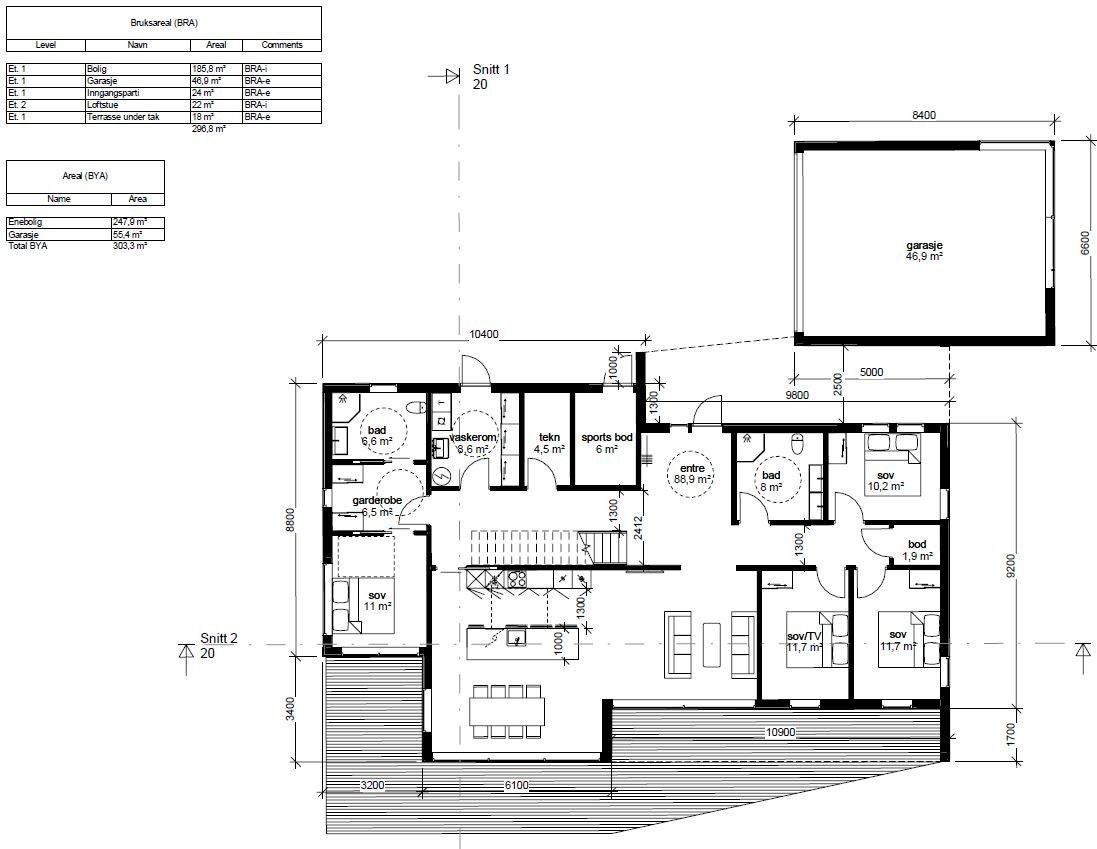
Nøkkelinfo
- Boligtype
- Enebolig
- Soverom
- 4
- Rom
- 6
- Internt bruksareal
- 208 m² (BRA-i)
- Bruksareal
- 300 m²
- Eksternt bruksareal
- 92 m² (BRA-e)
Fasiliteter
Beskrivelse
Moderne, stilfull bolig med alt meget praktisk på ett plan. I tillegg er det en ekstra loftstue.
Man kommer inn midt i boligen i en meget romslig entrè. Videre inn i stue med åpen kjøkkenløsning. Store gode vinduer. På kjøkkenet er det kjøkkenøy og god plass til stort spisebord. Hovedsoverommet er i tilknytning til garderobe og baderom med dusj. "Barne/ungdomsavdeling" med 3 soverom og baderom med dusj. I tillegg er det stort vaskerom med utg. tomten, teknisk rom og bod. Sportsbod med adkomst fra tomten. Dobbel garasje på 50 kvm.
Nyttige lenker
Nærområdet
EiendomsMegler 1 Nybygg Sør
Annonseinformasjon
| FINN-kode | 371121205 |
|---|---|
| Sist endret | 23. apr. 2025 12:16 |
| Referanse | 2608230005 |
Annonsene kan være mangelfulle i forhold til lovpålagt opplysningsplikt. Før bindende avtale inngås oppfordres interessenter til å innhente komplett informasjon fra meglerforetaket, selger eller utleier.





