Bildegalleri

Moderne enebolig med fantastisk utsikt, store uteområder og stilrent design, beliggende i et rolig og naturskjønt område. Illustrasjon.
Juviga
Prosjektert bolig på tomt på ca 1,5 mål | Dobbel garasje | Sjøutsikt
Prosjektets status
Planlegging
Utført
Salgsstart
I salg
Byggestart
Straks boligene selges
Overtakelse
Ca 12-14 mnd byggeperiode
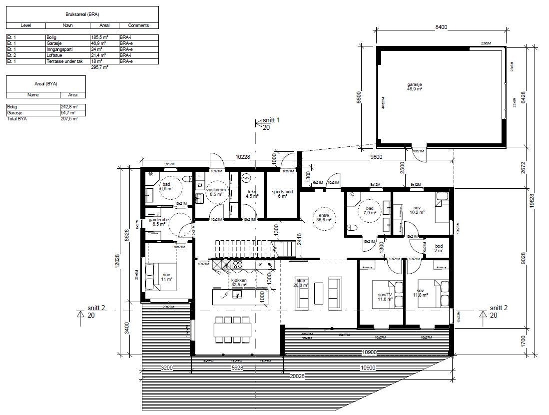
Nøkkelinfo
- Boligtype
- Enebolig
- Soverom
- 4
- Rom
- 6
- Internt bruksareal
- 207 m² (BRA-i)
- Bruksareal
- 299 m²
- Eksternt bruksareal
- 92 m² (BRA-e)
Fasiliteter
Beskrivelse
Moderne, stilfull bolig med alt meget praktisk på ett plan. I tillegg er det en ekstra loftstue.
Man kommer inn midt i boligen i en meget romslig entre på 36 kvm. Videre inn i stue med åpen kjøkkenløsning. Store gode vinduer. På kjøkkenet er det kjøkkenøy og god plass til stort spisebord. Hovedsoverommet er i tilknytning til garderobe og baderom med dusj. "Barne/ungdomsavdeling" med 3 soverom og baderom med dusj. I tillegg er det stort vaskerom med utg. tomten, teknisk rom og bod. Sportsbod med adkomst fra utvendig. Dobbel garasje på 50 kvm.
Parkering
Dobbel garasje på tomten.
Nyttige lenker
Nærområdet
EiendomsMegler 1 Nybygg Sør
Annonseinformasjon
| FINN-kode | 371121204 |
|---|---|
| Sist endret | 23. apr. 2025 12:16 |
| Referanse | 2608230004 |
Annonsene kan være mangelfulle i forhold til lovpålagt opplysningsplikt. Før bindende avtale inngås oppfordres interessenter til å innhente komplett informasjon fra meglerforetaket, selger eller utleier.






