Bildegalleri

Eneboligene får moderne arkitektur, stramme linjer, store vindusflater og eksklusive kvaliteter - illustrasjon
Juviga
Enebolig med alt på ett plan | Sjøutsikt! | Båtplass*
Prosjektets status
Planlegging
Utført
Salgsstart
I salg
Byggestart
Straks boligene selges
Overtakelse
Ca 12-14 mnd byggeperiode
Nøkkelinfo
- Boligtype
- Enebolig
- Soverom
- 4
- Rom
- 5
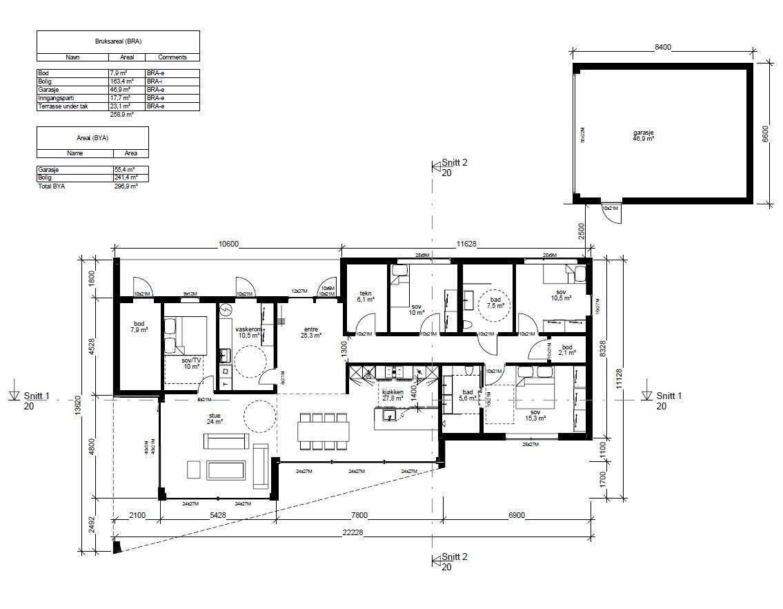
- Internt bruksareal
- 163 m² (BRA-i)
- Bruksareal
- 262 m²
- Eksternt bruksareal
- 99 m² (BRA-e)
Fasiliteter
Beskrivelse
Lekker og funksjonell enebolig med alt på ett plan. Dobbel garasje. Stor tomt på ca 1 mål som opparbeides iht utomhusplan.
Boligen inneholder stor entrè med åpen løsning inn mot spiseplass, åpen kjøkkenløsning og stue. Alle rom med store vindusflater som gir godt med lys.
Hovedsoverom med direkte adkomst til privat baderom. 3 soverom, baderom og vaskerom. Fra vaskerommet er det utgang til tomten. Ett av soverommene er i tilknytning til stue og kan brukes som en ekstra tv-stue om ønskelig. Det er både innvendige boder og en utvendig bod. Delvis overbygd uteplass gjør at uterommet blir enda mer brukervennlig. Om man trenger skygge for sterk sol eller skjerming for regn.
Parkering
Dobbel garasje på tomten. Godt med parkeringsplasser på egen tomt.
Nyttige lenker
Nærområdet
EiendomsMegler 1 Nybygg Sør
Annonseinformasjon
| FINN-kode | 371121202 |
|---|---|
| Sist endret | 23. apr. 2025 12:16 |
| Referanse | 2608230002 |
Annonsene kan være mangelfulle i forhold til lovpålagt opplysningsplikt. Før bindende avtale inngås oppfordres interessenter til å innhente komplett informasjon fra meglerforetaket, selger eller utleier.





