Bildegalleri

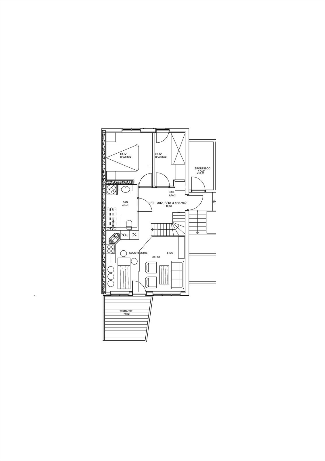
Plantegning leilighet 302
Storefjell Panorama II
Storefjell Panorama | 12 sydvendte utsiktsleiligheter med terrasser og parkering | Ski in/out og stort langrennsnett
Prisantydning5 000 000 kr
Prosjektets status
Planlegging
Gjennomført
Salgsstart
Gjennomført
Byggestart
Gjennomført
Overtakelse
Etter ønske
Nøkkelinfo
- Beliggenhet
- På fjellet
- Boligtype
- Leilighet
- Etasje
- 3
- Soverom
- 3
- Rom
- 4
- Primærrom
- 85 m²
- Bruksareal
- 85 m²
Fasiliteter
Alpinanlegg
Balkong/Terrasse
Bilvei frem
Garasje/P-plass
Lademulighet
Vaktmester-/vektertjeneste
Fiskemulighet
Innlagt strøm
Beskrivelse
LEILIGHET B 302 | 3. OG 4. ETASJE | 85 KVM BRA | ANTALL STUER 2 | ANTALL SOVEROM 3
Flott 4-roms over 3. og 4. etasje med totalt 3 soverom. Flotte, gjennomtenkte løsninger og storslagen utsikt over fjellheimen. Leiligheten har 2 soverom i 3. etasjen, samt baderom og stue med åpen kjøkkenløsning. Toppetasjen byr på en loftstue og et soverom. Leiligheten har en bod ved inngangen med strømuttak.
Denne leiligheten finnes speilvendt, leilighet 303.
NB: Knappen for å vise hele beskrivelsen har kun en visuell effekt.
NB: Knappen for å vise hele beskrivelsen har kun en visuell effekt.
Nyttige lenker
Nærområdet
Sem & Johnsen
Boliger utenom det vanlige
Annonseinformasjon
| FINN-kode | 371086002 |
|---|---|
| Sist endret | 29. aug. 2025 08:40 |
| Referanse | 20-23-1464 |
Annonsene kan være mangelfulle i forhold til lovpålagt opplysningsplikt. Før bindende avtale inngås oppfordres interessenter til å innhente komplett informasjon fra meglerforetaket, selger eller utleier.

