Bildegalleri

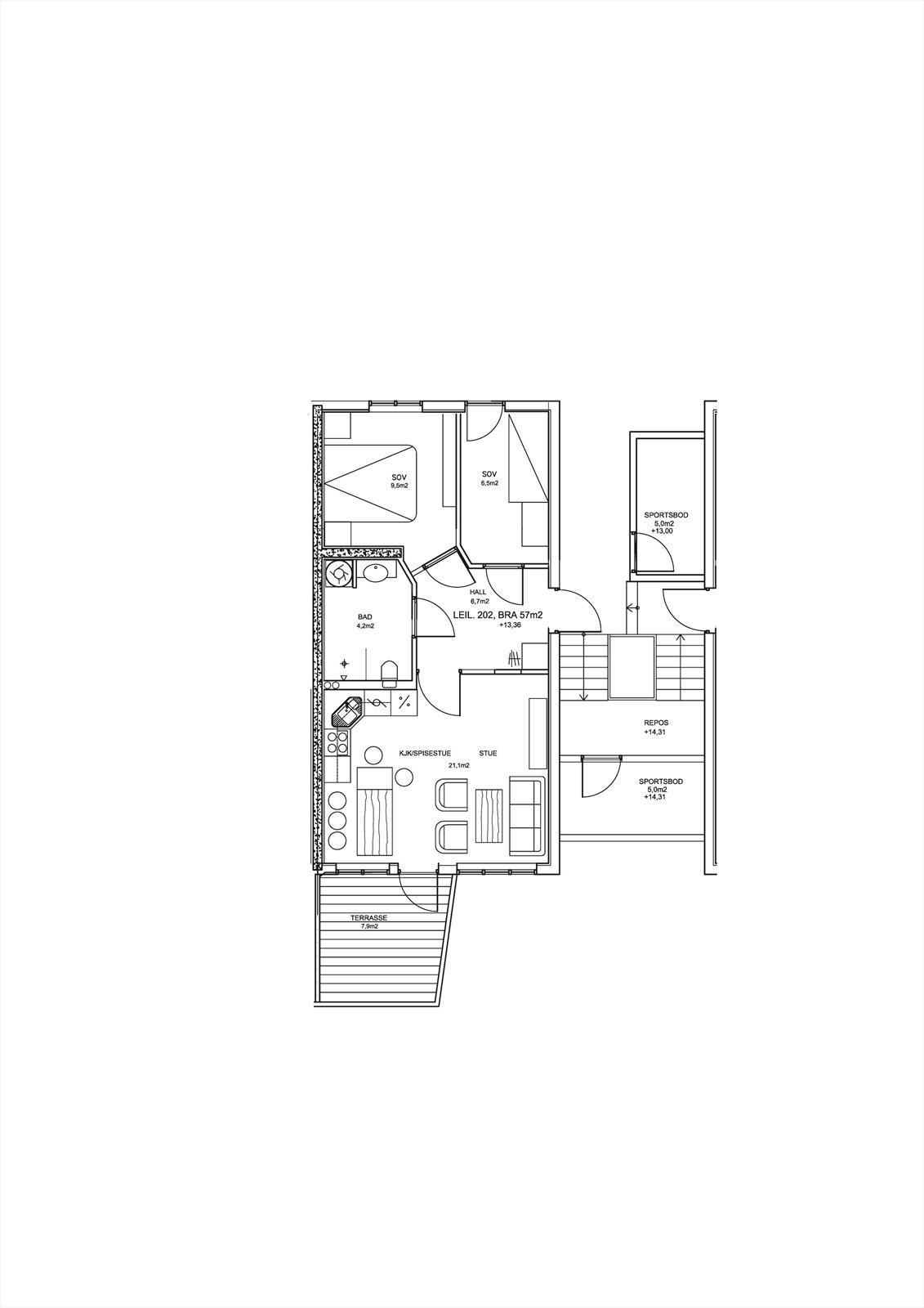
Plantegning leilighet 202
Storefjell Panorama II
Storefjell Panorama | 12 sydvendte utsiktsleiligheter med terrasser og parkering | Ski in/out og stort langrennsnett
Prisantydning3 750 000 kr
Prosjektets status
Planlegging
Gjennomført
Salgsstart
Gjennomført
Byggestart
Gjennomført
Overtakelse
Etter ønske
Nøkkelinfo
- Beliggenhet
- På fjellet
- Boligtype
- Leilighet
- Etasje
- 2
- Soverom
- 2
- Rom
- 3
- Primærrom
- 57 m²
- Bruksareal
- 57 m²
Fasiliteter
Alpinanlegg
Balkong/Terrasse
Bilvei frem
Garasje/P-plass
Lademulighet
Vaktmester-/vektertjeneste
Fiskemulighet
Innlagt strøm
Beskrivelse
LEILIGHET B 202 | 2. ETASJE | 57 KVM BRA | ANTALL SOVEROM 2
Flott 3-roms med stor solrik uteplass. Hjørnekjøkken og god plass til spisestue og sofaløsning. Romslig baderom med opplegg for vaskemaskin, servant, toalett og dusj. To gode soverom, vendt bakover med god plass til skap for oppbevaring. I tillegg har leiligheten en sportsbod med strømuttak ved inngangen.
Denne leiligheten finnes speilvendt, nummer 203.
NB: Knappen for å vise hele beskrivelsen har kun en visuell effekt.
NB: Knappen for å vise hele beskrivelsen har kun en visuell effekt.
Nyttige lenker
Nærområdet
Sem & Johnsen
Boliger utenom det vanlige
Annonseinformasjon
| FINN-kode | 371085998 |
|---|---|
| Sist endret | 29. aug. 2025 08:40 |
| Referanse | 20-23-1460 |
Annonsene kan være mangelfulle i forhold til lovpålagt opplysningsplikt. Før bindende avtale inngås oppfordres interessenter til å innhente komplett informasjon fra meglerforetaket, selger eller utleier.
