Bildegalleri

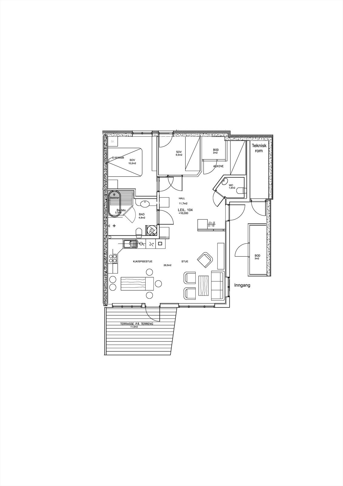
Plantegning leilighet 104
Storefjell Panorama II
Storefjell Panorama | 12 sydvendte utsiktsleiligheter med terrasser og parkering | Ski in/out og stort langrennsnett
Prosjektets status
Planlegging
Gjennomført
Salgsstart
Gjennomført
Byggestart
Gjennomført
Overtakelse
Etter ønske
Nøkkelinfo
- Beliggenhet
- På fjellet
- Boligtype
- Leilighet
- Etasje
- 1
- Soverom
- 3
- Rom
- 4
- Primærrom
- 81 m²
- Bruksareal
- 81 m²
Fasiliteter
Beskrivelse
LEILIGHET B 104 | 1. ETASJE | 81 KVM BRA | ANTALL SOVEROM 2(3)
3(4) roms beliggende i første etasje på byggets østside. Leiligheten har en stor markterrasse på ca 11,5 kvm og stor stue, spisestue. Flott hjørnekjøkken og god plass til spisestue. Vinduer mot sydøst og sikrer godt utsyn over fjellheimen og nedover mot hotellet. Stort baderom med mulighet for badekar eller badstue etter ønske (tilvalg). Separat toalett med servant i gangen. Entrè med plass til garderober og klesavheng. To flotte soverom i bakkant, pluss en sovealkove. I tillegg til dette har leiligheten en bod med strømuttak ved inngangen.
Denne leiligheten finnes speilvendt, leilighet 101.
Nyttige lenker
Nærområdet
Sem & Johnsen
Annonseinformasjon
| FINN-kode | 371085996 |
|---|---|
| Sist endret | 29. aug. 2025 08:40 |
| Referanse | 20-23-1458 |
Annonsene kan være mangelfulle i forhold til lovpålagt opplysningsplikt. Før bindende avtale inngås oppfordres interessenter til å innhente komplett informasjon fra meglerforetaket, selger eller utleier.
