Bildegalleri

Inaktiv
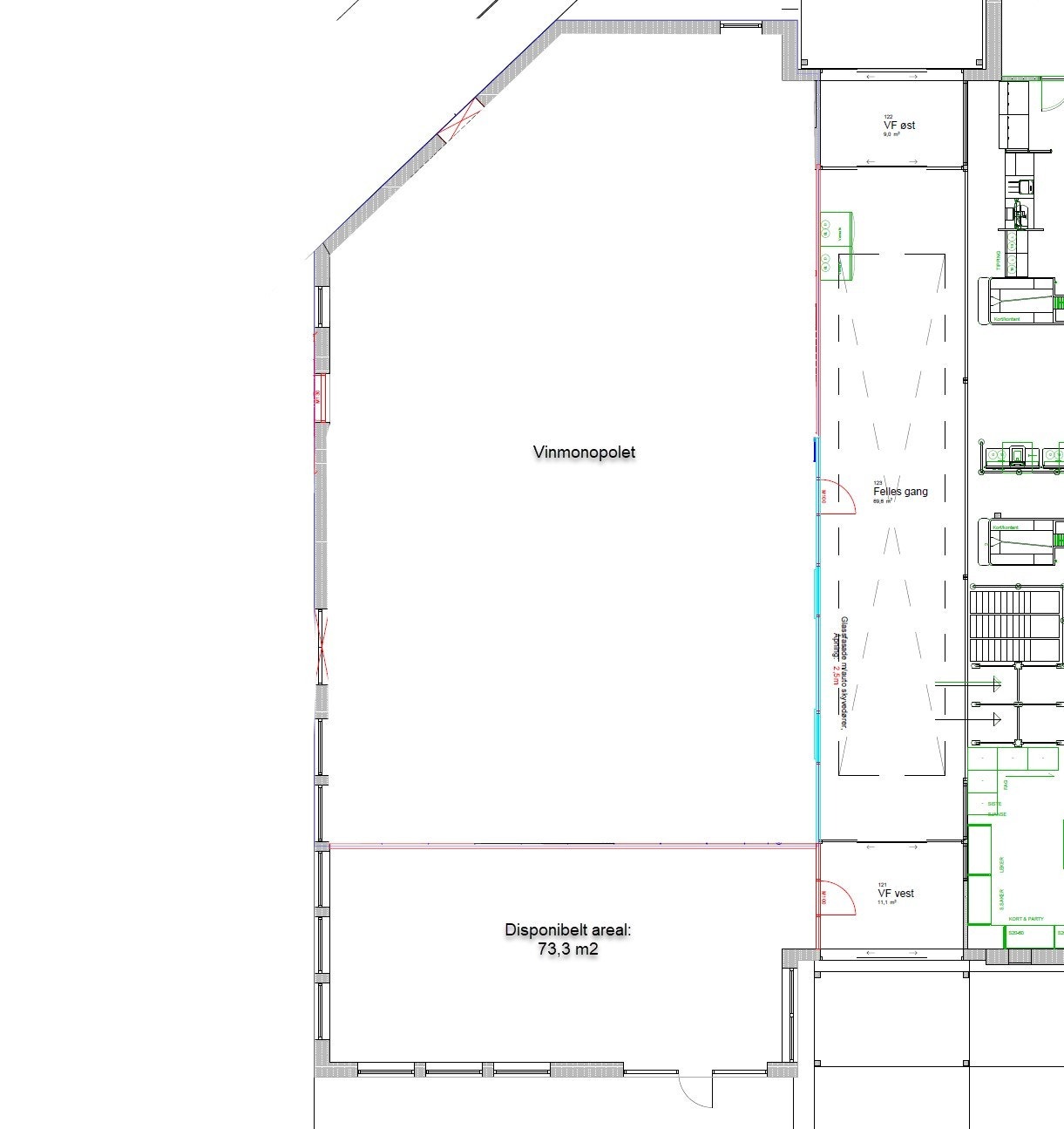
Ledig næringsareal i Buvika
Nøkkelinfo
- Areal
- 73 m²
- Bruksareal
- 73 m²
- Etasje
- 1.
Type lokale
Butikk/Handel
Serveringslokale/Kantine
Om eiendommen
Ledig areal på ca 73 kvm i Buvika med fantiastisk utsikt over Trondheimsfjorden.
Lokalet er en del av Extra-Bygget som ligger midt i sentrum av Buvika. Lokalet er deler av det som tidligere huset Lykkja Kro. Vinmonpolet åpner butikk i den største delen etter Lykkja Kro, og vil dermed være en stor bidragsyter til trafikkgenerering til eiendommen, i tillegg til Extra-butikken. Det ledige arealet vil ha felles inngang med Vinmonopolet og Extra, og vil i tillegg ha egen inngang fra utsiden, som muliggjør utvidede åpningstider og søndagsåpnet.
Leietaker må påberegne kostnader for innredning, tilpasning og ferdigstillelse av lokalet, som eventuelt kan nedbetales over husleien. Det er etablert opplegg for vann og avløp.
Det må etableres eget ansatte-toalett i lokalet.
For eventuelt ønske om etablering av servieringssted stilles det krav til ventilasjon, fettutskiller og eget kundetoalett.
Ventilasjon: Avkast fra ventilasjon er klart, gjenstår aggreat og tilførsel. Kostnader til dette må påregnes.
Fettutskiller: Fettutskiller finnes på eiendommen, men dette lokalet er ikke tilkoblet denne. Kostnader til dette må påregnes.
Kundetoalett: Dersom virksomheten ikke er ren take-away, må det også etableres et eget universelt utformet kundetoalett i leieobjektet. Kostnader til dette må påregnes.
Ledig omgående.
Ta kontakt dersom du ønsker en uforpliktende befaring av lokalet.
Lokalet er en del av Extra-Bygget som ligger midt i sentrum av Buvika. Lokalet er deler av det som tidligere huset Lykkja Kro. Vinmonpolet åpner butikk i den største delen etter Lykkja Kro, og vil dermed være en stor bidragsyter til trafikkgenerering til eiendommen, i tillegg til Extra-butikken. Det ledige arealet vil ha felles inngang med Vinmonopolet og Extra, og vil i tillegg ha egen inngang fra utsiden, som muliggjør utvidede åpningstider og søndagsåpnet.
Leietaker må påberegne kostnader for innredning, tilpasning og ferdigstillelse av lokalet, som eventuelt kan nedbetales over husleien. Det er etablert opplegg for vann og avløp.
Det må etableres eget ansatte-toalett i lokalet.
For eventuelt ønske om etablering av servieringssted stilles det krav til ventilasjon, fettutskiller og eget kundetoalett.
Ventilasjon: Avkast fra ventilasjon er klart, gjenstår aggreat og tilførsel. Kostnader til dette må påregnes.
Fettutskiller: Fettutskiller finnes på eiendommen, men dette lokalet er ikke tilkoblet denne. Kostnader til dette må påregnes.
Kundetoalett: Dersom virksomheten ikke er ren take-away, må det også etableres et eget universelt utformet kundetoalett i leieobjektet. Kostnader til dette må påregnes.
Ledig omgående.
Ta kontakt dersom du ønsker en uforpliktende befaring av lokalet.
NB: Knappen for å vise hele beskrivelsen har kun en visuell effekt.
NB: Knappen for å vise hele beskrivelsen har kun en visuell effekt.
Visning
Ta kontakt for å avtale visning.
Coop-Midt-Norge SA
Coop-Midt-Norge SA
Nærområdet
Annonsene kan være mangelfulle i forhold til lovpålagt opplysningsplikt. Før bindende avtale inngås oppfordres interessenter til å innhente komplett informasjon fra meglerforetaket, selger eller utleier.








