Bildegalleri
Inaktiv
Lyngvær Hytteområde
Lofoten-Lyngvær-Fine omgivelser. Siste tomt i feltet.
Prisantydning7 589 000 kr
- Omkostninger
- 11 514 kr
- Totalpris
- 7 600 514 kr
Nøkkelinfo
- Beliggenhet
- Ved sjøen
- Boligtype
- Andre
- Eieform
- Eier (Selveier)
- P-plasser
- 2
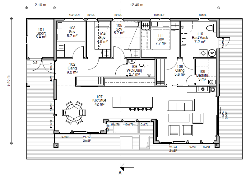
- Bruksareal
- 98 m²
- Tomteareal
- 600 m² (eiet)
- Grunnflate
- 132 m²
- Byggeår
- 2026
- Soverom
- 4
- Sengeplasser
- 10
- Energimerking
Fasiliteter
Balkong/Terrasse
Bilvei frem
Golfbane
Lademulighet
Offentlig vann/kloakk
Peis/Ildsted
Utsikt
Fiskemulighet
Innlagt strøm
Innlagt vann
Turterreng
Visning
Befaring på tomten etter avtale.
Beskaffenhet
Tomt ferdig gruset med oppstillingsplasser til 2 stk biler.
Standard
Drømmekjøkken med Simens hvitevarer.
Pipe med Termatech vedovn.
El kabel i gulv på baderommene og inngangsparti.
Fliser på gulv på baderommene/inngang.
Gips på kjøkken, stue og hall.
Ferdigmalte plater på soverom
Elbil ladder montert .
Pipe med Termatech vedovn.
El kabel i gulv på baderommene og inngangsparti.
Fliser på gulv på baderommene/inngang.
Gips på kjøkken, stue og hall.
Ferdigmalte plater på soverom
Elbil ladder montert .
Vesentlige opplysninger
Lyngvær Hyttefelt er et veldig populært hytteområde i Lofoten. Snart helt ferdig utbygget felt.
Kun 1 tomt igjen... Godkjent for utleie muligheter , som genererer gode leieinntekter for eier hvis ønskelig.
Pris for nøkkelferdig hytte og inkludert tomt 1865-1/102.
Rajo Eiendom og Bolig AS er tomte eier.
JMT Bygg og Anlegg AS fører opp bygningen.
Kun 1 tomt igjen... Godkjent for utleie muligheter , som genererer gode leieinntekter for eier hvis ønskelig.
Pris for nøkkelferdig hytte og inkludert tomt 1865-1/102.
Rajo Eiendom og Bolig AS er tomte eier.
JMT Bygg og Anlegg AS fører opp bygningen.
NB: Knappen for å vise hele beskrivelsen har kun en visuell effekt.
NB: Knappen for å vise hele beskrivelsen har kun en visuell effekt.
Ta kontakt med selger for komplett informasjon
Nærområdet
Annonsene kan være mangelfulle i forhold til lovpålagt opplysningsplikt. Før bindende avtale inngås oppfordres interessenter til å innhente komplett informasjon fra meglerforetaket, selger eller utleier.







