Bildegalleri

Dette moderne enderekkehuset fra 2024 skiller seg ut med sin fantastiske utsikt, romslige takterrasse og egen hybeldel. Med høy kvalitet gjennom hele nybygget, tilbyr huset en praktisk og fleksibel planløsning som passer perfekt for familier.
Solgt
NYDALEN/ GREFSEN
Nyoppført og attraktivt enderekkehus over tre plan m/hybeldel - Fjordutsikt - Solrike uteplasser - Garasjeplass m/el
Prisantydning14 250 000 kr
Nøkkelinfo
- Boligtype
- Rekkehus
- Eieform
- Eier (Selveier)
- Soverom
- 3
- Internt bruksareal
- 153 m² (BRA-i)
- Bruksareal
- 159 m²
- Eksternt bruksareal
- 6 m² (BRA-e)
- Balkong/Terrasse
- 24 m² (TBA)
- Byggeår
- 2024
- Energimerking
- B - Oransje
- Rom
- 5
- Tomteareal
- 2 524 m² (eiet)
Fasiliteter
Balkong/Terrasse
Barnevennlig
Bredbåndstilknytning
Garasje/P-plass
Kjæledyr tillatt
Kabel-TV
Offentlig vann/kloakk
Parkett
Peis/Ildsted
Rolig
Sentralt
Utsikt
Turterreng
Lademulighet
Balansert ventilasjon
Om boligen
Dette moderne enderekkehuset fra 2024 skiller seg ut med sin fantastiske utsikt, romslige takterrasse og egen hybeldel. Med høy kvalitet gjennom hele nybygget, tilbyr huset en praktisk og fleksibel planløsning som passer perfekt for familier. Beliggenheten gir enkel tilgang til offentlig transport, skoler, barnehager og et variert utvalg av servicetilbud.
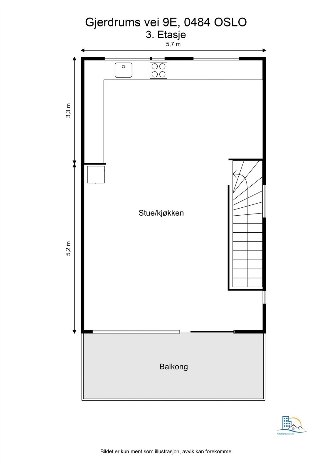
- Boligen går over 3 plan og ligger på enden med vinduer på tre sider
- Tre soverom og to stuer/(hybeldel), tre bad og eget vaskerom
- Takterrasse på ca. 10 kvm med svært flott utsikt mot Oslofjorden
- Fin sitteplass utenfor entréen i 1.etasje, samt balkong i 2.etasje
- Garasjeplass m/el
- Barnevennlige uteområder og sosiale soner
- Hybel med solide leieinntekter på kr. 12.000,- pr. mnd.
- Kort og trygg vei til barne- og ungdomsskole
- Boligen går over 3 plan og ligger på enden med vinduer på tre sider
- Tre soverom og to stuer/(hybeldel), tre bad og eget vaskerom
- Takterrasse på ca. 10 kvm med svært flott utsikt mot Oslofjorden
- Fin sitteplass utenfor entréen i 1.etasje, samt balkong i 2.etasje
- Garasjeplass m/el
- Barnevennlige uteområder og sosiale soner
- Hybel med solide leieinntekter på kr. 12.000,- pr. mnd.
- Kort og trygg vei til barne- og ungdomsskole
NB: Knappen for å vise hele beskrivelsen har kun en visuell effekt.
NB: Knappen for å vise hele beskrivelsen har kun en visuell effekt.
Salgsoppgaven beskriver vesentlig og lovpålagt informasjon om eiendommen
Se komplett salgsoppgaveNyttige lenker
Nærområdet
Nordvik Nydalen
Annonseinformasjon
| FINN-kode | 370366302 |
|---|---|
| Sist endret | 20. jan. 2025 12:04 |
| Referanse | 20-0318/24 |
Annonsene kan være mangelfulle i forhold til lovpålagt opplysningsplikt. Før bindende avtale inngås oppfordres interessenter til å innhente komplett informasjon fra meglerforetaket, selger eller utleier.




































































