Bildegalleri

DNB Eiendom ved Isabel Limi har gleden av å presentere Skogbrynet 9C!
Solgt
BESTUM/FURULUND
Innholdsrikt rekkehus over 3 plan m/flere uteplasser | Oppussingsobjekt | Carport m/lader| Barnevennlig og trafikkstille
Prisantydning8 900 000 kr
Nøkkelinfo
- Boligtype
- Rekkehus
- Eieform
- Eier (Selveier)
- Soverom
- 4
- Internt bruksareal
- 186 m² (BRA-i)
- Bruksareal
- 186 m²
- Balkong/Terrasse
- 25 m² (TBA)
- Etasje
- 3
- Byggeår
- 1976
- Energimerking
- F - Rød
- Rom
- 6
- Tomteareal
- 131 m² (eiet)
Fasiliteter
Balkong/Terrasse
Barnevennlig
Bredbåndstilknytning
Hage
Kjæledyr tillatt
Kabel-TV
Offentlig vann/kloakk
Parkett
Peis/Ildsted
Rolig
Sentralt
Lademulighet
Om boligen
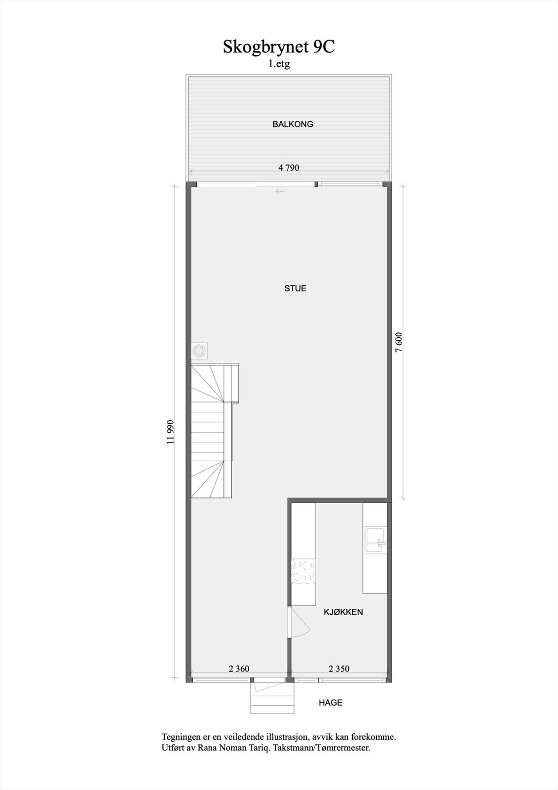
Velkommen til Skogbrynet 9C! Her får du en innholdsrik bolig over 3 plan samt kaldloft. Flere uteområder inkl. hage på begge sider. Boligen har en eldre standard og oppussing må påregnes.
Du bor sentralt og barnevennlig, like ved trikk, dagligvare og idylliske Vækerø park med badestrand. Fra Skogbrynet er veien kort til skoler, barnehager, offentlig kommunikasjon, samt et rikt utvalg av fasiliteter og servicetilbud. Umiddelbar nærhet til lekeplass, fotballbane, skøytebane, tennisanlegg og badeplass. Fellesarealet har tilnærmet bilfrie internveier.
Verdt å merke seg:
- Boligen går over tre plan + uinnredet loft
- Innholdsrik og god planløsning
- 4 soverom
- Flere fine uteplasser
- Gode solforhold
- Biloppstillingsplass i carport
- Meget barnevennlig
- Oppussingsbehov med mye potensial
Du bor sentralt og barnevennlig, like ved trikk, dagligvare og idylliske Vækerø park med badestrand. Fra Skogbrynet er veien kort til skoler, barnehager, offentlig kommunikasjon, samt et rikt utvalg av fasiliteter og servicetilbud. Umiddelbar nærhet til lekeplass, fotballbane, skøytebane, tennisanlegg og badeplass. Fellesarealet har tilnærmet bilfrie internveier.
Verdt å merke seg:
- Boligen går over tre plan + uinnredet loft
- Innholdsrik og god planløsning
- 4 soverom
- Flere fine uteplasser
- Gode solforhold
- Biloppstillingsplass i carport
- Meget barnevennlig
- Oppussingsbehov med mye potensial
NB: Knappen for å vise hele beskrivelsen har kun en visuell effekt.
NB: Knappen for å vise hele beskrivelsen har kun en visuell effekt.
Salgsoppgaven beskriver vesentlig og lovpålagt informasjon om eiendommen
Se komplett salgsoppgaveNyttige lenker
Nærområdet
DNB Eiendom AS
Fra hjem til hjem
Prisstatistikk
Skogbrynet 9C
8 407 klikk
på annonsen
47 849 kr
prisantydning per kvadratmeter
Prisfordeling
Pris per m² ligger 33 151 kr under snittet for rekkehus i Ullern.
Grafen viser antall rekkehus solgt i Ullern siste året fordelt på pris per m² - totalt 55 rekkehus
Antall boliger
Kvadratmeterpris tilsvarer prisantydning pluss fellesgjeld per kvadratmeter (p-rom eller BRA-i). Prisene i grafen er avrundet til nærmeste 1000 kr.
Annonseinformasjon
| FINN-kode | 370243106 |
|---|---|
| Sist endret | 10. nov. 2024 10:04 |
| Referanse | 416240061 |
Annonsene kan være mangelfulle i forhold til lovpålagt opplysningsplikt. Før bindende avtale inngås oppfordres interessenter til å innhente komplett informasjon fra meglerforetaket, selger eller utleier.




































