Bildegalleri

DEG16 ligger sentralt i Bjørvika og grenser til Stasjonsallmenningen
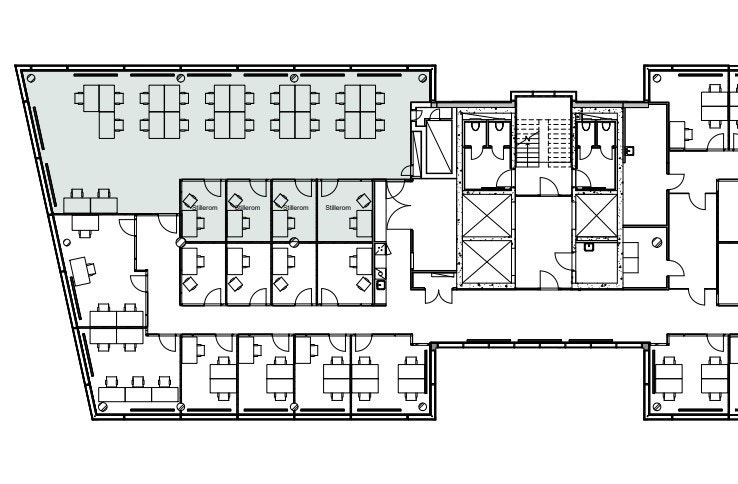
Større kontor ledig i kontorhotell midt i Barcode rekken - 15-20 personer
Nøkkelinfo
- Areal
- 175 m²
- Renovert år
- 2021
- Energimerking
- B
- Overtakelse
- 15.09.2024
Type lokale
Fasiliteter
Om eiendommen
DEG16 er et fleksibelt og sentralt kontorhotell midt i Barcode-rekken.
Her får vi ledig et større areal på ca 175 kvm som egner seg godt for ca 20 ansatte i åpent landskap. I tillegg inneholder arealet fire stillerom/teamsrom med mulighet for å utvide ett eller flere til større møterom.
Kontorene ligger i byggets 7. etg. og er ferdig møblert. Alt er tilrettelagt for at du kan være effektiv i din arbeidsdag. I etasjen er det en betjent resepsjon hvor Braathen Eiendoms ansatte sørger for god service til kontorhotellets kunder, samt tar i mot besøkende. Det tilbys 9 møterom i tilknytning til FLYT som kan leies etter behov. I tillegg har bygget et nytt møtesenter i 2. og 3. etasje hvor man kan leie oppgraderte møterom på timesbasis.
DEG16 er et flerbrukerbygg med en rekke fasiliteter som betjent resepsjon, restaurant, kaffebar, auditorium, møtesenter, dusj/garderober, sykkelparkering og en av byens flotteste takterrasser – Himmer’n. Restauranten og kaffebaren drives av Dugurd, som tilbyr mat i takt med tiden gjennom rene, naturlige og gode råvarer.
FLYT kontor er en av flere tjenester som leveres fra Braathen Eiendom, og driftes og leveres med personlig service fra Braathens egne ansatte.En annen standard
Med en eiendomsportefølje bestående av kun fem store profilbygg i Oslo, deriblant tre av høyhusene i Barcode i Bjørvika, kan Braathen Eiendom tillate seg et fokus på miljømessig drift og foredling av egne eiendommer som få andre eiendomsbesittere kan unne seg. Vårt mål er å gi kunden flyt.
Beliggenhet
Her ligger det sentrale byrommet i Bjørvika, en bred allmenning som fylles med handel, restauranter og lekeplasser på gateplan, og strekker seg helt ned til sjøfronten.
Kort avstand til både buss, trikk, bane og tog.
Visning
Ta kontakt for å avtale visning.Nyttige lenker
Braathen Eiendom Flyt AS
Nærområdet
Annonseinformasjon
| FINN-kode | 370222552 |
|---|---|
| Sist endret | 11. sep. 2024 11:48 |
| Referanse | FLYT DEG16 |
Annonsene kan være mangelfulle i forhold til lovpålagt opplysningsplikt. Før bindende avtale inngås oppfordres interessenter til å innhente komplett informasjon fra meglerforetaket, selger eller utleier.



















