Bildegalleri

God stue/kjøkken i åpen løsning
Inaktiv
Lettstelt leilighet perfekt for førstegangskjøp eller utleie! 2 soverom - parkering - koselig hageområde - sentralt
Prisantydning1 550 000 kr
Nøkkelinfo
- Boligtype
- Leilighet
- Eieform
- Eier (Selveier)
- Soverom
- 2
- Internt bruksareal
- 55 m² (BRA-i)
- Bruksareal
- 55 m²
- Etasje
- -1
- Byggeår
- 1988
- Energimerking
- E - Oransje
- Rom
- 3
- Tomteareal
- 377 m² (eiet)
Fasiliteter
Balkong/Terrasse
Barnevennlig
Garasje/P-plass
Hage
Kjæledyr tillatt
Offentlig vann/kloakk
Rolig
Sentralt
Turterreng
Visning
For å delta på visning, ber vi om at du melder deg på. Da sikrer vi at du får nødvendig informasjon og at det er satt av tilstrekkelig med tid. Kontakt megler dersom annet tidspunkt ønskes. Husk å lese salgsoppgaven før visningen, så du stiller forberedt. NB. Visning utgår dersom det ikke er noen påmeldte.
Ønsker du kun å bli holdt orientert, kan du fra eiendommens hjemmeside få varsel om solgtpris, eller kontakte megler. Det blir kun holdt fellesvisninger av leiligheten.
VisningspåmeldingOm boligen
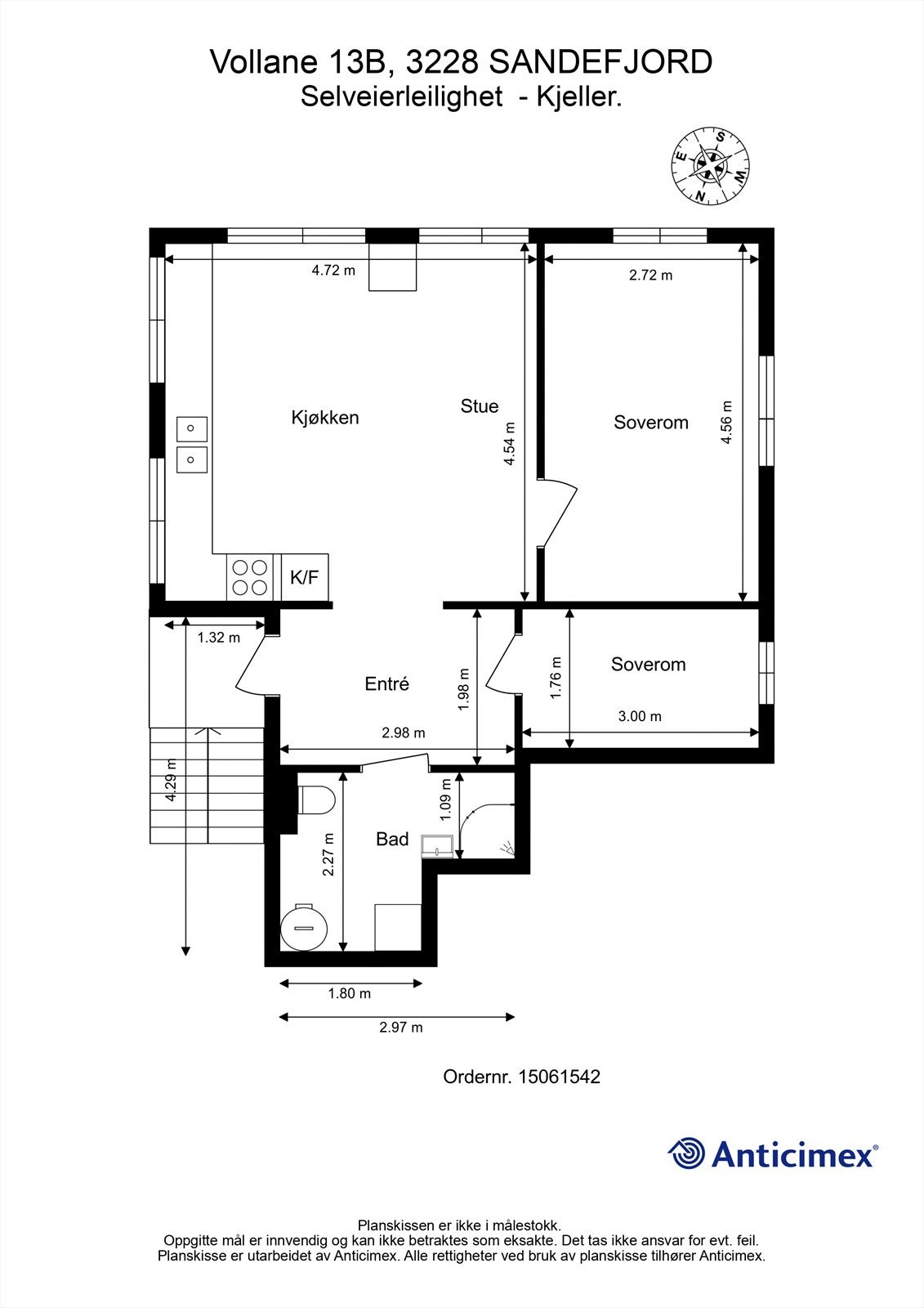
Leiligheten er innredet med 2 soverom, bad og stue/kjøkken i åpen løsning.
På kjøkkenet er det rikelig med skap og benkeplass, og i stuen er det flere soner med gode møbleringsmuligheter og plass til et stort spisebord slik at familie og venner kan samles til hyggelige sammenkomster. Det er også et flott uteområde med plass til sittegrupper, her kan ettermiddags solen nytes i fine og landlige omgivelser. I nærheten finnes det flere lekeplasser og turområder samt kort vei til Sandefjord sentrum, her er det ingen problem å la bilen stå da det også er gode kollektiv forbindelser.
Velkommen til visning og velkommen hjem!
På kjøkkenet er det rikelig med skap og benkeplass, og i stuen er det flere soner med gode møbleringsmuligheter og plass til et stort spisebord slik at familie og venner kan samles til hyggelige sammenkomster. Det er også et flott uteområde med plass til sittegrupper, her kan ettermiddags solen nytes i fine og landlige omgivelser. I nærheten finnes det flere lekeplasser og turområder samt kort vei til Sandefjord sentrum, her er det ingen problem å la bilen stå da det også er gode kollektiv forbindelser.
Velkommen til visning og velkommen hjem!
NB: Knappen for å vise hele beskrivelsen har kun en visuell effekt.
NB: Knappen for å vise hele beskrivelsen har kun en visuell effekt.
Salgsoppgaven beskriver vesentlig og lovpålagt informasjon om eiendommen
Se komplett salgsoppgaveNyttige lenker
Nærområdet
Krogsveen Sandefjord
Verdien av en god megler.
Annonseinformasjon
| FINN-kode | 370190673 |
|---|---|
| Sist endret | 06. nov. 2025 12:57 |
| Referanse | KR22.24297 |
Annonsene kan være mangelfulle i forhold til lovpålagt opplysningsplikt. Før bindende avtale inngås oppfordres interessenter til å innhente komplett informasjon fra meglerforetaket, selger eller utleier.


























