Bildegalleri

Evjenvegen 67B
Gjelder nordligste rekkehus - Prosjektert rekkehus med utleiemulighet og 3 soverom i hoveddel.
Prosjektets status
Planlegging
2023
Salgsstart
2024
Byggestart
2025
Overtakelse
2026
Nøkkelinfo
- Boligtype
- Rekkehus
- Soverom
- 3
- Rom
- 5
- Internt bruksareal
- 146 m² (BRA-i)
- Bruksareal
- 146 m²
Beskrivelse
Oppvarming
Gulvvarme i våtrom og ellers elektrisk oppvarming.
Beliggenhet
Sentralt beliggende på Tomasjord på fastlandssiden, kort kjøreavstand fra Tromsø sentrum. Utsikt mot Tromsøya og Tromsøysundet. Svært gode solforhold med sol fra morgen til natt sommerstid.
Gangavstand til dagligvarebutikker som Rema 1000 og Eurospar. Treningssenter, frisør og pizzarestaurant er også innenfor gangavstand. Kort vei til bussholdeplass.
Barnehage like i nærheten. ca. 1 km til Lunheim Barneskole, og 1 km til ungdomsskole og videregående skole i Tromsdalen.
Adkomst
Adkomst fra offentlig veg via privat innkjørsel.
Se vedlagt kart i salgsoppgaven for detaljer.
Parkeringsforhold
Lading av el-bil/hybrid:
Megler har ikke undersøkt om det er tilrettelagt for lading av el-biler og hybrider i borettslaget/sameiet. Hvorvidt det er mulighet for slike anlegg eller installasjoner må kjøper selv undersøke.
Adgang til utleie
Det er kun en bruksenhet i boligen.
Utleie av seksjon kan være begrenset.
Korttidsutleie: Det følger av eierseksjonsloven § 24 at korttidsutleie av hele boligseksjonen i mer enn 90 døgn årlig ikke er tillatt. Bestemmelsen gjelder ikke for fritidsboliger. Med korttidsutleie menes utleie inntil 30 døgn sammenhengende. Grensen på 90 døgn kan fravikes i vedtektene og kan i så fall settes til mellom 60 og 120 døgn. Slik beslutning krever et flertall på minst to tredjedeler av de avgitte stemmene på årsmøtet.
Beskrivelse (type bolig)
Rekkehus
Areal / Arealspesifikasjon / Arealbetegnelse
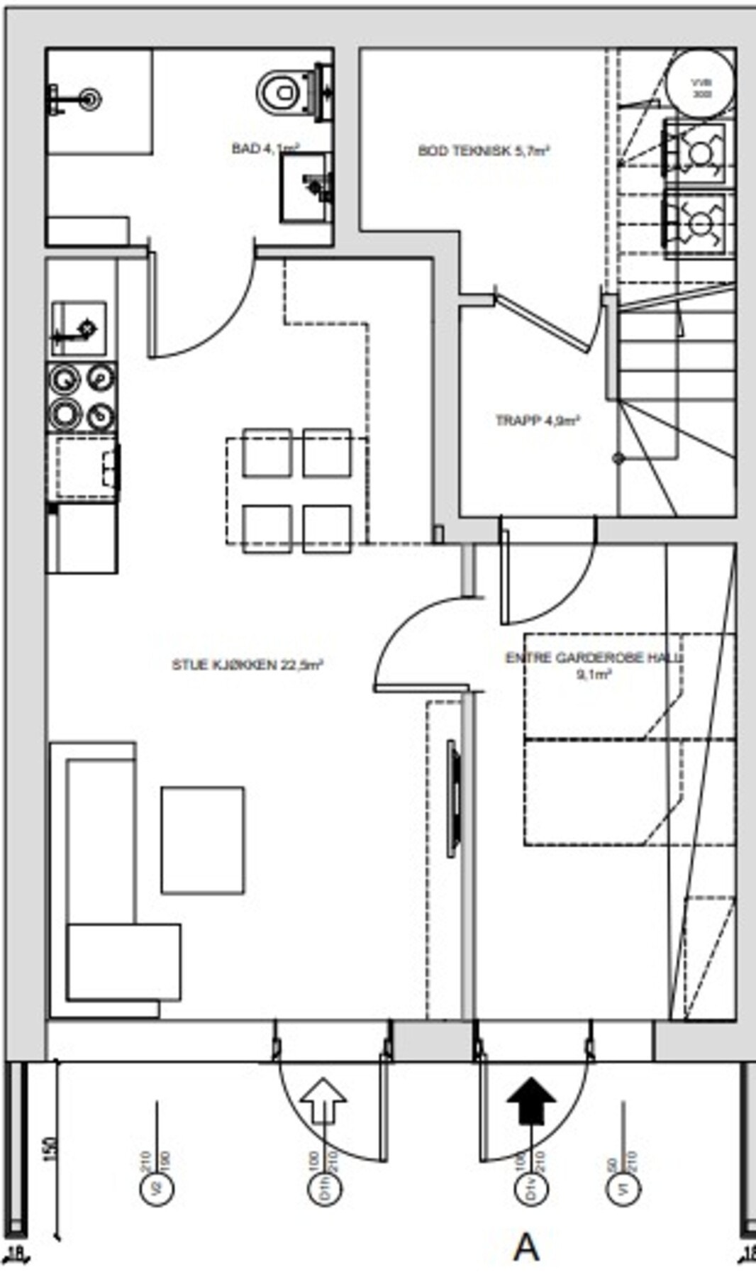
Bruksareal per etasje: Plan 0: 48 kvm: Entré, hybel, bad, gang og bod.
Plan 1: 48 kvm: 3 soverom, bad og gang.
Plan 2: 48 kvm: Stue og kjøkken.
Betalingsbetingelser
Full kjøpesum og omkostninger innbetales 2 dager før overtakelsesdato. For tilvalg og endringsbestillinger vil selger fakturere dette fortløpende ved bestilling.
Det betales ingen forskudd før overlevering av leilighetene. Kjøper må stille med finansieringsbevis maksimalt 14 dager etter kontraktsinngåelse. Finansieringsbevis fås av megler. Finansieringsbevisets gyldighet må vare frem til overtakelse. Hvis nåværende bolig skal benyttes helt eller delvis til finansiering av kjøpet kan denne stilles som sikkerhet etter meglertakst utført av EiendomsMegler1.
Ved evt. forsinkelse av innbetaling gjelder lov om forsinkelsesrenter av 17.12.1976 nr. 100. Forsinkes finansieringsbeviset med mer enn 21 dager, har selger rett til å heve kjøpet og foreta dekningssalg. Selger vil holde kjøper ansvarlig for selgers eventuelle økonomiske tap som følge av kjøpers mislighold.
Overtakelse
Planlagt ferdigstillelse ca. kvartal 4, 2025.
Selger forplikter seg til å holde rimelig fremdrift uten unødvendige avbrudd jfr Bustadoppføringslova §10. Det tas forbehold om at det kan oppstå forhold utenfor selgers kontroll som forsinker prosjektet og hindrer normal fremdrift.
Videre vil selger varsle kjøper med 14 dagers varsel om overtakelsesbefaring. Etter denne er avholdt vil selger varsle om overtakelsesforretning med 7 dagers varsel jfr. Bustadoppføringslova §14 og §15.
Det gjøres oppmerksom på at overtakelse av boligen ikke kan nektes av kjøper selv om utomhusarealer og eventuelt ytre kledning m.m. ikke er ferdigstilt. Forutsetningen er imidlertid at kommunen har utstedt midlertidig brukstillatelse for boligen. Uferdig arbeid anmerkes i overtakelsesprotokollen på overtakelsesbefaringen. Alle boliger overtas i ryddig og rengjort stand (byggvask).
Ved overtakelse mot midlertidig brukstillatelse, er selger forpliktet til å fremskaffe ferdigattest innen rimelig tid og senest før midlertidig brukstillatelse er utløpt på tid. Ved slik overtakelse er eiendomsmegler forpliktet til å gjøre kjøper oppmerksom på at det bør etableres tilstrekkelig sikkerhet for kjøpers krav. Det anbefales at kjøper holder tilbake en del av kjøpesummen som tilsvarer verdien av de gjenstående arbeidene, hensyntatt hva det vil koste å få arbeidene ferdigstilt av andre. Alternativt kan også selger stille nødvendig garanti for beløpet.
Overtakelse av felles- og utearealer skal gjennomføres av selger og kjøper/sameiets styre, og
overtakelse av boligen kan skje uavhengig av dette. Overtakelse kan ikke nektes av kjøper selv om
utomhusarealer ikke er ferdigstilt. Såfremt deler av utvendige arbeider ikke er ferdigstilt ved overtakelsen skal manglende ferdigstilte arbeider anmerkes i overtakelsesprotokollen. Kjøper kan utøve tilbakehold av nødvendig beløp på meglers klientkonto som sikkerhet for manglene. Tilbakeholdt beløp må stå i samsvar med manglene. Alternativt kan selger stille garanti for ferdigstillelsen. Ovennevnte oppfordring om tilbakehold gjelder også for de forhold
som eventuelt gjenstår for å få ferdigattest.
Nyttige lenker
Nærområdet
EiendomsMegler 1 Strandtorget
Annonseinformasjon
| FINN-kode | 370183086 |
|---|---|
| Sist endret | 14. nov. 2025 16:31 |
| Referanse | 182410003 |
Annonsene kan være mangelfulle i forhold til lovpålagt opplysningsplikt. Før bindende avtale inngås oppfordres interessenter til å innhente komplett informasjon fra meglerforetaket, selger eller utleier.


