Bildegalleri

Plantegning 1. etasje
Ullernåsen / Røa - Myrhaugen 24 - Crux Arkitektur
Myrhaugen 24A
Prosjektets status
Planlegging
-
Salgsstart
- August/september 2024
Byggestart
- Estimert 4. kvartal 2024.
Overtakelse
- Estimert 4. kvartal 2026.
Nøkkelinfo
- Boligtype
- Enebolig
- Soverom
- 4
- Rom
- 6
- Internt bruksareal
- 200 m² (BRA-i)
- Bruksareal
- 235 m²
- Eksternt bruksareal
- 35 m² (BRA-e)
- Balkong/Terrasse
- 21 m² (TBA)
Beskrivelse
Ansvarlig megler
Daglig leder/Fagansvarlig/Eiendomsmegler/Partner Jens Christian Killengreen
Arealer
Totalt BRA 235 kvm består av:
- BRA-i (internt bruksareal): 200,40 kvm
- BRA-b (innglasset balkong):
- BRA-e (eksternt bruksareal): 35,40 kvm
I tillegg kommer TBA (terrasse-/balkongareal): 21,40 kvm
Vedlagte plantegninger er ikke målbare. Eventuelle betegnelser på rom er angitt ut fra faktisk bruk, uavhengig av hva som er godkjent hos bygningsmyndighetene.
Det gjøres oppmerksom på at boenhetens totale BRA er større enn summen av arealene fra hvert enkelt rom. Dette skyldes at boenhetens totale BRA også inneholder/medtar arealer for innvendige vegger. Se prislisten for detaljert oversikt over de enkelte boligene.
Arealer
Bruksareal: 235,80 kvm, BRA-i: 200,40 kvm , BRA-e: 35,40 kvm , TBA: 21,40 kvm
Beskrivelse
I Myrhaugen 24 har Crux Arkitektur AS tegnet tre spennende eneboliger.
Boligene ligger på en delvis skrånende tomt, på et høydedrag, like ved Ullerntoppen. Felles for husene er at de preges av store vindusflater og de har en moderne arkitektur med fokus på flott design og gode planløsninger. Boligene er store (fra ca. 202 -236 kvm BRA), og de har tilgang til store takterrasser i sydvestvendt retning.
* I tillegg er den ene boligen er innredet med hybel (Hus B).
Boligene skiller seg ut fra andre nyere boliger ved at de har store etasjeplan. Etasjene har et grunnplan på i underkant av 70 kvm. pr. plan. Dette skaper gode og åpne planløsninger og fremstår som svært attraktivt i dagens marked.
Kort fortalt:
Tre flotte arkitekttegnede eneboliger
Tegnet av anerkjente Crux Arkitektur AS
Gode planløsninger og etasjer
Store taktakterrasser
Hovedsov med bad en suite og walk-in-closet
To garasjeplasser til hver bolig
Fire soverom
Tre baderom
To stuer
Høyt og fritt beliggende
Gode solforhold
Store og åpne vindusflater
Antatt ferdigstillelse 4 kvartal 2026
1-stavs eikeparkett
Lekre fliser fra Fagflis
Tilvalgsmuligheter for personlig tilpasning
Kort avstand til Røa med tilgang til alt av fasiliteter
Lavt innskudd ved kontraktsinngåelse. Konferer megler.
Garasje/Parkering
Det medfølger 2 garasjeplasser til hver av boligene. For hus A og C er det garasjeheis, men hus B har dobbeltgarasje.
Areal
Fra 202 til 236 kvm.
Antall soverom
4
Innhold
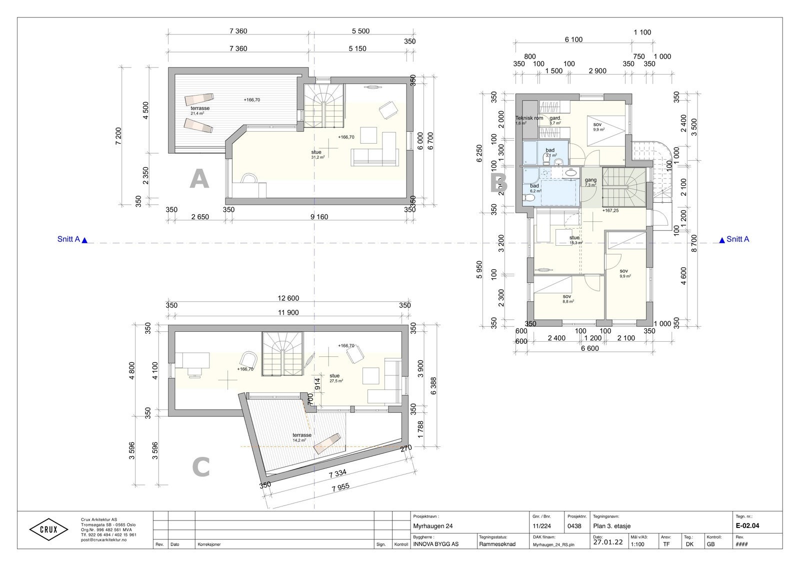
Hus A - snr. 1:
1.etasje
BRA-i: 50,5 kvm.
BRA: 68,2 kvm.
Entré/gang, separat toalett, trappeløp, stor stue med åpen kjøkkenløsning. Garasje med heis ned til underetasje.
2.etasje
BRA-i: 68,2 kvm.
BRA: 68,2 kvm.
Trappeløp, gang 2 baderom og 4 soverom, hvorav hovedsoverommet er innredet med garderobe og bad en suite.
3.etasje
BRA-i: 31,2 kvm.
BRA: 31,2 kvm.
TBA: 21,4 kvm.
Trappeløp, stor vestvendt stue med utgang til stor sydvestvendt takterrasse på ca. 21,4 kvm.
Kjelleretasje
BRA-i: 50,5 kvm.
BRA: 68,2 kvm.
Trappeløp, stor gang, stort vaskerom og bod. Garasjeheis.
Totalt Areal:
BRA: 235,8 kvm.
BRA-i: 200,4 kvm.
BRA-e: 0 kvm.
TBA: 21,4 kvm.
Hver bolig har hage som følger eksklusivt med eiendommen. Se vedlagte utenomhusplan.
Hus B - snr. 2:
1.etasje
BRA-i: 33,6 kvm.
BRA: 33,9 kvm.
Gang, trappeløp og dobbelt garasje. Mulighet for etablering av hybel.
Hybel med egen inngang og adkomst fra gang i boligens hoveddel. Inneholder: Stue, bod og baderom. Hybelen vil bli ca. 20,2 kvm og estimert leieinntekt er kr 11 000 ,- pr. måned.
2.etasje
BRA-i: 67,3 kvm.
BRA: 67,3 kvm.
Trappeløp, kontor, separat toallett, bod og stor stue med åpen kjøkkenløsning og og plass til spiseplass.
3.etasje
BRA-i: 67,3 kvm.
BRA: 67,3 kvm.
Trappeløp, gang 2 baderom og 3 soverom (evt. 4 soverom) og stue. Hovedsoverommet er innredet med garderobe og bad en suite.
Takplan
TBA: 39,2 kvm.
Enorm sydvestvendt takterrasse på 39,2 kvm. Adkomst via trapp fra stue i etasjen under.
Totalt Areal:
BRA: 202,1 kvm.
BRA-i: 168,2 kvm.
BRA-e: 0 kvm.
TBA: 39,2 kvm.
Hver bolig har hage som følger eksklusivt med eiendommen. Se vedlagte utenomhusplan.
Hus C - snr. 3:
1.etasje
BRA-i: 52,6 kvm.
BRA: 68,8 kvm.
Gang og stor stue med delvis åpen kjøkkenløsning og god plass til spiseplass. Garasje med heis ned til underetasje.
2.etasje
BRA-i: 68,8 kvm.
BRA: 68,8 kvm.
Trappeløp, gang 2 baderom og 4 soverom, hvorav hovedsoverommet er innredet med garderobe og bad en suite.
3.etasje
BRA-i: 27,5 kvm.
BRA: 27,5 kvm.
TBA:14,2 kvm.
Trappeløp, stor vestvendt stue med utgang til stor sydvestvendt takterrasse på ca. 14,2 kvm.
Underetasje
BRA-i: 52,6 kvm.
BRA: 68,8 kvm.
Trappeløp, stor gang, vaskerom, teknisk rom og bod. Garasjeheis.
Totalt Areal:
BRA: 233,9 kvm.
BRA-i: 201,5 kvm.
BRA-e: 0 kvm.
TBA: 14,2 kvm.
Hver bolig har hage som følger eksklusivt med eiendommen. Se vedlagte utenomhusplan.
Beliggenhet
Eiendommen ligger i et rolig, trygt og meget barnevennlig boligområde på Ullerntoppen like ved Røa. Boligene vil ligge på en høyde og de vil få flott utsikt mot Bærum og optimale solforhold.
I nærområdet er det lekeplasser jevnt fordelt utover, og like i nærheten finnes det et stort
friområde med gresslette, fotball- og basketballbane. Idylliske Lysakerelven renner like ved, og giren god mulighet til rekreasjon og trening. Det er tilrettelagte turveier/stier langs begge sider av elven, og flere badeplasser og historiske punkter underveis. Turene langs elven kan varieres i stor grad da en kan gå nordover mot Bogstad og sørover mot Lysaker. Ved utløpet til fjorden finner du Lysaker brygge med flott utsyn over Oslofjorden. Like ved ligger Sollerudstranda og Vækerø park, en engelsk romantisk landskapspark fra 1600-tallet, med grønne og flott beplantede lunger, gressplen og stier, samt benker, brygger og mulighet for bading. Lysakerelven kan også følges opp til Bogstadvannet for et besøk på bl.a. Bogstad Gård. Oslo Golfklubb på Bogstad kan tilby en av Europas beste golfbaner. I nærområdet finnes også Mærradalen, med fine turveier.
Røa Allianselag tilby fotball, allidrett, bandy, langrenn, sykkel, triatlon og trim, mens Ullern
Idrettsforening tilby bandy, basketball, fotball, håndball og gymnastikk. En rekke treningssenter ligger godt innen rekkevidde. Røa bad er et lekkert anlegg med bl.a. 25-meter basseng, spa/terapibasseng, boblebad, barnebasseng, sklier og klatrevegg m.m. Ullern Tennisklubb ligger idyllisk til på Blokkajordet ved Ullern Kirke og har et høyst moderne tennisanlegg til helårsbruk.
Området er svært attraktivt for alle generasjoner, med Rema 1000, både i Aslakveien og ved Lysejordet, Coop Extra ved Ullernbanen og Kiwi ved Ullern allé og på Røa. Lysejordet barneskole, flere barnehager og Lysejordet busstopp like i nærheten. Det er også kort vei til Bjørnsletta ungdomsskole, Persbråten videregående skole og Røa T-banestasjon.
Fra boligene er det kun ca. 400 meter til buss i Vækerøveien med buss nr. 32 - til sentrum på ca. 20 min, og buss nr. 46. Det er også kort vei til Åsjordet T-banestasjon.
Røa Senter og CC Vest på Lilleaker er populære handleområder, og det er kort vei til begge. På Røa er det blant annet vinmonopol, bakeri, helse- og velværetilbud, og et variert utvalg av butikker.
Tomt
Eiet tomt, kvm
Formuesverdi
Formuesverdi for denne eiendommen foreligger ikke ettersom boligen er nyoppført. Utgjør normalt 25% av boligens verdi for primærbolig, og 80% av boligens verdi for sekundærbolig (for ligningsåret 2016).
Oppdragsnummer
127-24-0095
EIE vekst
EIE AS, og i noen tilfeller eiendomsmeglerforetak som er tilknyttet kjeden EIE eiendomsmegling, har eierinteresser i selskaper som leverer produkter og tjenester som våre kunder tilbys i forbindelse med eiendomstransaksjonen. Les mer om dette på https://eie.no/eiendom/eie-investerer
Nærområdet
EIE Bolig- og prosjektmegling
Annonseinformasjon
| FINN-kode | 370137094 |
|---|---|
| Sist endret | 14. aug. 2025 06:58 |
| Referanse | 127240095 |
Annonsene kan være mangelfulle i forhold til lovpålagt opplysningsplikt. Før bindende avtale inngås oppfordres interessenter til å innhente komplett informasjon fra meglerforetaket, selger eller utleier.




