Bildegalleri

Velkommen til Steinan Park - NB! Bildene er tatt fra en tilsvarende leilighet i 4.etg.
Helt ny 2-roms med 10kvm terrasse | Dagligvare i samme bygg og bussholdeplass innen 30 meter | Nært sentrum og marka
Nøkkelinfo
- Boligtype
- Leilighet
- Eieform
- Eier (Selveier)
- Soverom
- 1
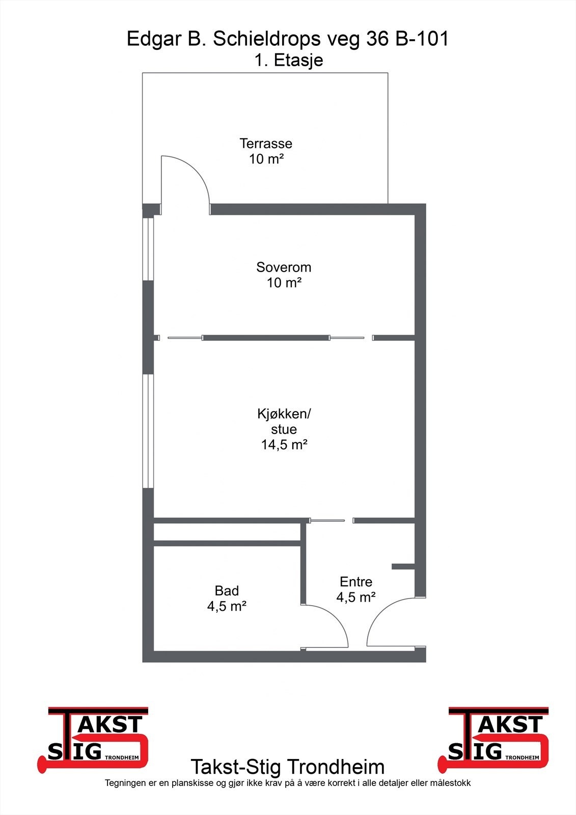
- Internt bruksareal
- 36 m² (BRA-i)
- Bruksareal
- 40 m²
- Eksternt bruksareal
- 4 m² (BRA-e)
- Balkong/Terrasse
- 10 m² (TBA)
- Etasje
- 1
- Byggeår
- 2025
- Rom
- 2
- Tomt
- Eiet
Fasiliteter
Om boligen
Steinan Park er en sjelden mulighet hvor du har tilgang til natur, men også bor sentralt. Det blir en ny bydel med mange etablerte og varierte tilbud. Her blir det enkelt å bo med alt du trenger til daglig som nærtorg, barnehage og daglivare. Her vil du bo omgitt av rause friområder med gangavstand til flere treningsanlegg. Fra Steinan Park tar det bare noen minutter til Nardosenteret, Moholt eller Risvollan.
Lav kjøpsomkostninger, nybyggaranti og mulighet for kjøp av p-plass.
Leilighetsvelger: https://steinan-park-bygg-b.plyo.cloud/
Salgsoppgaven beskriver vesentlig og lovpålagt informasjon om eiendommen
Se komplett salgsoppgaveNyttige lenker
Nærområdet
Heimdal Eiendomsmegling avd. Rosten
Prisstatistikk
Steinan Park Hus B
på annonsen
prisantydning per kvadratmeter
Prisfordeling
Pris per m² ligger 20 055 kr over snittet for leiligheter i Trondheim Øst.
Grafen viser antall leiligheter solgt i Trondheim Øst siste året fordelt på pris per m² - totalt 2 566 leiligheter
Antall boliger
Kvadratmeterpris tilsvarer prisantydning pluss fellesgjeld per kvadratmeter (p-rom eller BRA-i). Prisene i grafen er avrundet til nærmeste 1000 kr.
Annonseinformasjon
| FINN-kode | 370039696 |
|---|---|
| Sist endret | 15. nov. 2025 13:54 |
| Referanse | 1-24-0375 |
Annonsene kan være mangelfulle i forhold til lovpålagt opplysningsplikt. Før bindende avtale inngås oppfordres interessenter til å innhente komplett informasjon fra meglerforetaket, selger eller utleier.

















