Bildegalleri

Guri Leinæs v/PrivatMegleren Aksept ønsker velkommen til Bjerregaards gate 29H!
Pen og sjarmerende 2-roms selveier - Solrik, felles takterrasse - V.v & Fyr. inkl - Veldrevet sameie - Rolig beliggenhet
Nøkkelinfo
- Boligtype
- Leilighet
- Eieform
- Eier (Selveier)
- Soverom
- 1
- Internt bruksareal
- 47 m² (BRA-i)
- Bruksareal
- 51 m²
- Eksternt bruksareal
- 4 m² (BRA-e)
- Etasje
- 2
- Byggeår
- 1932
- Energimerking
- G - Mørkegrønn
- Tomt
- Eiet
- Boligselgerforsikring
- Ja
Fasiliteter
Om boligen
Velkommen til Bjerregaards gate 29H!
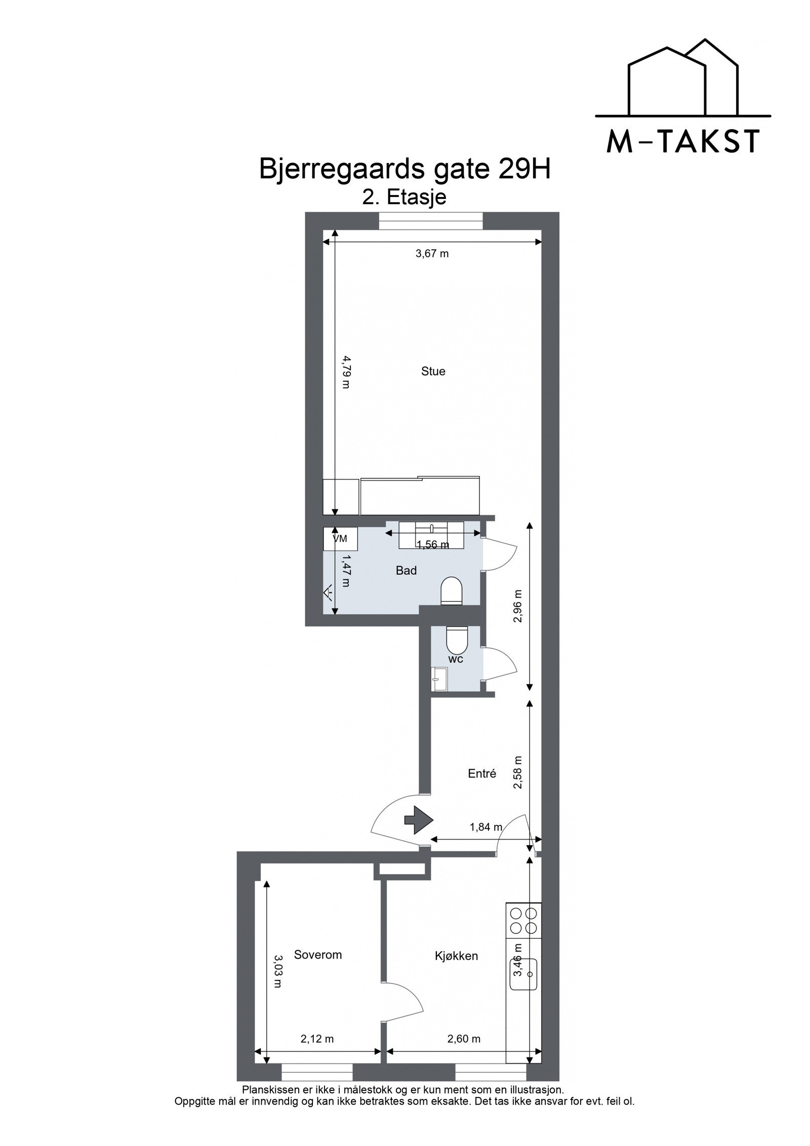
Denne leiligheten har en fredelig beliggenhet i en rolig sidegate, perfekt plassert mellom St. Hanshaugen og Kiellands plass, med kort avstand til det meste. Boligen har en god standard med malte gulv og pene overflater, som gir et innbydende inntrykk. Leiligheten ligger i en høy første etasje (oppleves som andre etg) og har en planløsning som består av entré, stue, separat kjøkken, soverom, bad og ekstra wc. Tilgang til flere, felles takterrasser, som gir ekstra muligheter for avslapning og hygge.
Høydepunkter:
- Felles solrike takterrasser
- Flott bakgård opparbeidet med leker, sittegruppe og diverse beplantning.
- Bad fra 2017
- Store vindusflater
- Varmtvann og fyring inkl. i fk.
- Kjellerbod på 4m²
- Sentral og attraktiv beliggenhet med kort vei til "alt"
Salgsoppgaven beskriver vesentlig og lovpålagt informasjon om eiendommen
Se komplett salgsoppgaveNyttige lenker
Nærområdet

PrivatMegleren Aksept
Philip Andreas Bakke
Medhjelper
Annonseinformasjon
| FINN-kode | 369909356 |
|---|---|
| Sist endret | 18. okt. 2024 09:24 |
| Referanse | 92240470 |
Annonsene kan være mangelfulle i forhold til lovpålagt opplysningsplikt. Før bindende avtale inngås oppfordres interessenter til å innhente komplett informasjon fra meglerforetaket, selger eller utleier.

























